| Selling Price | 535.000 € |
|---|---|
| Courtage | no courtage for buyers |
Im beliebten Bielefelder Stadtteil Heepen, in ruhiger Wohnlage mit hervorragender Infrastruktur, steht diese gepflegte Doppelhaushälfte mit Einliegerwohnung zum Verkauf. Die Immobilie wurde im Jahr 2001 in solider Massivbauweise errichtet. Sie verbindet eine durchdachte Raumaufteilung mit vielseitigen Nutzungsmöglichkeiten und bietet damit ideale Voraussetzungen für Familien, Mehrgenerationen oder für Käufer, die Wohnen und Vermieten kombinieren möchten.
Auf einem ca. 334 m² großen Grundstück stehen insgesamt rund 168 m² Wohnfläche zur Verfügung. Diese verteilen sich auf eine großzügige Haupteinheit mit ca. 123 m² sowie eine eigenständige Einliegerwohnung mit ca. 45 m², die über einen direkten Zugang zum Garten verfügt. Das Gebäude ist vollständig unterkellert.
Die Haupteinheit erstreckt sich über mehrere Etagen:
Erdgeschoss: Der Eingangsbereich ermöglicht den Zugang sowohl zur Haupteinheit als auch zur separaten Einliegerwohnung. In der Haupteinheit bietet der Flur Platz für Garderobe und Abstellmöglichkeiten und führt weiter ins erste Obergeschoss sowie in den zur Haupteinheit gehörenden Keller
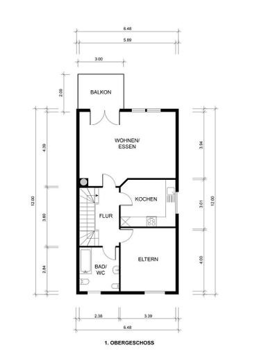
1. Obergeschoss: Hier befinden sich das Wohnzimmer mit Zugang zum Balkon, eine separate Küche sowie ein Elternschlafzimmer. Ein Badezimmer mit Badewanne, WC und Bidet ergänzt die Etage.
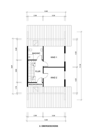
2. Obergeschoss: Zwei gut geschnittene Zimmer (ideal als Kinderzimmer, Gästezimmer oder Homeoffice) sowie ein weiteres Badezimmer mit Dusche. Ein Abstellraum mit Heizungsanlage (Kessel aus 2023) ist ebenfalls vorhanden.
Dachgeschoss/Spitzboden: Ein ausgebauter Raum mit ca. 18 m², der als zusätzliches Kinderzimmer, Gästezimmer oder Arbeitsbereich genutzt werden kann.
Die Einliegerwohnung im Erdgeschoss verfügt über einen separaten Eingang und bietet rund 45 m² Wohnfläche. Aktuell ist der große Hauptraum durch eine Trockenbauwand in Wohn- und Schlafbereich aufgeteilt. Dazu kommen eine Küche sowie ein Badezimmer mit Badewanne und einem Waschmaschinenanschluss. Besonders hervorzuheben ist der direkte Zugang zur Terrasse und in den sonnigen Garten, der dieser Einheit zusätzlichen Wohnkomfort verleiht.
Der Vollkeller bietet nicht nur Abstellfläche, sondern auch vielseitige Nutzungsmöglichkeiten. Neben einem großzügigen, wohnlich gestalteten Hobby- oder Büroraum stehen ein Badezimmer mit Dusche und WC sowie ein separater Wasch- und Trockenraum mit entsprechenden Anschlüssen zur Verfügung – ideal für Freizeit, Homeoffice oder Gäste.
Ein weiterer Pluspunkt ist die Garage, die neben einem elektrischen Tor (2022 erneuert) über einen eigenen WC-Bereich, einen Waschmaschinenanschluss sowie einen praktischen Durchgang in den Garten verfügt. Darüber hinaus ist eine Wallbox installiert, die das Laden von E-Autos ermöglicht. Abgerundet wird das Angebot durch drei zusätzliche Außenstellplätze.
• Fliesen- und Laminatböden
• Doppelt verglaste Fenster
• Fußbodenheizung in allen Bädern (außer Keller), zusätzlich Handtuchheizkörper (außer Keller)
• Gaszentralheizung (Kessel in 2023 erneuert)
• Einbauküche (2001), Elektrogeräte wurden in den letzten Jahre alle erneuert
• Balkon, Terrasse & sonniger Garten in Südausrichtung
• Garage mit elektrischem Tor (Garagentor in 2022 erneuert), Wallbox, zusätzlichem WC & Waschmaschinenanschluss
• drei zusätzliche Außenstellplätze
• vollständig unterkellert
Das Objekt wird frei von Mietverhältnissen übergeben. Der Verkauf erfolgt provisionsfrei direkt vom Eigentümer. Ein Energieausweis liegt zur Besichtigung vor.
Alle Angaben, Pläne und Grundrisse wurden mit größter Sorgfalt zusammengestellt. Gleichwohl übernehmen wir keine Haftung für deren Richtigkeit oder Vollständigkeit. Maßgeblich sind die tatsächlichen Gegebenheiten bei der Besichtigung.
Für die Vereinbarung eines Besichtigungstermins bitten wir vorab um eine kurze persönliche Vorstellung mit den wichtigsten Angaben (Name, vollständige Anschrift, E-Mail-Adresse und Telefonnummer). Zur Besichtigung sollte nach Möglichkeit eine aktuelle Finanzierungsbestätigung Ihrer Bank vorliegen. Nach Eingang Ihrer Nachricht erhalten Sie zeitnah eine Rückmeldung.
Wir bitten höflich darum, von unangekündigten Besuchen oder einer direkten Kontaktaufnahme an der Immobilie abzusehen. Besichtigungen erfolgen ausschließlich nach vorheriger Abstimmung.
Die Doppelhaushälfte befindet sich in einer ruhigen Wohnsiedlung ohne Durchgangsverkehr im Stadtteil Bielefeld-Heepen. Der Stadtteil zählt zu den begehrten Wohnlagen im Osten Bielefelds und verbindet ein familienfreundliches Umfeld mit einer hervorragenden Infrastruktur.
• Einkaufsmöglichkeiten wie Supermärkte, Bäckereien und Fachgeschäfte sind fußläufig erreichbar.
• Kindergärten, Grundschulen und weiterführende Schulen befinden sich in unmittelbarer Nähe.
• Ärztliche Versorgungseinrichtungen und Apotheken sind ebenfalls im direkten Umfeld vorhanden.
• Mehrere Buslinien (u. a. Linien 21, 22, 26, 350) gewährleisten eine sehr gute Anbindung in das Bielefelder Stadtzentrum sowie in die angrenzenden Stadtteile.
• Parks und Grünflächen bieten zusätzliche Freizeit- und Erholungsmöglichkeiten.
Die Lage verbindet somit ruhiges Wohnen mit einer schnellen Erreichbarkeit aller wichtigen Einrichtungen des täglichen Bedarfs.