| Selling Price | 699.000 € |
|---|---|
| Courtage | no courtage for buyers |
Willkommen in Ihrem neuen Zuhause am Aschaffenburger Godelsberg!
Ob allein, zu zweit oder mit der Familie – diese moderne Erdgeschosswohnung bietet auf ca. 98 m² großzügigen Raum und hohen Wohnkomfort.
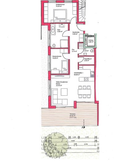
Die durchdacht geschnittene Wohnung verfügt über ein Schlafzimmer, ein flexibel nutzbares Arbeits- oder Kinderzimmer, ein geräumiges Badezimmer mit Wanne und Dusche, ein separates Gäste-WC sowie eine praktische Abstellkammer.
Der offen gestaltete Wohn- und Essbereich mit integrierter Küche bildet das Herzstück der Wohnung. Von hier aus gelangt man direkt auf die über 25 m² große Terrasse mit angrenzendem Garten – ideal zum Entspannen, Spielen oder geselligen Beisammensein im Freien.
Tiefgaragenstellplatz zuzüglich 30.000 €
Der Rohbau ist fertig gestellt. Die Bezugsfertigkeit ist voraussichtlich im September 2026.
Energiebedarfsausweis
Endenergiebedarf: 23,5 kWh/(m²a)
Energieeffizienzklasse: A+
Primärenergieträger: Strom
Baujahr: 2025
Dieses Objekt befindet sich in absoluter Toplage am Aschaffenburger Godelsberg.
In fußläufiger Entfernung lädt der weitläufige Park der Fasanerie mit Biergärten und idyllischen Grünflächen zur Erholung ein.
Besonders hervorzuheben ist die hervorragende Infrastruktur: Zahlreiche Einkaufsmöglichkeiten, Kindergärten und Schulen befinden sich in unmittelbarer Nähe. Weiterführende Schulen, die Hochschule, die Fußgängerzone mit vielfältigen Geschäften, Restaurants, Cafés, das Theater und vieles mehr sind bequem zu erreichen.
Die Anbindung an den öffentlichen Nahverkehr ist exzellent. Über die nahegelegenen Autobahnen A3 (Frankfurt/Würzburg) und A45 (Hanau/Gießen) erreicht man beispielsweise den Flughafen Frankfurt in nur ca. 30 Minuten.