Haus von außen Südseite
Wohnküche mit Südbalkon
Ausblick Südbalkon
Zimmer mit Ostbalkon
Zimmer mit Dachfenster
Zimmer mit Westbalkon
Masterbad mit Badewanne
Flur
Kellerraum
Wohnküche
Küche
Zimmer mit Ostbalkon
Ausblick Ostbalkon
Zimmer mit Dachfenster
Zimmer mit Westbalkon
Westbalkon
Masterbad
Masterbad mit Dusche
Gästebad
Abstellraum
Haus von außen Westseite
Haus von außen Ostseite
Garage
Südbalkon
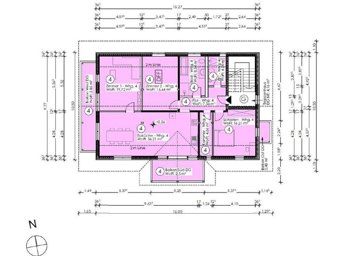
Grundriss
Küche
Ausblick Südbalkon
Wohnküche

Traumhafte 4-Zimmer DG-Wohnung mit tollem Bergblick und 3 Balkonen

Freudenreichweg
83727 Schliersee – Neuhaus
Bayern
2265 €
Rent without service charge
119 m²
Living Area
4
Rooms
TraumImmo-ID: 37VSGKT
Partner-ID: 388492
Partner-Property by: ohne-makler.net
Contact:
Angebot von Alexandra Groß

Contact now

Information

  • Type: Roof Story
  • Storey: 2
  • Living Area ca.: 119 m²
  • Free From: 01.12.2025
  • Rooms: 4
CellarGuest-ToiletKitchenBalcony

  • Construction Year: 2023
  • Condition: MintCondition
  • Heating Type: FloorHeating
  • Storeys: 2
  • Bathrooms: 2.0
  • Heating Costs included in Service Charge: True

Rent & Utilities

Rent2265 €
Additional Costs225 € incl. heating costs
Deposit6795€

About this dream apartment

Property Description

Diese wunderschöne Neubauwohnung befindet sich im DG/2.OG eines Mehrfamilienwohnhauses mit 4 Wohneinheiten.

Ab 1.12.2025 könnte diese wunderschöne 4-Zimmerwohnung mit offener Wohnküche Ihr neues Zuhause sein.

Die großzügige Wohnküche (Küche inkl.) verfügt im Quergiebel über einen phantastischen Süd-Balkon mit sensationellem Bergblick.
Außerdem hat man sowohl von der Wohnküche, als auch von dem an die Wohnküche angrenzenden Zimmer Zugang zu einem ebenfalls sehr großzügigen West-Balkon.

Ein (Schlaf-)Zimmer ist nach Osten ausgerichtet und verfügt ebenfalls über einen kleinen Balkon, der einen wunderbaren Blick auf den Wendelstein bietet.

Ein weiteres (Schlaf-)Zimmer verfügt über ein bodentiefes Fenster sowie ein Dachfenster.

Das Tageslicht-Masterbad ist mit einer großzügigen Badewanne, einer separaten Dusche, einem WC und einem Waschbecken ausgestattet. Zudem sind ein Spiegel sowie ein Waschbeckenunterschrank bereits vorhanden.

Ein weiteres Tageslicht-Duschbad mit WC und Waschbecken, ebenfalls ausgestattet mit einem Unterschrank, bietet ausreichend Platz für alle Familienmitglieder und/oder Gäste.

Ein Abstell-/Vorratsraum komplettiert das großzügige Raumangebot dieser einzigartigen Wohnung.

Zusätzlichen Stauraum bietet der große Kellerraum.

Für die Autos, Fahrräder und andere Freizeitspaßgeräte bieten eine großzügige Garage mit viel Stauraum, sowie ein Stellplatz ausreichend Parkmöglichkeit.

Die überdurchschnittliche Dämmung des Gebäudes sowie der hohe Energiestandard (entspricht KFW 40 Standard ) dürften die Heizkosten gering halten.


Furnishing

Eine hochwertige Einbauküche inkl. Induktionsherd, Backofen und Spülmaschine ist im Mietpreis bereits enthalten.
Ein Kühlschrank sollte auf die eigenen, individuellen Anforderungen abgestimmt sein, daher ist dieser selbst mitzubringen.

Das Tageslicht Masterbad ist mit einer Badewanne, einer Dusche, WC und Waschbecken, einem Spiegelschrank sowie einem Waschbeckenunterschrank ausgestattet. Auch diese hochwertige Ausstattung ist bereits in der Miete enthalten.

Das Tageslicht Duschbad verfügt ebenfalls über ein WC und ein Waschbecken mit Unterschrank.

Ausreichend Stauraum bietet der eigene, ca. 28qm große Kellerraum.

Die zur Wohnung gehörige großzügige Garage sowie der Stellplatz sind ebenfalls bereits in der Miete enthalten.

Weitere Ausstattung:
3 Balkone, Keller, Vollbad, Duschbad, Einbauküche


Location

Location description

Die Wohnung befindet sich im Ortsteil Neuhaus in ruhiger und sonniger Lage mit wunderschönem Bergblick.

Der Bahnhof ist zu Fuß in max. 10 Minuten erreichbar, zum See benötigt man ca. 15 Minuten.

Die umliegende Schlierseer Bergwelt erreicht man mit dem Auto bequem in ca. 10 - 20 Minuten.

ohne-makler.net
Contact:
Angebot von Alexandra Groß

Contact now