Naher Strand Travemünde
Luftlinie Richtung Travemünde
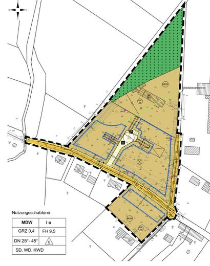
Ausschnitt Anlagen
Beispiel Bebauungsmöglichkeit
Schöne Feiertage und bis bald
Gesamtareal mit Abriss B-Plan
Beispiel Bebauungsmöglichkeit
Beispiel Bebauungsmöglichkeit
Marina mit Zugang zur Ostsee
Ausschnitt Anwesen
Gesamtgebiet
Neubaufeld Richtung Travemünde
Beispiel Bebauungsmöglichkeit
Beispiel Bebauungsmöglichkeit
Beispiel Bebauungsmöglichkeit

Idyllisches Anwesen nah Travemünde mit B-Plan

Get the full address via contact
23942 Nordwestmecklenburg - Landkreis - Dassow – Dassow
Mecklenburg-Vorpommern
1.800.000 €
Selling Price
720 m²
Living Area
10
Rooms
TraumImmo-ID: 3XTR9F6
Partner-ID: 414824
Partner-Property by: ohne-makler.net
Contact:
Privat vom Eigentümer

Contact now

Information

  • Type: Single Family House
  • Living Area ca.: 720 m²
  • Free From: Nach Vereinbarung
  • Rooms: 10

  • Property Area: 20000.0

Selling Price & Extra Costs

Selling Price1.800.000 €
Courtageno courtage for buyers

About this dream house

Property Description

Zur Metropolregion Hamburg gehörig und durch die absolute Nähe zu den einschlägigen Ostseebädern, wie Lübeck-Travemünde und Boltenhagen, ein echtes Highlight in ländlicher Umgebung.

Ein einzigartiges Areal mit Bestandsgebäude (Großes Siedlerhaus, Halle, kleine Werkstatt etc.) sowie aktuell rechtskräftigem B-Plan in idyllischer Umgebung und eigenem Waldstück mit Ausrichtung Travemünde/Ostsee.

Ideal für ein Leben in Ruhe mit allen erdenklichen Möglichkeiten und dennoch ganz nah an einer kompletten Infrastruktur der Stadt.

Hier genießt man noch die Natur und Nähe zur See!

Im Bestand und durch dessen Größe bietet sich ausreichend Platz den Ideen freien Lauf zu lassen (Bauen, Vermietung und/oder Selbstnutzung, Pferde, Wellness etc.).

Selbst Freizeitkapitäne kommen hier nicht zu kurz, denn die vorhandene Marina des Ortes bietet entsprechenden Zugang zur Ostsee.

Bei Bedarf kann die komplette Erschließung des Neubaugebietes durch die bereits laufende Planung und Durchführung nebst Gewährleistung von Verkäuferseite gegen Aufpreis übernommen sowie abgesichert werden.

Verkehrstechnisch ist man zeitnah in Lübeck sowie über den nahen Autobahnanschluss der A20 und die folgende A1 in der Metropole Hamburg.


Location

ohne-makler.net
Contact:
Privat vom Eigentümer

Contact now