Lagerhalle von außen
Lagerhalle von innen
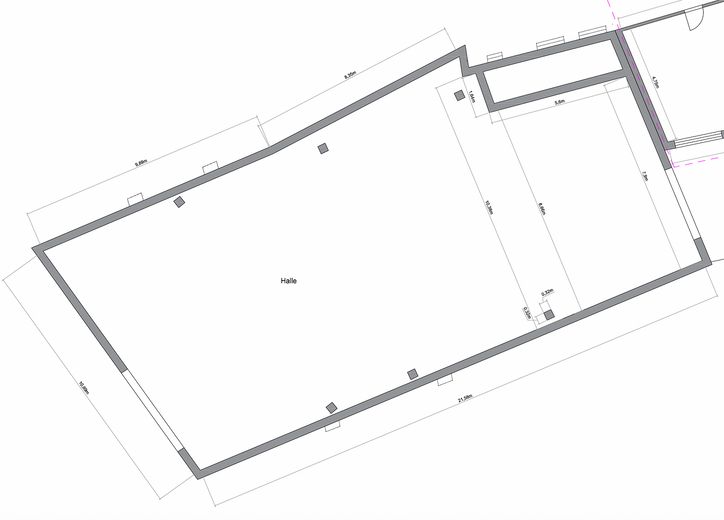
Grundriss der Lagerhalle

Lagerhalle mitten im Zentrum | Büroräume bei Bedarf auch verfügbar

Schmalzgasse 10
91083 Baiersdorf – Baiersdorf
Bayern
1440 €
Rent without service charge
TraumImmo-ID: 4TEZH4Y
Partner-ID: 388231
Partner-Property by: ohne-makler.net
Contact:
Privat vom Eigentümer

Contact now

Information

  • Type: Hall
  • Free From: 01.04.2026

  • Construction Year: 1970

Rent & Utilities

Rent1440 €
Courtageno courtage for buyers

About this dream industry property

Property Description

Bei dem angebotenen Objekt handelt es sich um eine vielseitig nutzbare Lagerhalle im Zentrum von Baiersdorf. Die Fläche umfasst ca. 240 m² und befindet sich im Erdgeschoss. Die lichte Höhe beträgt ca. 3,4 bis 4,2 m. Der Zugang erfolgt ebenerdig über ein Rolltor, wodurch die Anlieferung auch mit LKW problemlos möglich ist.

Die Halle wurde ursprünglich als Parkhaus errichtet und ist entsprechend robust ausgeführt. Der gepflegte Bau stammt aus den 1970er Jahren und befindet sich in gutem Erhaltungszustand. Strom- und Lichtanschlüsse sind vorhanden, eine Heizung, Toilette o.Ä. steht nicht zur Verfügung.

Die Nutzungsmöglichkeiten sind vielfältig: klassische Lagerhaltung, Handwerker- und Gewerbefläche, Material- oder Fahrzeuglager, Oldtimer- oder Fahrradstellflächen sowie eine mögliche Unterteilung in einzelne Einheiten für Selfstorage oder ähnliche Konzepte.

Eine flexible Anpassung der Fläche an den Bedarf des Mieters ist nach Absprache möglich. Ein Verkauf der Halle wäre ebenfalls denkbar (Flurstück 7/1 Gemarkung Baiersdorf - 256 qm). Zusätzlich können mittelfristig Büroeinheiten auf dem gleichen Areal angemietet werden.
Weitere Bilder und Informationen werden bei Interesse gerne zur Verfügung gestellt.

Sie haben spezifische Vorstellungen bzgl. Miet- oder Kaufpreis? Melden Sie sich gerne mit Details.


Location

Location description

Die Halle liegt in der Schmalzgasse 10 in Baiersdorf, mitten im Stadtzentrum. Die Anbindung ist sowohl für Pkw als auch für Lkw sehr gut: über die nahegelegene A73 (Nürnberg–Bamberg) ist das Objekt schnell erreichbar, ebenso besteht eine gute Anbindung an den öffentlichen Nahverkehr über den Bahnhof Baiersdorf.

Durch die zentrale Lage sind sämtliche Einrichtungen des täglichen Bedarfs fußläufig erreichbar. Das Umfeld ist von einer Mischung aus Wohnen, Einzelhandel und Dienstleistungsbetrieben geprägt. Die Zufahrt ist breit und ermöglicht eine problemlose Anlieferung sowie Wendemöglichkeiten auch für größere Fahrzeuge.

ohne-makler.net
Contact:
Privat vom Eigentümer

Contact now