Treppenhaus & Eingangsbereich
Wohn- und Esszimmer
Wohnzimmer
Frontansicht
Küche
Küche
Esszimmer
Blick in den Garten
Gartenterrasse (52 m²)
Rückansicht Garten und Haus
Badezimmer KG
Garten
Garten
Badezimmer OG
Badezimmer OG
Schlafzimmer OG
Ankleide-/Schlafzimmer OG
Schlafzimmer OG
Schlafzimmer OG
Galerie
Schlafzimmer UG
Terrasse Kellergeschoss
Dachterrasse (48 m²)
Dachterrasse
Blick von der Dachterrasse
Garten
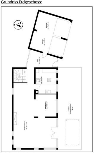
Grundriss EG
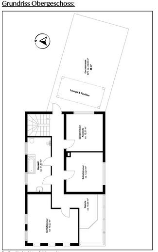
Grundriss OG
Grundriss KG
Garten
Gartenansicht
Wohn- und Esszimmer

Südweststadt: Großzügiges Einfamilienhaus mit idyllischem Garten, Dachterrasse und Doppelgarage.

Get the full address via contact
75172 Pforzheim – Pforzheim
Baden-Württemberg
799.000 €
Selling Price
253 m²
Living Area
5
Rooms
TraumImmo-ID: 5HWYBPH
Partner-ID: 397263
Partner-Property by: ohne-makler.net
Contact:
Privat vom Eigentümer

Contact now

Information

  • Type: Single Family House
  • Living Area ca.: 253 m²
  • Free From: Nach Vereinbarung
  • Rooms: 5
CellarKitchenGarden

  • Property Area: 818.0
  • Construction Year: 1957
  • Condition: WellKept
  • Heating Type: CentralHeating
  • Firing Type: Oil
  • Storeys: 2
  • Bathrooms: 2.0

Selling Price & Extra Costs

Selling Price799.000 €
Courtageno courtage for buyers

About this dream house

Property Description

Das großzügige Einfamilienhaus aus dem Jahr 1957 befindet sich in der Südweststadt von Pforzheim auf einem ca. 458 m² großen Grundstück, das durch eine zusätzliche Pachtfläche von ca. 360 m² erweitert wird. Die Umgebung ist geprägt von Einfamilienhäusern, grünen Straßenzügen und einer ruhigen Wohnatmosphäre – ideal für alle, die zentral und dennoch ruhig wohnen möchten.

Die Wohnfläche von ca. 253,53 m² verteilt sich auf drei Ebenen. Zugang zum Haus erhalten Sie sowohl über den Haupteingang als auch direkt über die Doppelgarage. Von hier führt der Weg in die Küche, die mit einer hochwertigen Einbauküche (2012) samt Kochinsel ausgestattet ist. Das Herzstück des Erdgeschosses bildet der offen gestaltete Wohn- und Essbereich, der durch die großen Fensterflächen des Wintergartens lichtdurchflutet wird. Zusätzlichen Charme verleiht der offene Kamin. Vom Wohnzimmer aus gelangt man auf die großzügige Südterrasse (52 m²), die teilweise durch einen massiven Pavillon überdacht ist und direkten Zugang zum Garten bietet.

Im Obergeschoss befinden sich drei gut geschnittene Zimmer, die flexibel als Schlaf-, Kinder-, Arbeits- oder Gästezimmer genutzt werden können. Die offene Galerie zum Wohnzimmer sorgt auch hier für ein helles Ambiente. Ergänzt wird die Etage durch ein großes Badezimmer mit Badewanne, Dusche und Doppelwaschbecken. Vom Flur aus betritt man die großzügige Dachterrasse (48 m²), die teilweise von einem massiven Pavillon überdacht ist und einen malerischen Blick über die Dächer Pforzheims bietet. Dank der freien Ausrichtung in alle Himmelsrichtungen genießen Sie hier ganztägig Sonne – perfekt für Frühstück, Entspannung oder gesellige Abendstunden.

Das Untergeschoss bietet neben Heizungsraum, Hauswirtschaftsraum und Waschküche ein weiteres großzügiges Schlafzimmer mit Zugang zur dritten Terrasse (15 m²), die über eine Natursteintreppe mit dem Garten verbunden ist. Durch die Hanglage fällt auch hier reichlich Tageslicht ein, sodass der Raum hell und freundlich wirkt. Ergänzt wird die Etage durch ein zusätzliches Duschbad.

Die Ausstattung des Hauses ist hochwertig und gepflegt: In den Wohnräumen liegt Eichenparkett, die Bäder, der Eingangsbereich sowie die Hauswirtschaftsräume sind mit pflegeleichten Fliesen versehen, die Schlafzimmer teilweise mit Teppichboden. Das Haus verfügt überwiegend über Holzfenster mit Zweifachverglasung. Zusätzliche Sicherheit bieten die Fenster im Erd- und Untergeschoss, die mit Sicherheitsglas ausgestattet sind. Die Beschattung im Wintergarten erfolgt über ein automatisches oder manuell steuerbares Außenbeschattungssystem, in den übrigen Räumen über elektrische Rollläden.
Beheizt wird das Haus durch eine Ölheizung (1993), die sämtliche Räume über Heizkörper erwärmt.

Die Außenterrassen sind mit anthrazitfarbenen Fliesen (2021) ausgestattet. Das Grundstück ist sehr gepflegt: Die Grünflächen sind angelegt, die Gartenzäune erneuert. Die Bewässerung erfolgt über ein smart gesteuertes System und der Rasen wird größtenteils von einem Mähroboter gemäht. Ein kleiner Teich, eine Außendusche, eine Holzhütte, ein Holzlager sowie der massive, überdachte Pavillonbereich auf der Terrasse runden das Angebot ab. Zudem sind rund ums Haus Wasser- und Stromanschlüsse vorhanden, die die Gartenpflege erleichtern.


Furnishing

Grundstück: ca. 458 m² + Pachtfläche ca. 360 m²
Wohnfläche: ca. 253,5 m² auf drei Ebenen
Böden: Eichenparkett, Fliesen, Teppichboden
Fenster: Holzfenster mit Zweifachverglasung, Sicherheitsglas im EG & UG
Beschattung: Außenbeschattung Wintergarten, elektrische Rollläden in übrigen Räumen
Heizung: Ölheizung (1993) über Heizkörper
Terrassen: Gartenterrasse (EG) 52 m², Dachterrasse 48 m², Terrasse UG 15 m², teils überdacht mit Pavillon
Küche: hochwertige Einbauküche (2012) mit Kochinsel
Extras: offener Kamin, Wintergarten, gepflegt und hochwertig angelegte Grünflächen


Other

Alle Nebenkosten wie die Grunderwerbssteuer in Höhe von 5 % des Kaufpreises sowie die Notar- und Gerichtskosten trägt der Käufer.


Location

Location description

Das Einfamilienhaus befindet sich im Stadtteil Südweststadt von Pforzheim, einer ruhigen und gewachsenen Wohnlage, die durch ihre hügelige Struktur und schöne Ausblicke besonderen Charme erhält. Gleichzeitig ist das Stadtzentrum mit Fußgängerzone und Marktplatz schnell erreichbar – in nur etwa 5 Minuten mit dem Fahrrad oder 10–15 Minuten zu Fuß. So verbindet die Südweststadt eine angenehme Wohnatmosphäre mit einer hervorragenden Anbindung an die Innenstadt.

Für den täglichen Bedarf stehen im direkten Umfeld zahlreiche Einkaufsmöglichkeiten zur Verfügung:  Edeka, Aldi, Lidl und Rewe sind in wenigen Autominuten oder sogar zu Fuß erreichbar. Hinzu kommen Bäckereien, Apotheken und kleinere Fachgeschäfte. Cafés und Restaurants finden sich sowohl in der Südweststadt als auch in der nahegelegenen Innenstadt.

Familien profitieren von einer guten Infrastruktur: Mehrere Kindertagesstätten liegen in Lauf nähe. In der näheren Umgebung befinden sich die Osterfeld-Grundschule, die Otterstein-Schule und die Weiherbergschule – alle bequem zu Fuß, mit dem Fahrrad oder dem Bus erreichbar. Weiterführende Schulen wie das Hebel-Gymnasium, das Hilda-Gymnasium, die Otterstein-Realschule sowie die Osterfeld-Realschule sind ebenfalls schnell und unkompliziert erreichbar.

Zur Erholung laden die direkte Natur, kleinere Grünanlagen und Spielplätze im Stadtteil ein. Sportliche Aktivitäten lassen sich auf den umliegenden Sportplätzen sowie in den ansässigen Sportvereinen ausüben. Der beliebte Enzauenpark ist mit dem Fahrrad in rund 20 Minuten erreichbar und lädt zu Spaziergängen und Freizeitaktivitäten ein. Ein besonderes Highlight für Familien ist der Wildpark Pforzheim, der mit dem Auto in etwa 10 Minuten erreicht wird. Ebenfalls in kurzer Distanz liegt das Gasometer Pforzheim, das mit seinen wechselnden 360°-Panoramaausstellungen ein kultureller Anziehungspunkt weit über die Stadtgrenzen hinaus ist.

Die Verkehrsanbindung ist hervorragend: Mehrere Buslinien verlaufen durch die Südweststadt und sorgen für eine direkte Verbindung in die Innenstadt und zum Hauptbahnhof. Der Hauptbahnhof Pforzheim liegt nur etwa 1,5 Kilometer entfernt und ist zu Fuß oder Bus in wenigen Minuten erreichbar. Über die B10 und die A8 sind Karlsruhe, Stuttgart und die gesamte Region schnell zugänglich.

Die Südweststadt vereint ruhiges Wohnen, kurze Wege zu Einkauf, Schulen, Kitas und Kultur sowie eine ideale Verkehrsanbindung – ein attraktiver Standort für Familien und Berufstätige gleichermaßen.

ohne-makler.net
Contact:
Privat vom Eigentümer

Contact now