Exklusives Ferienhaus in Ostseenähe – modernes Wohnen in naturnaher Lage

Zum Schacht 4
18356 Pruchten
Mecklenburg-Vorpommern
389.000 €
Selling Price
86 m²
Living Area
5
Rooms
TraumImmo-ID: 5P9A4XP
Partner-ID: 445824
Partner-Property by: ohne-makler.net
Contact:
Privat von Juliane Richter

Contact now

Information

  • Type: Other
  • Living Area ca.: 86 m²
  • Free From: Nach Vereinbarung
  • Rooms: 5
KitchenGarden

  • Property Area: 513.0
  • Construction Year: 2021
  • Condition: MintCondition
  • Heating Type: FloorHeating
  • Firing Type: Electricity
  • Storeys: 2
  • Bathrooms: 1.0

Selling Price & Extra Costs

Selling Price389.000 €
Courtageno courtage for buyers

About this dream house

Property Description

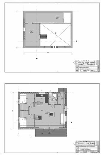
Das Ferienhaus überzeugt durch moderne Holzhausarchitektur, offene Raumgestaltung und eine helle, freundliche Wohnatmosphäre.

Herzstück ist der großzügige Wohn- und Essbereich im Erdgeschoss (ca. 38 m²). Die beeindruckende Fensterfront über zwei Ebenen sorgt für viel Tageslicht und ein außergewöhnliches Raumgefühl mit Blick in den Garten und Richtung Boddenlandschaft. Von hier aus gelangt man direkt auf die Terrasse und in den Garten – ideal für entspannte Aufenthalte mit fließendem Übergang zwischen Innen- und Außenbereich.

Im Erdgeschoss befinden sich zudem zwei flexibel nutzbare Schlafzimmer (je ca. 9–10 m²). Ein moderner Kaminofen schafft zusätzliche Gemütlichkeit, besonders in der kühleren Jahreszeit.

Das Obergeschoss bietet eine offene Galerie mit weiterem Schlafbereich und Blick in den Wohnraum. Ergänzt wird die Ebene durch einen abschließbaren Hauswirtschafts- und Technikraum.

Der pflegeleichte Garten bietet viel Raum zur Erholung. Ein Rasenmähroboter übernimmt die Pflege, die Terrasse ist mit einer großen, vollständig beschattbaren Markise ausgestattet. Ein großzügiger Fahrradschuppen schafft zusätzlichen Stauraum für Fahrräder, Gartenutensilien und Terrassenmöbel.

Das Haus wird komplett möbliert übergeben und ist sofort für die Ferienvermietung nutzbar. In der Region sind bei professioneller Vermarktung rund 180–220 Vermietungstage pro Jahr realistisch. Die Immobilie eignet sich für 4 bis 6 Personen.

Ein Glasfaseranschluss ermöglicht schnelles Internet und macht das Haus attraktiv für Workation-Aufenthalte. Das vollständig eingezäunte Grundstück bietet Sicherheit und Privatsphäre – ideal für Familien und Gäste mit Hund.

Bestehende Verträge mit Hausmeister- und Reinigungsservice sowie ein Smarthome-System erleichtern den laufenden Betrieb. Die ruhige Sackgassenlage ohne Durchgangsverkehr rundet das Angebot ab.


Furnishing

Besonderheiten:
• Baujahr 2021 – moderner und sehr gepflegter Zustand
• Energieeffizienzklasse A+
• Luft-Wärmepumpe
• Kaminofen im Wohnbereich
• große Fensterfront über zwei Ebenen
• offene Galerie / Empore
• Blick Richtung Boddenlandschaft
• vollständig möbliert – sofort vermietbar
• geeignet für 4–6 Personen
• realistisch 180–220 Vermietungstage pro Jahr möglich
• Glasfaseranschluss – ideal für Homeoffice und Workation
• vollständig eingezäuntes Grundstück – ideal für Kinder und Hunde
• bestehende Serviceverträge (Hausmeister & Reinigung)
• Smarthome-System
• Terrasse mit großer Markise
• pflegeleichter Garten mit Rasenmähroboter
• Fahrradschuppen mit viel Stauraum
• drei Stellplätze
• ruhige Sackgassenlage
• wenige Gehminuten zum Wasser


Other

Der Angebotspreis von 389.000 EUR stellt ein attraktives Gesamtpaket aus Lage, Zustand und Vermietbarkeit dar.

Besichtigungen sind nach vorheriger Terminvereinbarung möglich.


Location

Location description

Die Immobilie befindet sich in Pruchten, einem idyllischen Ort in der Vorpommerschen Boddenlandschaft auf der Halbinsel Fischland-Darß-Zingst.

Die Region gehört zu den gefragtesten Urlaubsgebieten Norddeutschlands und überzeugt durch ihre Kombination aus Natur, Ruhe und touristischer Infrastruktur.

Die Nähe zum Nationalpark Vorpommersche Boddenlandschaft bietet ideale Voraussetzungen für Naturliebhaber. Rad- und Wanderwege, kilometerlange Strände sowie zahlreiche Wassersportmöglichkeiten prägen die Umgebung.

Der Badestrand von Pruchten ist in wenigen Gehminuten erreichbar und gilt als ruhiger, familienfreundlicher Badeplatz.

Das Ostseeheilbad Zingst ist ca. 8 km entfernt, die Hansestadt Stralsund etwa 30 km.

Die nahegelegene Stadt Barth (ca. 5 km) bietet Einkaufsmöglichkeiten, Ärzte, Schulen und Gastronomie.

Die Immobilie liegt in einer ruhigen Sackgasse ohne Durchgangsverkehr und ist daher besonders für Feriengäste attraktiv.

ohne-makler.net
Contact:
Privat von Juliane Richter

Contact now