Exklusive Loftwohnung in bester Lage von Charlottenburg

Gervinusstr.3c
10629 Berlin – Charlottenburg
Berlin
2300 €
Rent without service charge
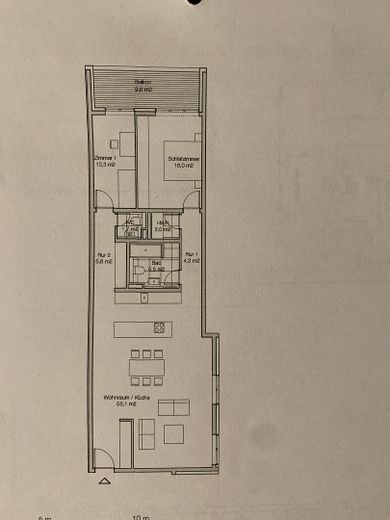
105 m²
Living Area
3
Rooms
TraumImmo-ID: 6429QD6
Partner-ID: 404130
Partner-Property by: ohne-makler.net
Contact:
Privat vom Eigentümer

Contact now

Information

  • Type: Flat
  • Storey: 1
  • Living Area ca.: 105 m²
  • Free From: sofort
  • Rooms: 3
CellarHandicapped AccessibleGuest-ToiletKitchenBalcony

  • Construction Year: 2015
  • Condition: MintCondition
  • Heating Type: FloorHeating
  • Firing Type: FiringTypeDistrictHeating
  • Storeys: 5
  • Usable Floor Space: 12.0
  • Bathrooms: 2.0

Rent & Utilities

Rent2300 €
Additional Costs200 €
Heating Costs150 €

About this dream apartment

Property Description

Diese wunderschöne Loftwohnung befindet sich in bester Lage im wunderschönen Charlottenburg. Der gesamte Komplex wurde erst im Jahr 2015 fertig gestellt, und liegt in unmittelbarer Nähe von Cafés Restaurants und zahlreichen Einkaufsmöglichkeiten, sowie in U und S-Bahn Nähe mit Regionalbahn Anschluss. Der berühmte Kurfürstendamm mit seinen Edelboutiquen ist ebenfalls fußläufig zu erreichen.
Die großzügige Wohnküche ist hell und zeigt in den ruhigen Innenhof. Neben den zwei Schlafzimmern gibt es ein Masterbad und ein separates Gäste-WC, sowie einen Hauswirtschaftsraum für Waschmaschine und Trockner. Die Wohnung ist barrierefrei zugänglich und durch einen Fahrstuhl gelangen Sie bequem ins entsprechende Stockwerk. Bei der Heizungsart der Wohnung, die sich in einem 2015 erbauten Haus befindet, handelt es sich um eine Fußbodenheizung. Ihnen stehen außerdem eine Maßgeschneiderte und sehr hochwertige Einbauküche sowie ein Kellerraum zur Verfügung. Die verbauten Geräte der Einbauküche sind alle samt hochwertig, Miele (Geschirrspüler, Einbaukaffeemaschine, Ofen, Mikrowelle/Dampfgarer, Bora Induktionsherd mit integrierter Absaugung. Liebherr Kühl/ Tiefkühler sowie ein exklusiver beleuchteter und temperierter Weinkühlschrank. Das hochwertige Eichenparkett Landhausdiele ist in der gesamten Wohnung verlegt, das Masterbad ist mir Natursteinen gefliest, und wird über eine Fußbodenheizung beheizt. Der durchaus großzügige Balkon ist mit Bankirai Holz versehen und sehr gemütlich.


Furnishing

Eichenparkett, Einbauküche inklusive Einbaugeräte, Fussbodenheizung, Fahrstuhl, Balkon, Keller, Bad und Gäste WC.


Other

Die großzügige, hochwertig ausgestattete Küche mit moderner Kochinsel inklusive aller Einbaugeräte ist Bestandteil der Wohnung und wird für die Mietdauer überlassen. Im Schlafzimmer befindet sich ein maßgefertigter sehr hochwertiger italienischer Kleiderschrank mit integrierter Beleuchtung und exklusiven Lederschubladen. Dieser sowie zwei praktische Einbauschränke im Flur müssten gegen eine angemessene Abschlagszahlung übernommen werden.
Die angegebene Miete von 2500€ ist die Warmmiete inklusive Heizung und Warmwasser, Müllentsorgung etc.


Location

Location description

Die Immobilie befindet sich in beliebter Wohnlage in Berlin Charlottenburg. In direkter Umgebung finden Sie verschiedene Restaurants, Cafés, Ärzte, Bäckereien und zwei Einkaufszentren vor. Auch ein paar Fitnessstudios, Bars, Buchhandlungen, Modegeschäfte und Grün- und Parkanlagen erreichen Sie.

ohne-makler.net
Contact:
Privat vom Eigentümer

Contact now