Traumhafte 3-Zimmer Ferienwohnung in Bad Hindelang

Zillenbachstraße 23
87541 Bad Hindelang – Bad Hindelang
Bayern
280.000 €
Selling Price
49 m²
Living Area
3
Rooms
TraumImmo-ID: 6DHVDNB
Partner-ID: 400177
Partner-Property by: ohne-makler.net
Contact:
Privat von Angela Hunold

Contact now

Information

  • Type: Terraced Flat
  • Living Area ca.: 49 m²
  • Free From: Nach Vereinbarung
  • Rooms: 3
Kitchen

  • Construction Year: 1989
  • Condition: WellKept
  • Heating Type: CentralHeating
  • Firing Type: Oil
  • Bathrooms: 1.0

Selling Price & Extra Costs

Selling Price280.000 €
Courtageno courtage for buyers

About this dream apartment

Property Description

Wir verkaufen unsere schöne Ferienwohnung in Bad Hindelang. Sie liegt wunderbar ruhig und dennoch zentral, nur wenige Minuten vom Ortskern entfernt. Die Wohnung ist ein idealer Ausgangspunkt für Wanderungen, Skitouren, entspannte Spaziergänge und vieler weiterer Freizeitaktivitäten. Sie liegt im Souterrain einer sehr schönen Ferienwohnungsanlage.

Optional kann die Wohnung über eine Ferienwohnungsvermittlung betrieben werden. So kann sie selbst genutzt und als Ferienwohnung vermietet werden, ohne, dass man sich selbst um die Vermietung und Reinigung kümmern muss. Ein Anbieter ist direkt im Haus ansässig.

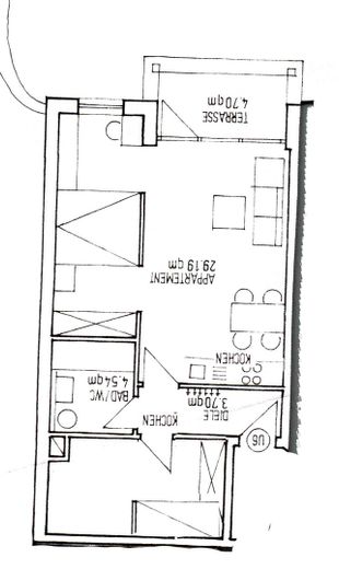
Das Herzstück der Wohnung ist die offene Wohnküche mit gemütlicher Sitzbank und Couch sowie direktem Zugang zur Terrasse. Hier sitzt man geschützt am Ende der Anlage und genießt einen seitlichen Blick auf den Imberg.

Das Schlafzimmer mit seinen 2 Türen ist raffiniert geschnitten und bietet eine besonders ruhige Schlafatmosphäre. Von der Diele aus gelangen Sie außerdem in das hochwertige, moderne Duschbad sowie in das zweite Schlafzimmer mit Doppelstockbett, Schrank und Schreibtisch. Aufgrund der Hanglage ist hier ein Lichtschacht integriert.

Die Wohnung ist selbstverständlich komplett möbliert und als Ferienwohnung ausgestattet. Alles in der Ferienwohnung ist im Preis mit inbegriffen.

Zur Wohnung gehört ein Duplextiefgaragenstellplatz, welcher von der Wohnung aus annähernd barrierefrei erreicht werden kann.

Wir haben die Wohnung bislang selbst genutzt, um regelmäßig Verwandte im Ort zu besuchen. Da diese nun wegziehen, haben wir uns entschieden, die Wohnung zu verkaufen.

Besichtigungen sind ab Dezember möglich. Wir freuen uns auf Ihre Nachricht!


Location

Location description

Bad Hindelang ist eine malerische Gemeinde im Allgäu, bekannt für ihre reizvolle Landschaft und die Nähe zu Wintersportgebieten. Die Infrastruktur bietet Einkaufsmöglichkeiten für den täglichen Bedarf sowie eine gute Anbindung an öffentliche Verkehrsmittel. Die Umgebung lädt zu vielfältigen Freizeitaktivitäten wie Wandern, Skifahren und Erholung in der Natur ein.

ohne-makler.net
Contact:
Privat von Angela Hunold

Contact now