Aussenansicht
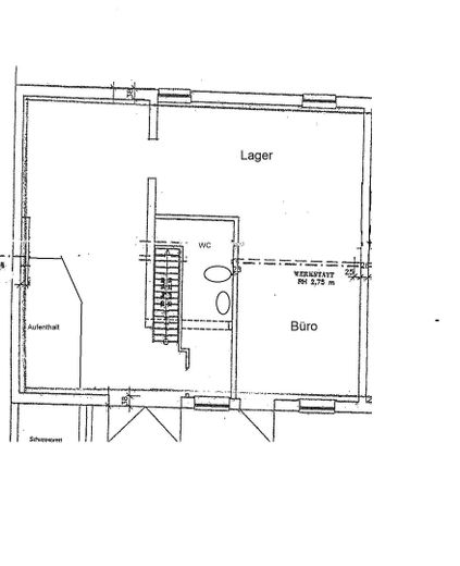
Grundriss EG
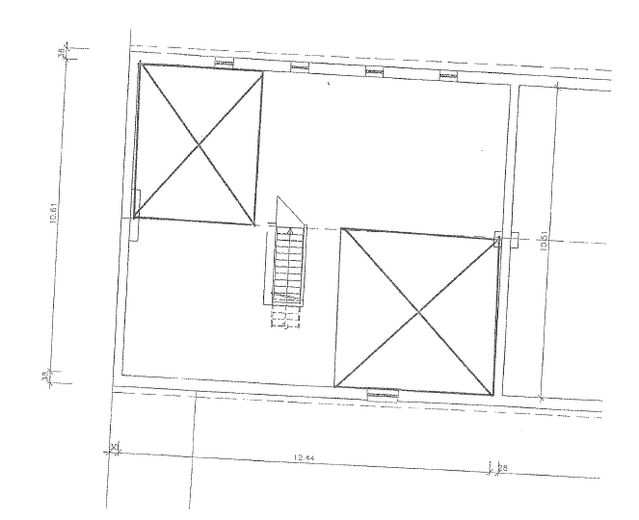
DG

Gewerbeeinheit Büro/Lager Buckower Damm

Buckower Damm 235
12349 Berlin – Buckow
Berlin
1680 €
Rent without service charge
TraumImmo-ID: 75YD3ZM
Partner-ID: 402381
Partner-Property by: ohne-makler.net
Contact:
Privat von Jens Borchert

Contact now

Information

  • Type: Office Floor
  • Storey: 0
  • Free From: 01.01.2026

  • Condition: WellKept
  • Heating Type: CentralHeating
  • Firing Type: Oil
  • Storeys: 1
  • Heating Costs included in Service Charge: True

Rent & Utilities

Rent1680 €
Additional Costs220 € incl. heating costs
Heating Costs110 €
Deposit5000€
Courtageno courtage for buyers

About this dream office

Property Description

Vermietet wird auf dem Hof des Grundstücks Buckower Damm 235 eine Gewerbeeinheit mit Büro, Aufenthaltsraum und Lagerfläche im Erdgeschoss mit ca. 120 m². Das Dachgeschoss, welches über die Treppe innerhalb der Räume im Erdgeschoss zu begehen ist, ist unbeheizt und hat eine Größe von ca 120 m² und kann zur Lagerung genutzt werden. Auf dem Gelände ist noch eine Tischlerei/Küchenstudio angesiedelt.


Location

Location description

Die Gewerbeeinheit befindet sich nahe der Kreuzung Buckower Damm/ Johannisthaler Chaussee und ist durch mehrere Buslinien verkehrstechnisch gut angebunden. Nächste AB Auffahrten (Gradestr. sowie Johannisthaler Chaussee) ca. 4 Km entfernt.

ohne-makler.net
Contact:
Privat von Jens Borchert

Contact now