Moderne Gewerbeeineit im Süden von Dorsten - individuell teilbar!

An der Seikenkapelle 23-25
46282 Dorsten – Dorsten
Nordrhein-Westfalen
TraumImmo-ID: 7FRUHXP
Partner-ID: 388005
Partner-Property by: ohne-makler.net
Contact:
Angebot von TPI Dorsten GmbH

Phone:
02362 97440

Contact now

Information

  • Type: Store
  • Storey: 0
  • Free From: Nach Vereinbarung
Handicapped Accessible

  • Property Area: 1860.0
  • Construction Year: 1981
  • Heating Type: CentralHeating
  • Firing Type: Gas
  • Storeys: 1

Rent & Utilities

Courtageno courtage for buyers

About this dream store

Property Description

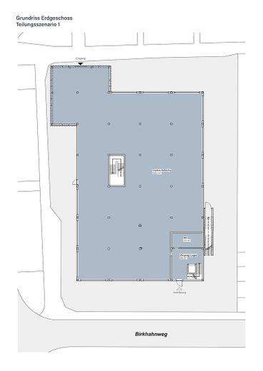
Am Standort An der Seikenkapelle 23–25 in Dorsten-Hardt steht ab dem 01.01.2026 (Bezug nach Vereinbarung) eine großzügige Gewerbefläche zur Verfügung: ca. 980 m² im Erdgeschoss sowie ca. 270 m² Lagerfläche im Kellergeschoss. Diese ist bei Bedarf um weitere 180 m² erweiterbar.

Das Bestandsgebäude von 1981 liegt in markanter Ecklage und überzeugt durch seine moderne Skelettbauweise, barrierefreien Zugang und eine separate Anlieferzone.

Die Fläche ist flexibel teilbar – eine Nutzung als Gesamteinheit oder in bis zu drei unabhängige Einheiten ist möglich. Zudem besteht die Option einer Modernisierung, etwa durch die Öffnung der Fassade für attraktive Schaufensterflächen.

Die Vermietung erfolgt ab 9 €/m2 netto Kaltmiete. Der Mietpreis orientiert sich am lokalen Niveau und wird durch die gute Erreichbarkeit sowie das attraktive Umfeld mit stabiler Infrastruktur gestützt. Je nach Ausbauzustand und Nutzungskonzept ist auch eine Staffelung denkbar.

BITTE BEACHTEN SIE:
Eine Wiedervermietung an klassische Nahversorger (z. B. Lebensmittel, Bäckereien, Blumenläden) ist bewusst ausgeschlossen. Dies wurde im aktuellen Bebauungsplan festgelegt. Damit eignet sich die Immobilie besonders für Büro-, Praxis-, Bildungs- oder kreative Konzepte, die von der zentralen Lage, der guten Erreichbarkeit und der hohen Kundenfrequenz durch den neuen EDEKA-Markt gegenüber profitieren.

Weitere Informationen zum „Entwicklungskonzept zur Steuerung des Einzelhandels in der Stadt Dorsten“ erhalten Sie bei der Stadt Dorsten.
www.dorsten.de/wirtschaft-und-wohnen/planung-and-umwelt/einzelhandel-1


Furnishing

Die Immobilie verfügt über einen barrierefreien Zugang für Nutzer und Besucher sowie einen Keller mit praktischem Lastenaufzug. Eine separate Anlieferung über die rückwärtige Fassade ermöglicht eine komfortable Warenanlieferung. Für Mieter stehen insgesamt 25 Stellplätze zur Verfügung – davon 10 direkt am Gebäude und 15 weitere auf dem angrenzenden Grundstück am Birkhahnweg. Zusätzlich gibt es in der Umgebung rund 40 öffentliche Stellplätze, darunter 2 mit Elektroladepunkten.


Other

Ein Verbrauchsausweis zum Gebäude liegt vor und kann bei Besichtigung eingesehen werden.

Für die gewünschte Nachnutzung der Fläche ist eine formelle Nutzungsänderung erforderlich. Das Stellen eines entsprechenden Antrags bei der Stadt Dorsten ist notwendig und Bestandteil des weiteren Verfahrens. Das Architekturbüro THIEKEN ARCHITEKTEN + INGENIEURE GmbH unterstützt Sie hierbei gerne mit fachlicher Expertise und der erforderlichen Antragsvorbereitung.

Wir bitten darum, von eigenständigen Ortsbesichtigungen abzusehen, um den laufenden Betrieb sowie die Anwohnerschaft nicht zu beeinträchtigen. Gerne vereinbaren wir mit Ihnen bei Interesse einen individuellen Besichtigungstermin vor Ort.

Die Kontaktdaten der TPI Dorsten finden Sie auf der letzten Seite des Exposés.


Location

Location description

Die Immobilie befindet sich im Herzen von Dorsten-Hardt. Dorsten vereint wirtschaftliche Dynamik mit hoher Lebens- und Aufenthaltsqualität – geprägt von einer charmanten Innenstadt, dem Wochenmarkt, vielfältiger Gastronomie sowie den naturnahen Lippeauen und dem Naturpark Hohe Mark.

Der Standort „An der Seikenkapelle 23–25“ überzeugt durch seine zentrale Ecklage in einem gewachsenen Wohnumfeld. In direkter Umgebung befinden sich Supermärkte, Bäckereien, Apotheken, Schulen und Kindergärten. Besonders attraktiv ist der neue EDEKA-Vollsortimenter auf der gegenüberliegenden Straßenseite, dessen Eröffnung für November 2025 geplant ist und zusätzliche Frequenz schafft.

Eine hervorragende Verkehrsanbindung rundet den Standort ab: direkter Anschluss an die B225, kurze Wege zur A31 sowie zu den umliegenden Städten Marl, Gladbeck, Gelsenkirchen und Borken. Bushaltestellen und der fußläufig erreichbare Bahnhof sorgen zudem für optimale Erreichbarkeit mit öffentlichen Verkehrsmitteln.

ohne-makler.net
Contact:
Angebot von TPI Dorsten GmbH

Phone:
02362 97440

Contact now