Lagerfläche (Beton u. Teppich)
Visualisierung - KI-Generiert
Lagerfläche (Beton u. Teppich)
Lagerfläche (Beton u. Teppich)
Einbauküche
Lagerfläche / Einzelbüro
Lagerfläche / Einzelbüro
Personenaufzug
WC-Anlagen
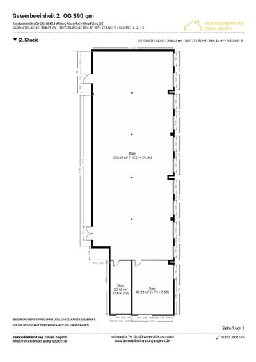
Grundriss
Lastenaufzug
WC-Anlagen
Objektansicht

390 m² Lagerfläche mit Lastenaufzug – flexibel, sicher & sofort nutzbar

Stockumer Straße 28
58453 Witten – Witten
Nordrhein-Westfalen
1755 €
Rent without service charge
TraumImmo-ID: 7J6PRCT
Partner-ID: 421538
Partner-Property by: ohne-makler.net
Contact:
Angebot von Tobias Segieth

Phone:
0157 89305051

Contact now

Information

  • Type: Storage Hall
  • Storey: 2
  • Free From: sofort

  • Construction Year: 2002
  • Condition: FullyRenovated
  • Heating Type: CentralHeating
  • Firing Type: Gas
  • Storeys: 2

Rent & Utilities

Rent1755 €
Deposit5460€
Courtageno courtage for buyers

About this dream industry property

Property Description

Moderne und flexibel nutzbare Lagerfläche (ca. 390 m²) im gepflegten Gewerbeobjekt in Witten. Mit Lastenaufzug (bis 2 t), barrierefreiem Zugang, Service & 24-Stunden-Nutzung.
Ideal für E-Commerce, Handwerk, Service- oder Projektlager.

Objektbeschreibung
Diese vielseitige Lager- und Gewerbefläche mit ca. 390 m² befindet sich im 2. Obergeschoss eines modernisierten, professionell bewirtschafteten Gewerbegebäudes an der Stockumer Straße in Witten.

Die Einheit überzeugt durch einen großzügigen, flexibel gestaltbaren Grundriss, der sich individuell an unterschiedliche Nutzungsanforderungen anpassen lässt. Ob klassisches Lager, Projektfläche oder Kombination aus Lager und Funktionsräumen – hier sind vielfältige Konzepte realisierbar.

Ein Lastenaufzug mit bis zu 2 Tonnen Tragkraft, ein Personenaufzug sowie ein barrierefreier Zugang gewährleisten eine komfortable Andienung und Nutzung. Die Fläche ist rund um die Uhr nutzbar, was insbesondere für logistiknahe oder zeitflexible Unternehmen ein großer Vorteil ist.

Das repräsentative Gesamtobjekt bietet ein sicheres, gepflegtes und professionelles Umfeld mit Serviceleistungen, die im täglichen Betrieb spürbaren Mehrwert schaffen.


Furnishing

Fläche & Nutzung

- ca. 390 m² Gesamtfläche
- aktuell 3 Räume, flexibel teilbar
- barrierefrei erreichbar
- 24/7 nutzbar

Technik & Infrastruktur

- Lastenaufzug bis 2.000 kg
- Personenaufzug
- EDV- / DV-Verkabelung
- Glasfaser-Internet
- Wasseranschluss in der Einheit
- optional beheizbar (Gas-Zentralheizung)

Gebäude & Service

- repräsentativer Eingangsbereich mit Foyer
- 24-Stunden-Zugangskontrolle
- Pförtnerdienst inkl. Postannahme
- Hausmeisterservice
- Videoüberwachung
- getrennte Damen-, Herren- & Behinderten-WCs
- regelmäßige Reinigung der Sanitärbereiche

Parken

- 1 Außenstellplatz im Mietpreis enthalten
- weitere Stellplätze optional (20,00 € / Monat)
- kostenfreie Kundenparkplätze


Other

Besichtigungstermine

Hinterlassen Sie für weitere Informationen oder zur Vereinbarung eines Besichtigungstermins gerne eine Anfrage oder kontaktieren Sie uns telefonisch.

Zusatzinformationen

Der Energieausweis liegt zur Besichtigung vor.

Alle Angaben nach bestem Wissen. Irrtum und Zwischenvermietung vorbehalten. Dieses Exposé ist eine Vorinformation, als Rechtsgrundlage gilt allein der abgeschlossene Mietvertrag. Für die Richtigkeit und Vollständigkeit kann keine Haftung übernommen werden.

Impressum
Angaben gemäß § 5 TMG

Immobilienberatung Tobias Segieth
Holzstraße 79
58453 Witten

Telefon: +49 2302 7601670
E-Mail: info@immobilienberatung-segieth.de

Inhaber:
Tobias Segieth

Rechtsform:
Einzelunternehmen

Aufsichtsbehörde
Ordnungsamt der Stadt Witten
Marktstraße 16
58452 Witten

https://www.witten.de/rathaus-service/verwaltung/aemter-dezernate/dezernat-3/ordnungsamt/

Erlaubnis gemäß § 34c der GewO erteilt:
Ennepe-Ruhr-Kreis
Hauptstraße 92
58332 Schwelm

Berufsbezeichnung und berufsrechtliche Regelungen
Berufsbezeichnung:
Immobilienmakler

Zuständige Kammer:
IHK Mittleres Ruhrgebiet
Ostring 30-32
44787 Bochum

Verliehen in:
Deutschland

EU-Streitschlichtung
Die Europäische Kommission stellt eine Plattform zur Online-Streitbeilegung (OS) bereit: https://ec.europa.eu/consumers/odr/.
Unsere E-Mail-Adresse finden Sie oben im Impressum.

Verbraucher­streit­beilegung/Universal­schlichtungs­stelle
Wir sind nicht bereit oder verpflichtet, an Streitbeilegungsverfahren vor einer Verbraucherschlichtungsstelle teilzunehmen.

Zentrale Kontaktstelle nach dem Digital Services Act - DSA (Verordnung (EU) 2022/265)
Unsere zentrale Kontaktstelle für Nutzer und Behörden nach Art. 11, 12 DSA erreichen Sie wie folgt:

Telefon: +49 2302 7601670
E-Mail: info@immobilienberatung-segieth.de


Location

Location description

Der Standort Stockumer Straße 28 in 58453 Witten überzeugt durch seine verkehrsgünstige Lage im Ruhrgebiet. Die schnelle Anbindung an das Autobahndreieck Bochum / Dortmund / Hagen sowie die Nähe zur A44 ermöglichen kurze Wege in alle Richtungen.

Die S-Bahn-Station Witten-Annen ist fußläufig erreichbar und verbindet den Standort direkt mit Bochum, Dortmund und Hagen.
Das direkte Umfeld ist geprägt von Gewerbe-, Technologie- und Dienstleistungsunternehmen und bietet ein professionelles, wirtschaftsstarkes Umfeld.

ohne-makler.net
Contact:
Angebot von Tobias Segieth

Phone:
0157 89305051

Contact now