Wohnzimmer
Wohnzimmer
Schlafzimmer 1
Schlafzimmer 1
Küche
Küche
kleines Zimmer
Spielplatz hinter dem Haus
3D Grundriss
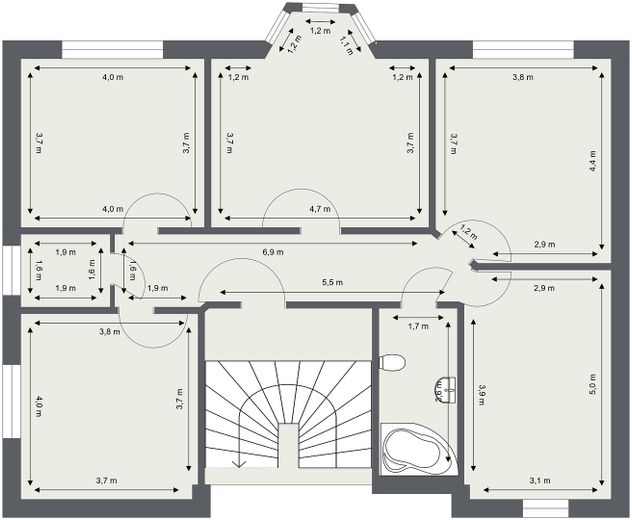
2D Grundriss mit Vermaßung
Schlafzimmer 2
Schlafzimmer 3
Sportplatz hinter dem Haus
Schlafzimmer 1
Aussenansicht Haus
Wohnzimmer
Flur
Wohnzimmer
Schlafzimmer 2
kleines Zimmer
Badezimmer
Spielplatz hinter dem Haus

Neu renovierte 5-Zimmerwohnung zu vermieten

Eckeseyer Str. 169
58089 Hagen – Hagen
Nordrhein-Westfalen
1000 €
Rent without service charge
101 m²
Living Area
5
Rooms
TraumImmo-ID: 7XPHPZR
Partner-ID: 403730
Partner-Property by: ohne-makler.net
Contact:
Privat von Christian Keller

Contact now

Information

  • Type: Flat
  • Storey: 1
  • Living Area ca.: 101 m²
  • Free From: sofort
  • Rooms: 5
CellarGarden

  • Construction Year: 1990
  • Condition: FirstTimeUseAfterRefurbishment
  • Heating Type: CentralHeating
  • Firing Type: Gas
  • Storeys: 1
  • Bathrooms: 1.0
  • Heating Costs included in Service Charge: True

Rent & Utilities

Rent1000 €
Additional Costs300 € incl. heating costs
Heating Costs150 €

About this dream apartment

Property Description

Diese attraktive 5-Zimmer Wohnung mit ca. 101,8 m² Wohnfläche befindet sich im 1. Obergeschoss eines Mehrfamilienhauses in Hagen-Vorrhalle. Die Wohnung zeichnet sich durch eine gehobene Innenausstattung aus und bietet ausreichend Platz für Familien oder Paare, die Wert auf Komfort legen. Ein Kellerabteil gehört zur Wohnung und bietet zusätzlichen Stauraum. Ein gemeinschaftlich genutzter Garten lädt zum Entspannen ein.
Alle Zimmer wurden renoviert, Wände und Decken neu gestrichen, neue Böden verlegt.
Es gibt 3 große Schlafzimmer mit Fenstern. 1 kleines Zimmer welches als Abstellraum oder auch als kleines SChlafzimmer genutzt werden kann. Dann gibt es ein schönes Wohnzimmer zur Straßenseite hin.
Die großzügig geschnittene Küche ist ideal um sich zu entfalten.
Das Badezimmer ist auch groß und modern eingerichtet.


Furnishing

Alle Zimmer wurden renoviert, Wände und Decken neu gestrichen, neue Böden verlegt.
Es gibt 3 große Schlafzimmer mit Fenstern. 1 kleines Zimmer, welches als Abstellraum oder auch als kleines Schlafzimmer genutzt werden kann. Dann gibt es ein schönes Wohnzimmer zur Straßenseite hin.
Die großzügig geschnittene Küche ist ideal, um sich zu entfalten. Der Boden ist mit schönen Fliesen belegt.
Das Badezimmer ist auch groß, weiß gefliest und modern mit einer Eckbadewanne eingerichtet.


Location

Location description

Das Objekt befindet sich in belebter Wohnlage in Hagen Vorhalle. Mehrere Buslinien sind fast direkt vor dem Haus. In direkter Umgebung finden Sie mehrere Supermärkte, Bäckereien, zwei Restaurants und ein Café vor. Außerdem gibt es ein paar Grün- und Parkanlagen, Tierhandlungen, zwei Physiotherapeuten, ein Modegeschäft und ein Fitnessstudio.
Die Nachbarschaft gilt als sicher und familienfreundlich, was Vorhalle zu einer attraktiven Wohngegend für junge Familien und Berufstätige macht, die eine ruhige Umgebung schätzen.
Kindergarten und Schule sind ebenfalls in direkter Umgebung. Hinter dem Haus gibt es einen Spielplatz für Kinder und einen Sportplatz für Basketball und Fußball

ohne-makler.net
Contact:
Privat von Christian Keller

Contact now