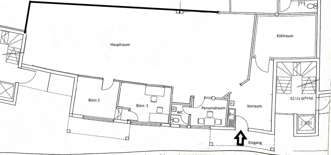
grundriss
vorraum2
treppe zu büro 1
eingang
eingang
fenster
hauptraum
hauptraum
personalraum
personalraum
vorraum1
hauptraum
büro 1
personalraum
fenster
hauptraum

Lager oder Büro

Walter-Gropius-Str. 3
72762 Reutlingen – Reutlingen
Baden-Württemberg
950 €
Rent without service charge
TraumImmo-ID: 8JQ92AY
Partner-ID: 393187
Partner-Property by: ohne-makler.net
Contact:
Privat vom Eigentümer

Contact now

Information

  • Type: Storage Hall
  • Storey: 0
  • Free From: 01.12.2025
Guest-Toilet

  • Construction Year: 1997
  • Heating Type: CentralHeating
  • Firing Type: FiringTypeDistrictHeating
  • Heating Costs included in Service Charge: True

Rent & Utilities

Rent950 €
Additional Costs200 € incl. heating costs
Deposit2000€
Courtageno courtage for buyers

About this dream industry property

Property Description

Lager und Büro
160 qm
Mit WC

Es grenzen Wohnungen an, somit sind keine lauten Maschinen möglich.
Haupteingangstüre: 82cm Breite, 205cm Höhe

Bei gewerblicher Nutzung zzgl. 19% USt.


Location

ohne-makler.net
Contact:
Privat vom Eigentümer

Contact now