Garten
Garten und Gewächshaus
Aussenansicht
Aussenansicht
1.Etage gr. Schlafzimmer
Badezimmer 1. Etage
Atelier
Atelier
Wohnzimmer
Heiztherme und Kessel
Sauna
1 OG
2OG
Atelier
Atelier
Gäste-WC
Eingangssituation mit Bank
Eingangssituation
Parterre
Küche
Bad 2. Etage
Treppenhaus
1.Etage Zimmer 2
Keller
Parterre

Sonniges und geräumiges Reihenendhaus in Laatzen-Grasdorf

Get the full address via contact
30880 Laatzen – Rethen
Niedersachsen
550.000 €
Selling Price
166 m²
Living Area
6
Rooms
TraumImmo-ID: 8QCXQXC
Partner-ID: 382575
Partner-Property by: ohne-makler.net
Contact:
Privat von Camilo Vargas Koch

Contact now

Information

  • Type: End Unit
  • Living Area ca.: 166 m²
  • Free From: Nach Vereinbarung
  • Rooms: 6
CellarGuest-ToiletBalconyGarden

  • Property Area: 376.0
  • Construction Year: 1978
  • Condition: FullyRenovated
  • Heating Type: CentralHeating
  • Firing Type: Gas
  • Storeys: 3
  • Usable Floor Space: 237.0
  • Bathrooms: 3.0

Selling Price & Extra Costs

Selling Price550.000 €
Courtageno courtage for buyers

About this dream house

Property Description

Attraktives Einfamilien-Reiheneckhaus mit sonniger Südwest-Ausrichtung und großzügigen Wohnflächen auf drei Etagen. Das Haus ist in solider Bauweise in Stahlbeton errichtet und bietet sowohl im Innen- als auch im Außenbereich viel Platz für die ganze Familie. Ein großer Garten mit Obstbäumen und Wiese lädt zum Entspannen ein.

Im Erdgeschoss finden sie ein großzügiges Wohnzimmer, das mit bodentiefen Fenstern den Blick in den Garten freigibt und direkt auf die Terrasse führt. Im Erdgeschoß befindet sich eine moderne Wohnküche und ein Gäste-WC.

Im ersten Obergeschoss befinden sich drei Schlafzimmer sowie ein Badezimmer. Ein Zimmer verfügt über einen großen Balkon, von dem Sie einen schönen Blick auf den Garten haben.

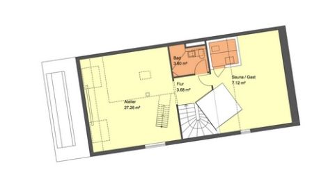
Das Dachgeschoss bietet ein Atelier, ein Schlafzimmer, eine Sauna sowie ein weiteres Bad. Zusätzlich gibt es einen ausgebauten Raum, der vielfältig genutzt werden kann.

Der Vollkeller umfasst einen großzügigen Hobbyraum, einen Heiz- und Waschkeller sowie einen Vorratskeller. Über eine Außentreppe gelangen Sie auch von außen in den Kellerbereich.

Ausstattung:
Das Haus wurde 1978 erbaut und fortlaufend renoviert. Die Innenwände bestehen aus massiven Gipsblockwänden, und die Außenwände sowie Decken sind aus Stahlbeton. Die Trennung zwischen den Reihenhäusern erfolgt durch solide 2x 20 cm dicke Wände, so dass keine Schallübertragung stattfindet. Die Fundamentierung besteht aus einer Stahlbetonplatte mit weißer Wanne.

Das Satteldach ist in Kunstschieferdeckung ausgeführt und wurde zimmermannsmäßig verarbeitet. Das Dachgeschoss ist gut isoliert und bietet einen vollwertig nutzbaren Raum.

Im Jahr 2020 wurde eine neue Brennwerttherme der Marke Viessmann installiert. Das Haus ist modern und gepflegt und bietet zahlreiche Extras wie einen Balkon, ein Wannenbad, ein Duschbad, ein Gäste-WC, einen Vorratskeller, einen Waschkeller, einen Hobbyraum, einen Dachboden sowie eine Terrasse, einen Garten und ein Gewächshaus.


Location

Location description

Das Haus befindet sich in einer Top-Wohnlage. Insbesondere die Ruhe und Entspannheit zeichnet die familienfreundliche Wohnqualität aus. Das Reihenendhaus liegt in einer verkehrsberuhigten Straße in Grasdorf, einem begehrten Ortsteil von Laatzen. Die Anbindung an den öffentlichen Nahverkehr ist ideal: Eine Bushaltestelle ist in unmittelbarer Nähe, und in nur 10 Minuten erreichen Sie die Üstra-Linien 1 und 2 sowie den S-Bahnanschluss in Rethen Bahnhof.

Die Umgebung besticht durch ihre ruhige und grüne Lage in einem attraktiven Wohnviertel, das vorwiegend von Einfamilienhäusern geprägt ist. In der Nachbarschaft befinden sich zahlreiche Spielplätze, Kitas, Sporteinrichtungen sowie verschiedene Schularten. Einkaufsmöglichkeiten für den täglichen Bedarf sind ebenfalls schnell zu erreichen.

Das Naturschutz- und Naherholungsgebiet „Leinemasch“ mit dem Flusslauf der Leine und der Alten Leine ist nur 3 Gehminuten entfernt und bietet zahlreiche Freizeitmöglichkeiten.

Das Haus ist ein Reihenendhaus und verfügt über einen Carport auf dem Grundstück. Eine zusätzliche Garage ist ebenfalls in unmittelbarer Nähe vorhanden.
Sonstiges
.Weitere Details:
Gern teilen wir Ihnen weitere Einzelheiten zu diesem außergewöhnlichen Angebot auf Anfrage mit.

Bezugsfrei: Ab sofort

Hinweis:
Alle Angaben erfolgen nach bestem Wissen. Irrtümer und Zwischenverkauf sind vorbehalten. Als Rechtsgrundlage gilt ausschließlich der notariell abgeschlossene Kaufvertrag.

Besichtigungen sind nur nach vorheriger Vereinbarung möglich. Bitte keine Makleranfragen!

ohne-makler.net
Contact:
Privat von Camilo Vargas Koch

Contact now