Modernes Reiheneckhaus mit perfekter Raumaufteilung und großem Garten in Burgthann

Get the full address via contact
90559 Burgthann – Ezelsdorf
Bayern
1650 €
Rent without service charge
150 m²
Living Area
5
Rooms
TraumImmo-ID: 8WJ8HKF
Partner-ID: 393309
Partner-Property by: ohne-makler.net
Contact:
Privat vom Eigentümer

Contact now

Information

  • Type: End Unit
  • Living Area ca.: 150 m²
  • Free From: Nach Vereinbarung
  • Rooms: 5
KitchenGarden

  • Property Area: 304.0
  • Construction Year: 2024
  • Condition: MintCondition
  • Heating Type: CentralHeating
  • Firing Type: PelletHeating
  • Storeys: 3
  • Bathrooms: 1.0
  • Heating Costs included in Service Charge: True

Rent & Utilities

Rent1650 €
Additional Costs250 € incl. heating costs
Deposit3200€

About this dream house

Property Description

Das 2024 fertiggestellte Reiheneckhaus liegt im familienfreundlichen Burgthann im Ortsteil Ezelsdorf im Neubaugebiet Bayernstraße und ist ab dem 01.01.26 – bzw. nach Vereinbarung auch ab 01.11.25 - beziehbar. Es handelt sich um eine kleine Reihenhausanlage mit nur sechs Wohneinheiten in einem ruhigen, sehr schönen Wohnumfeld und netter Nachbarschaft.
Auf ca. 150 m² Wohnfläche besticht es durch helle, großzügige Räumlichkeiten und einen durchdachten Grundriss.
Das offen gestaltete Erdgeschoss mit bodentiefen Fenstern bietet einen direkten Zugang zu der nach Süden ausgerichteten Terrasse. Genießen Sie Sonne und Licht zu jeder Tageszeit. Im großzügigen Küchenbereich befindet sich eine moderne, neuwertige Einbauküche, die sinnvollerweise vom Vormieter abgelöst und übernommen werden sollte.
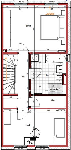
Über eine schöne Treppe mit Echtholzstufen erreichen Sie bequem das Obergeschoss. In diesem befinden sich zwei große Räume, z.B. geeignet als Eltern- und Kinderzimmer. Ein attraktives, modernes Tageslichtbad mit begehbarer großer Dusche, Badewanne und Handtuchheizkörper lässt keine Wünsche offen. Waschmaschinenanschluss ist im Bad vorhanden - eine begehbare Nische bietet zusätzlichen Stauraum.

Im Dachgeschoss befinden sich zwei weitere großzügige, helle Räume. Hier haben Sie z.B. die Möglichkeit sich ein Homeoffice einzurichten oder Ihren Hobbies nachzugehen. Der ausgebaute Dachspitz (Zugang über eine Dachbodeneinschubtreppe) bietet weitere Staufläche.

Die Versorgung mit Wärme erfolgt über eine Technikzentrale durch eine moderne und effiziente Holz-Pelletsheizung. Profitieren Sie von niedrigen Verbrauchskosten durch moderne Technik. Die Stromversorgung beauftragt der Mieter eigenständig bei einem Versorger und rechnet diese Kosten auch eigenständig mit ihm ab.

Für Ihre PKW stehen eine Garage sowie ein weiterer Stellplatz zur Verfügung (gesamt 50,00 €/Monat, in Kaltmiete enthalten).

Langfristige Vermietung ist angedacht - bitte nur Nichtraucher. Sofern Sie an dieser Immobilie Interesse haben, freue ich mich mit Ihnen in Kontakt zu treten. Auf Anfrage lasse ich Ihnen gerne auch ein ausführliches Exposé zukommen.


Location

Location description

Das neu errichtete, 2024 fertiggestellte Reiheneckhaus liegt im familienfreundlichen Burgthann – Ortsteil Ezelsdorf in dem Neubaugebiet Bayernstraße in einer ruhigen und attraktiven Wohngegend.
Fußläufig finden Sie im Neubaugebiet einen neuen, sehr schön gestalteten Quartiersplatz mit großem Spielplatz und den S-Bahnanschluss nach Nürnberg und Neumarkt.
Alle Geschäfte des täglichen Lebens [z.B. Kaufland, Aldi, KIK, Ernstings Family, Reno, Bäcker, Metzger etc. in Oberferrieden, Netto, Rewe, Metzger, Bäcker etc. (in Burgthann Ort), Rossmann, Norma, Netto und weitere (Postbauer-Heng)] darüber hinaus Apotheken bzw. verschiedene Arztpraxen] sind in der Nähe und gut erreichbar.

Kinderkrippe/-garten/-hort sowie Grundschule liegen in Burgthann-Ezelsdorf. Mittelschule in Burgthann oder Postbauer-Heng. Durch die sehr gute Nahverkehrsanbindung (S-Bahn) sind weiterführende Schulen (Neumarkt/Altdorf/Wendelstein/Nürnberg), sowie Nürnberg (Stadt, Flughafen etc.) in kurzer Zeit zu erreichen. Autobahnanschluss in Feucht zur A 9 und A 73, in Altdorf zur A3 und A6 in Neumarkt zur A3.

Die umliegenden Waldgebiete und der nahe gelegene Ludwig-Donau-Main-Kanal, sowie der Dillberg bieten die ideale Grundlage für Jogger, Spaziergänger und alle die gerne in der Natur unterwegs sind.

Die Großgemeinde Burgthann hat ca. 11.500 Einwohner und liegt in der Metropolregion Nürnberg. Sie finden hier eine hervorragende Infrastruktur und sehr viele Freizeitmöglichkeiten.

Burgthann – hier lässt´s sich gut leben (Slogan der Gemeinde)

ohne-makler.net
Contact:
Privat vom Eigentümer

Contact now