gesamter Gebäudekomplex
Erdgeschoss
Querschnitt
Südansicht Kaufobjekt
Einfahrt auf Grundstück
Dachgeschoss
Doppelcarport und Hauseingang
Bad Wohnung EG
Massives Doppelcarport
Küche Wohnung EG
Schlafraum Wohnung EG
Schlafraum Wohnung OG
ausgebauter Spitzboden OG
Kellerraum
Südansicht
Wohnzimmer Wohnung EG
Wohnung OG
Bad Wohnung OG
Werkraum Keller
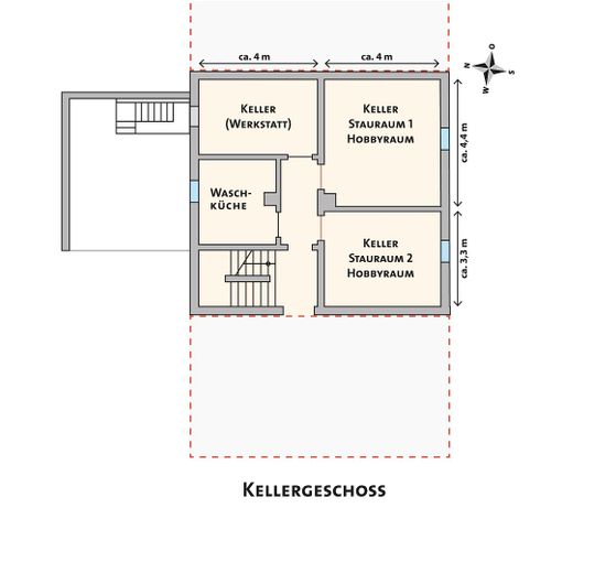
Kellergeschoss
Reihenhaus mit Grundstück
Nordansicht

Reihenmittelhaus mit zwei Wohnungen und Garten in ruhigem Wohngebiet

Get the full address via contact
91217 Hersbruck – Hersbruck
Bayern
190.000 €
Selling Price
92 m²
Living Area
4
Rooms
TraumImmo-ID: 9KVP29X
Partner-ID: 387920
Partner-Property by: ohne-makler.net
Contact:
Privat vom Eigentümer

Contact now

Information

  • Type: Mid-Terrace Town House
  • Living Area ca.: 92 m²
  • Free From: sofort
  • Rooms: 4
CellarKitchenGarden

  • Property Area: 353.0
  • Construction Year: 1956
  • Condition: WellKept
  • Heating Type: FloorHeating
  • Firing Type: Electricity
  • Storeys: 2
  • Usable Floor Space: 50.0
  • Bathrooms: 2.0

Selling Price & Extra Costs

Selling Price190.000 €
Courtageno courtage for buyers

About this dream house

Property Description

Das Wohnhaus in idealer Wohnlage im Stadtteil Altensittenbach
am Rande der Kleinstadt Hersbruck beinhaltet zwei Wohnungen
mit Vollkeller und beschaulichem Garten.

Wohnfläche EG ca. 50 qm, Wohnfläche OG ca. 40 qm.
Beide Wohnungen werden seit vielen Jahren
von zuverlässigen Mietern bewohnt.

Über eine Zufahrt können zwei Fahrzeuge bequem in einem
massiven Beton-Carport untergebracht werden.

Interessant ist vor allem neben der guten Wohnlage
das große Grundstück, welches weitere Optionen ermöglicht,
z.B. genug Platz für ein weiteres Carport.

Beide Wohnungen haben im Bad ein Fenster und
eine Badewanne. Die Wohnung im EG ist gut gepflegt,
das Bad ist mit neuem Boiler ausgestattet.

Zur Wohnung im OG gehört ein ausgebauter Spitzboden,
der direkt von der Wohnung aus zu erreichen ist.
Die Nutzfläche des ausgebauten Spitzbodens sind zusätzlich ca. 18 m².

Mit dem westlichen Nachbarn teilen sich die Mieter
den gemeinsamen Hauseingang zum Treppenhaus.
Dieser Nachbar hat ein Geh- und Fahrtrecht zum Eingang.

An dem Altbau wären ein paar Sanierungsarbeiten angebracht,
weshalb der Preis des Objektes entsprechend niedrig angesetzt ist.
So wird eine mögliche Renovierung erleichtert.

Bitte verstehen Sie, dass Besichtigungstermine nur
mit Finanzierungsbestätigung vereinbart werden.

Auskunft über die aktuellen Mieteinnahmen
der beiden abgeschlossenen Wohneinheiten
bei ernsthaftem Kaufinteresse.


Furnishing

massives Carport mit Platz für 2 PKW

Energ­ieausweis liegt vor

zwei Abstellräume, Werkraum
und Waschküche im Keller

ausgebauter Dachstuhl mit 18 qm Nutzfläche - Wohnung OG


Location

Location description

Das Reihenmittelhaus befindet sich in einem ruhigen,
Wohngebiet im Stadtteil Altensittenbach
am Rande der idyllischen Kleinstadt Hersbruck.

Besonders ist der optimale Standort inmitten der
umfangreichen Nahversorgung und Infrastruktur in
direkter Nachbarschaft zu den naturnahen Pegnitzauen.

Als Mittelzentrum der Metropolregion Nürnberg bietet
die Kleinstadt mit ca. 12.500 Einwohnern beides.
Eine schnelle, praktische Verkehrsanbindung und
umfangreiche Nahversorgung mit breitem Bildungs-
und Gesundheits- Angebot. Einfach ein gemütliches
fränkisches Städtchen mit malerischer Altstadt,
Marktplätzen, Freizeit- und Kulturangeboten
nahe der fränkischen Schweiz.

Das Stadtzentrum ist nur ca. 700 Meter entfernt und
bequem zu Fuß zu erreichen.

In 600 Meter Entfernung ist der Bahnhof Hersbruck
über den schnell in das Schienennetz eingestiegen
werden kann.
In nur 10 Minuten ist so Lauf an der Pegnitz und in
nur 30 Minuten Nürnberg Hbf mit dem Zug erreichbar.

Die Bushaltestelle „Stadtwerke“ ist mit 350 m
fußläufig gleichfalls sehr schnell erreichbar.

Die nur 1,5 km entfernte B 14 bietet eine schnelle
Anbindung nach Lauf und Nürnberg. In 10 Minuten ist
die Autobahnauffahrt A9 „Lauf/Hersbruck“ erreichbar.

In Hinsicht auf Einkaufsmöglichkeiten verfügt die
Umgebung über mehrere Supermärkte, wie Aldi, Lidl,
Norma, REWE, BioMarkt und vieles mehr. Diese sind
gut zu Fuß oder mit dem Fahrrad erreichbar.

Bäckereien, Cafes, sowie Drogeriemärkte
wie Müller und dm sind ebenfalls in der Nähe.

Für Heimwerkerprojekte gibt es die Baywa - Raiffeisen
Waren GmbH Nürnberger Land, die fußläufig erreichbar
ist, und einen großen 8 km entfernten Obi Baumarkt.

Die Bildungseinrichtungen umfassen eine Grundschule,
eine Mittelschule, Realschule und ein Gymnasium sowie
ein Sonderpädagogisches Förderzentrum.
Alle Bildungseinrichtungen sind bequem mit dem Fahrrad
erreichbar. Für die Kleinsten gibt es drei Kindergärten.

Als Gesundheitsversorgung sind ein Kinderarzt,
Zahnärzte und viele weitere Arztpraxen nur wenige
Gehminuten entfernt. Das Krankenhaus Hersbruck,
eine Hautklinik und Apotheken sind ebenfalls nahe.

Für Kulturinteressierte gibt es kleine Bühnen wie
das City-Kino, ein Theater, Museen und vieles mehr.

Rund um den lebendigen Stadtkern ist die kulinarische
Vielfalt mit Gastronomiebetrieben wie Restaurants,
Cafes und Bistros besonders groß. Von bodenständiger
fränkischer Küche, über italienische, griechische,
türkische, asiatische oder amerikanische Spezialitäten.
Hier ist sicher für jeden Geschmack etwas dabei.
Diverse Bars, Kneipen, Schankwirtschaften,
und eine Weinerei bereichern das Nachtleben.

Für Sportbegeisterte sind ein öffentlicher Sportplatz,
eine große Kletterhalle, ein Schwimmbad und eine
Turnhalle vor Ort.

Das große Freizeitangebot umfasst zudem Sportvereine,
Fitnessstudios und zur Entspannung ein Thermal- und
Freizeitbad die „Fackelmann Therme Hersbruck“.

Der Happurger Bagger- und der Stausee sind in
10 Minuten mit dem Auto erreichbar. Die Umgebung
ist für ihre schönen Wanderungen, Kletter- und
Kanutouren bekannt.

ohne-makler.net
Contact:
Privat vom Eigentümer

Contact now