| Selling Price | 349.000 € |
|---|---|
| Courtage | no courtage for buyers |
Dieses charmante Einfamilienhaus befindet sich in ruhiger und zentraler Lage von Riedstadt-Goddelau. Das ursprünglich im Jahr 1922 errichtete Haus verbindet historischen Charakter mit einem modernen Wohnstandard, da es 2018 umfassend renoviert und gedämmt wurde. Wesentliche Sanierungsmaßnahmen sind aktuell nicht erforderlich – hier heißt es einziehen und wohlfühlen.
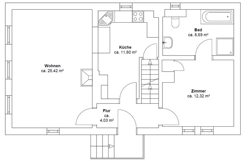
Die Immobilie verfügt über eine Wohnfläche von ca. 120 m², die sich auf 4 gut geschnittene Zimmer verteilt. Die durchdachte Raumaufteilung bietet sowohl Paaren als auch Familien ein modernes und helles Wohnambiente.
Ein besonderes Highlight ist das gemütliche Wohnzimmer mit Kamin, der nicht nur an kühleren Tagen für eine behagliche Atmosphäre sorgt, sondern dem Haus auch einen besonderen Wohlfühlcharakter verleiht. Abgerundet wird dieses Angebot durch einen großen Keller mit viel Stauraum sowie der ausgebaute Dachgiebel, in dem sich zwei weitere Räume befinden, die flexibel genutzt werden können.
Dieses Haus vereint Altbaucharme, modernen Wohnkomfort und familienfreundliche Raumlösungen in einer beliebten Wohnlage – ein Zuhause zum Ankommen und Wohlfühlen.
Das Einfamilienhaus überzeugt durch eine durchdachte Ausstattung und großzügige Nutzflächen. Besonders hervorzuheben ist der große Keller, der viel Stauraum für Haushaltsgegenstände, Vorräte oder Hobbybedarf bietet. Zusätzlich verfügt das Haus über einen ausgebauten Dachgiebel, in dem sich zwei weitere Zimmer befinden, die flexibel als Schlaf-, Arbeits- oder Hobbyräume genutzt werden können. Der moderne Gesamtzustand sowie der Kamin im Wohnzimmer runden das attraktive Ausstattungskonzept ab.
Überzeugen Sie sich selbst bei einer persönlichen Besichtigung – wir freuen uns auf Ihre Anfrage!
Die Immobilie befindet sich in ruhiger Wohnlage von Riedstadt-Goddelau. Einkaufsmöglichkeiten des täglichen Bedarfs, Schulen, Kindergärten sowie Ärzte sind in wenigen Minuten erreichbar. Eine gute Anbindung an den öffentlichen Nahverkehr sowie die Nähe zum Bahnhof (ca. 10 Min. zu Fuß) und Autobahnen gewährleisten eine schnelle Erreichbarkeit der umliegenden Städte wie Darmstadt, Mainz und Frankfurt. Die naturnahe Umgebung lädt zudem zu Spaziergängen und Freizeitaktivitäten ein.