Großraumbüro / Ausstellung
Links Besprechung, rechts Chef
Besprechungsraum
Hofeinfahrt
Treppenhaus / Eingang
Fenster Südseite Richtung Hof
Archiv / Lager für Chef
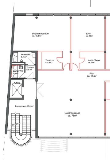
Grundriss
Chefbüro
Aussicht hinten auf die Felder
Teeküche mit Wassanschluss

Büroflächen, aufteilbar nach Ihren Bedürfnissen.Auf Wunsch auch Halle dazu. Alles ist möglich

Get the full address via contact
71254 Ditzingen – Hirschlanden
Baden-Württemberg
1550 €
Rent without service charge
TraumImmo-ID: BA4WN8N
Partner-ID: 397874
Partner-Property by: ohne-makler.net
Contact:
Privat von Tekin Morcicek

Mobile:
0177 4665656

Contact now

Information

  • Type: Office Floor
  • Storey: 2
  • Free From: Nach Vereinbarung
CellarGuest-Toilet

  • Construction Year: 1994
  • Condition: FirstTimeUseAfterRefurbishment
  • Heating Type: CentralHeating
  • Firing Type: Oil
  • Storeys: 2
  • Heating Costs included in Service Charge: True

Rent & Utilities

Rent1550 €
Additional Costs400 € incl. heating costs
Deposit4650€
Courtageno courtage for buyers

About this dream office

Property Description

Ideale Möglichkeit für Ihren Firmenumzug.
Anmietbare Flächen sind im Gewerbegebiet von Ditzingen-Hirschlanden direkt an der Autobahn A81. Die Gebäude stehen auf einem Eckgelände des Gewerbebietes. Man hat einen tollen Ausblick auf die umliegenden Felder und Wiesen.

Angeboten wird hier eine Büroetage zur Miete.
(Sie können aber auch eine weitere Büroetage oder Hallen dazu mieten. Siehe hierzu weiter unten)

Die Büroetage ist wahlweise im 1. oder 2.OG. eines Bürogebäudes:
Wenn Sie es schnell haben wollen können Sie die 240m² im 2.OG (wie auf den Fotos zu sehen) anmieten. Die sind bereits frisch aufgeteilt und renoviert.

Wenn Sie Zeit haben oder eine individuelle Raumaufteilung benötigen - können Sie die 240m² im 1.OG anmieten und wir stellen es nach Ihren Wünschen her.

Die hier angebotene Fläche besteht aus einem Großraumbüro / Ausstellungsfläche, einem Konferenzraum mit Teeküche und einem Chefbüro mit separatem Archiv/Lager. Die komplette Fläche hat einen neuen Laminatboden und abgehängte Akustikdecken mit LED Leuchten. Alle Fenster haben elektrische Raffstore als Sonnenschutz. Getrennte Toiletten für Damen und Herren sind vorhanden.

Ein mittelgroßer Personenaufzug ist vorhanden. . Das Gesamte Objekt wird über Videocameras überwacht.


Zusätzlich anmietbar:
- KFZ Stellplätze in gewünschter Anzahl (1-30) auf dem Hof
- Lagerflächen / Produktionsflächen im UG und im EG in gewünschter Größe (75-960m²)
- Drei Mitarbeiter-Appartments (je 2,5 Zimmer, 55m²) auf der Rückseite des Gebäudes
- Eine 300m² Penthousewohnung oder als exclusive Bürofläche im 3.OG

Rufen Sie uns an und sagen Sie uns was Sie genau suchen und benötigen. Wir sind absolut flexibel.


Location

ohne-makler.net
Contact:
Privat von Tekin Morcicek

Mobile:
0177 4665656

Contact now