Frontansicht
Mehrzweckraum
Mehrzweckraum
Wohnzimmer
Flur
Zimmer oben
Zimmer oben
Garage
Garten
Ansicht von Hinten
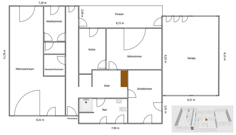
Grundriss
Steg
Schlafzimmer
Flur
Flur
Bad
Bad
Zimmer oben
Garage
Garten
Terasse
Ansicht von Hinten
Steg
Garten
Arbeitszimmer
Frontansicht

Rarität: Seegrundstück mit gesichertem, privatem Wasserzugang

Get the full address via contact
15755 Schwerin – Schwerin
Brandenburg
820.000 €
Selling Price
156 m²
Living Area
6
Rooms
TraumImmo-ID: BD3JVKD
Partner-ID: 389981
Partner-Property by: ohne-makler.net
Contact:
Privat von Pia von Gierszewski

Contact now

Information

  • Type: Single Family House
  • Living Area ca.: 156 m²
  • Free From: sofort
  • Rooms: 6
Garden

  • Property Area: 936.0
  • Condition: NeedOfRenovation
  • Heating Type: CentralHeating
  • Firing Type: Gas
  • Storeys: 2
  • Bathrooms: 1.0

Selling Price & Extra Costs

Selling Price820.000 €
Courtageno courtage for buyers

About this dream house

Property Description

Einzigartige Chance am Schweriner See (Brandenburg) – privates Uferrecht & Steg!

Dieses großzügige Einfamilienhaus mit direktem Seeanschluss vereint Wohnen, Erholung und Potenzial auf einzigartige Weise. Auf rund 156 m² Wohnfläche stehen 6 Zimmer zur Verfügung – ideal für Familien, Paare mit Platzbedarf oder eine Kombination aus Wohnen und Arbeiten. Das absolute Highlight ist das private Uferrecht am Schweriner See in Brandenburg mit eigenem Steg und Ruderboot – eine Seltenheit, die höchsten Freizeitwert garantiert.

Das Haus bietet eine solide Basis und Raum zur individuellen Gestaltung – hier können Sie Ihre persönlichen Wohnträume verwirklichen. Neues Dach (2023), neuer Zaun mit elektrischem Tor (2023) sowie eine gepflasterte Einfahrt und Vorgartenanlage (2023). Eine Doppelgarage mit elektrischem Tor und direkter Durchfahrt zum Ufer sorgt für zusätzlichen Komfort.

Im Inneren bietet die Immobilie ein großzügiges Wohnzimmer mit wunderschönem Blick auf den See, ein Schlafzimmer, zwei Kinderzimmer (obere Etage), ein Arbeitszimmer sowie einen flexibel nutzbaren Mehrzweckraum. Das Badezimmer befindet sich aktuell im Umbau und kann barrierefrei bzw. rollstuhlgerecht gestaltet werden. Eine Gasheizung ist vorhanden, ebenso ein eigener Brunnenanschluss. Die Bodenbeläge müssen teilweise erneuert werden, was Käufern die Möglichkeit gibt, das Haus ganz nach individuellen Vorstellungen auszugestalten.

Eine überdachte Terrasse erweitert den Wohnraum ins Freie und lädt zu entspannten Stunden mit Blick auf den Garten und direkten Zugang zum See ein.

Besonderheiten auf einen Blick:

• Privates Uferrecht am Schweriner See in Brandenburg mit Steg & Ruderboot

• Doppelgarage mit elektrischem Tor und Durchfahrt zum Ufer

• Neues Dach, Zaun, Einfahrt & Vorgarten (2023)

• 6 Zimmer auf 156 m² Wohnfläche

• Bad im Umbau, barrierefrei möglich

• Brunnenanschluss vorhanden

• Überdachte Terrasse


Der Preis für die Immobilie basiert auf dem Bodenrichtwert, welcher auf Grund des exklusiven Seezugangs bei 800 Euro pro m² liegt.

Ein Videorundgang ist per Link bei Google Drive möglich.
Link: https://youtu.be/sE3XtV0ERlc


Location

Location description

Die Immobilie liegt in einer charmanten, familienfreundlichen Umgebung. Kita, Schulen und Einkaufsmöglichkeiten befinden sich in fußläufiger Nähe, ein Aldi-Markt nur 800 m entfernt. Die Autobahnauffahrt ist lediglich 1 km entfernt – durch die ruhige Lage genießen Sie dennoch ein entspanntes Wohnumfeld ohne Straßenlärm. Mit der Bahn erreichen Sie den Berliner Hauptbahnhof in ca. 30 Minuten, mit dem Auto das Stadtzentrum in rund 50 Minuten. Zugleich profitieren Sie von der Nähe zur Natur: Der Schweriner See lädt zu Spaziergängen, Badeausflügen und Wassersport ein.

ohne-makler.net
Contact:
Privat von Pia von Gierszewski

Contact now