| Rent | 1130 € |
|---|---|
| Additional Costs | 320 € incl. heating costs |
| Heating Costs | 150 € |
| Deposit | 2500€ |
Wer das Besondere sucht, ist hier genau richtig. Dieses außergewöhnliche, top gepflegte Stadthaus im Herzen von Dillingen an der Donau vereint historischen Charme mit modernem Wohnkomfort. Das um die Jahrhundertwende errichtete Haus wurde in den Jahren 2012 und 2024 aufwendig saniert und präsentiert sich heute in hervorragendem Zustand.
Das viergeschossige Gebäude besticht durch seinen offenen Grundriss, liebevoll erhaltene Fachwerkdetails und hochwertige Schreinereieinbauten, die dem Haus eine einzigartige Atmosphäre verleihen.
Bereits im Erdgeschoss erwartet Sie ein besonderes Highlight: eine professionell ausgestattete Bar mit historischem Flair – ideal zum stilvollen Empfang von Gästen oder für gesellige Abende in privater Runde.
Im 1. Obergeschoss befindet sich der lichtdurchflutete Wohn- und Essbereich mit moderner Einbauküche inklusive sämtlicher Elektrogeräte. Ebenfalls auf dieser Etage: ein weiterer Raum, der als Arbeits-/Kinderzimmer genutzt werden kann, mit eigenem Tageslichtbad samt Dusche und Waschbecken.
Das 2. Obergeschoss bietet neben einem gemütlichen Wohnzimmer auch Platz für ein Homeoffice. Das großzügige Badezimmer mit Fenster ist ausgestattet mit Dusche, Badewanne, Handtuchheizkörper und hochwertigen Sanitärelementen – eine echte Wohlfühloase.
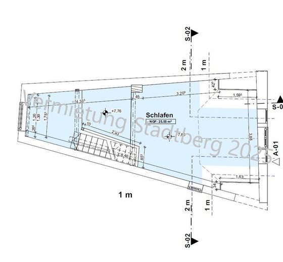
Im Dachgeschoss befindet sich das großzügige Schlafzimmer mit viel Stauraum und einer Klimaanlage, die auch im Sommer für angenehme Temperaturen sorgt. Von hier aus genießt man einen schönen Blick über die Dächer Dillingens – der perfekte Rückzugsort nach einem langen Tag
Warmmiete: 1450€
Kaltmiete: 1130€
Küche: 70€
Nebenkosten: 100€
Heizkosten: 150€
- Einbauküche mit allen Geräten
- Klimaanlage im Dachgeschoss
- EG mit voll ausgestatteter Bar (private Nutzung)
- Einbauschränke in der Wand
- 2x Bäder mit Dusche, Handtuchwärmer und Badewanne
Da das Objekt über keinen eigenen Kfz-Stellplatz verfügt können Sie als Bewohner bei der Stadt einen Parkausweis beantragen, um die umliegenden Parkplätze gebührenfrei zu nutzen. In ca. 2min fußläufig bietet sich der Schlossparkplatz mit ausreichend Stellfläche als künftiger Parkplatz an.
Haben wir Ihr Interesse geweckt?
Zögern Sie nicht und vereinbaren Sie einen Besichtigungstermin – wir freuen uns darauf, Ihnen dieses besondere Stadthaus persönlich vorzustellen!
Bei Interesse benötigen wir von Ihnen die folgenden Mietbewerbungsunterlagen vorab:
- Mieterselbstauskunft (siehe Vorlage)
- drei Gehaltsabrechnungen
- Ausweiskopie
- Schufa-Auskunft
Die Wohnung liegt in attraktiver und ruhiger Wohnlage von Dillingen an der Donau, am beliebten Stadtberg. Hier verbindet sich angenehme Ruhe mit der Nähe zur Innenstadt und einer hervorragenden Infrastruktur.
In nur wenigen Minuten erreicht man Supermärkte, Bäckereien, Cafés und Restaurants. Die Innenstadt von Dillingen lädt mit kleinen Boutiquen, gemütlichen Lokalen und kulturellen Angeboten zum Verweilen ein. Ärzte, Apotheken und Dienstleister befinden sich ebenfalls in unmittelbarer Umgebung.
Für Freizeit und Erholung bietet die Umgebung viele Möglichkeiten: Spaziergänge entlang der Donau, Radtouren durch das Dillinger Land oder entspannte Stunden im Freizeitbad „Eichwaldbad“. Auch das kulturelle Angebot mit Theater, Museen und Veranstaltungen sorgt für Abwechslung.
Die Verkehrsanbindung ist ausgezeichnet – der Bahnhof Dillingen (Donau) liegt nur wenige Minuten entfernt und bietet regelmäßige Verbindungen nach Ulm, Augsburg und Donauwörth. Über die B16 und die A8 sind auch weiter entfernte Ziele bequem erreichbar.
Eine Lage, die Ruhe, Zentralität und Lebensqualität perfekt vereint – ideal für Berufstätige, Pendler oder alle, die Wert auf ein gepflegtes Wohnumfeld mit kurzen Wegen legen.