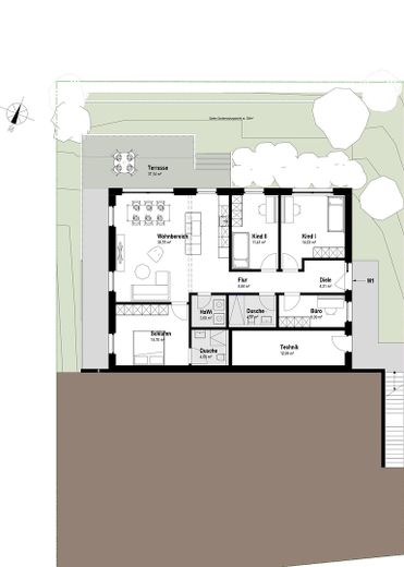
Grundriss Erdgeschoss
Grundriss Gartengeschoss

Attraktive 4,5-Zimmer Wohnung mit großem Garten - Effizienzhaus 40 mit QNG

Goethestrasse 5
71563 Affalterbach – Affalterbach
Baden-Württemberg
699.000 €
Selling Price
126 m²
Living Area
4,5
Rooms
TraumImmo-ID: BWSE7JY
Partner-ID: 404604
Partner-Property by: ohne-makler.net
Contact:
Angebot von Petra Millett

Contact now

Information

  • Type: Ground Floor
  • Storey: 0
  • Living Area ca.: 126 m²
  • Free From: Nach Vereinbarung
  • Rooms: 4,5
Guest-ToiletGarden

  • Condition: FirstTimeUse
  • Heating Type: FloorHeating
  • Firing Type: Electricity
  • Storeys: 3
  • Usable Floor Space: 7.0
  • Bathrooms: 2.0

Selling Price & Extra Costs

Selling Price699.000 €
Courtageno courtage for buyers

About this dream apartment

Furnishing

▪ sichtbare Massivholzdecken
▪ hochwertige Fenstern mit 3-fach Verglasung
▪ Heizungssystem mit Einzelraumtemperierung und Kühlfunktion
▪ elektrische Rollläden/Jalousien
▪ Eiche-Parkettboden
▪ zentrale Lüftungsanlage
▪ Sanitärausstattung mit Markenprodukten (Laufen. Hansgrohe)
▪ große bodengleiche Duschen
▪ hohe weiß lackierte Innentüren (211cm)
▪ praktischer Abstellschrank in den Dielen (auf Wunsch)
▪ Bäder mit vollständiger Ausstattung, Duschkabine, Duschnische
▪ moderne Holzverschalung
▪ Vorbereitung für eine Wallbox für jede Wohnung
▪ Lademöglichkeit im Abstellraum für E-Bikes
▪ Naturstein Innensimsen
▪ große Terrassen/Balkone
▪ durchdachte und attraktive Garten und- Außenanlagengestaltung
▪ Begleitung von unserem Planungsteam während der gesamten Bauphase
▪ Effizienzhaus 40 mit QNG Siegel - Sonderabschreibung 5% zusätzlich und 150.000€ Kredit mit niedrigem Zins (ab 1,30%) möglich
▪ attraktiv für Kapitalanleger


Location

Location description

Das klimafreundliche Mehrfamilienhaus wird im südwestlichen Dorfkern, in der Goethestraße 5 in Affalterbach gebaut und befindet sich direkt am Rand des Landschaftsschutzgebietes­ Lemberg.

ohne-makler.net
Contact:
Angebot von Petra Millett

Contact now