| Selling Price | 69.000 € |
|---|---|
| Courtage | no courtage for buyers |
Charmantes Handwerkerobjekt mit Scheune – Verkauf gegen Gebot ab 69.000 Euro
Mitten im Ortskern von Gärtringen, ruhig gelegen und dennoch hervorragend angebunden, wartet dieses ursprüngliche Bauernhaus mit viel Geschichte – und noch mehr Entwicklungspotenzial – auf neue Eigentümer mit Ideen und Tatkraft.
________________________________________
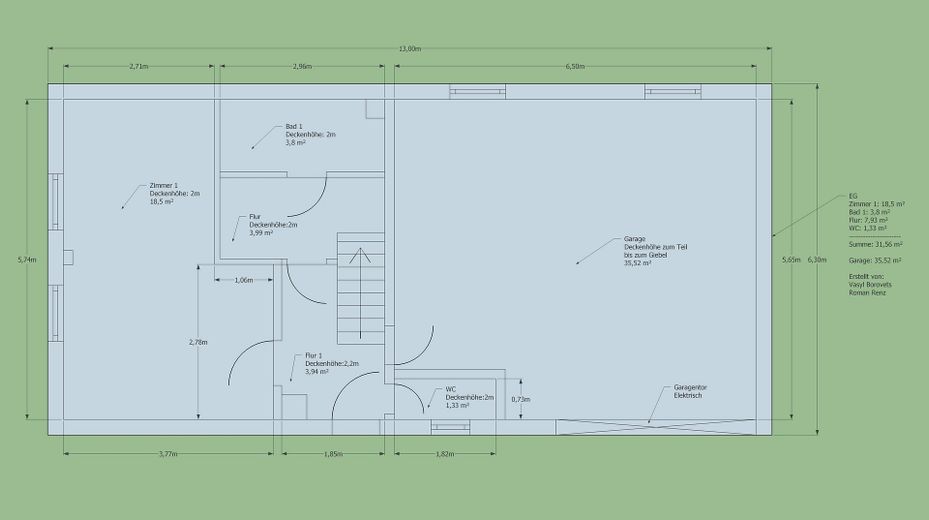
Dieses urige Bauernhaus mit ca. 80 m² Wohnfläche und angeschlossener Scheune sucht einen neuen Eigentümer, der es zu schätzen weiß, was man aus alten Gemäuern mit Kreativität, Zeit und handwerklichem Geschick machen kann.
• Wohnfläche: ca. 80 m²
• Scheune: direkt angebaut, vielseitig nutzbar, riesiges Ausbaupotential
• Grundstück: nahezu vollständig überbaut (kein Garten)
• Baujahr: unbekannt
• Zustand: renovierungsbedürftig, mit Herz und Werkzeug wieder bewohnbar zu machen
• Besonderheiten: zentrale Lage, ideal für Hobby-Schrauber, Reifenhändler, Tüftler, Handwerker oder als kleines Gewerbe
________________________________________
️Nutzungsmöglichkeiten:
Ob als Werkstatt, Lager, kleines Wohn-Gewerbe oder ambitioniertes Wohnprojekt – dieses Objekt lässt sich vielseitig denken. Der angrenzende Scheunentrakt bietet zusätzliche Nutzfläche, z. B. für Fahrzeuge, Maschinen, Material oder kreative Konzepte.
________________________________________
Verkaufskonditionen:
• Verkauf gegen Gebot
________________________________________
Interesse geweckt?
Dann freuen wir uns über Ihre Anfrage. Das Objekt ist frei und kann kurzfristig übernommen werden.
Sehr zentral in der Ortsmitte von Gärtringen gelegen. Einkaufsmöglichkeiten in unmittelbarer Umgebung. S-Bahn fußläufig zu erreichen. Daher auch für Pendler Richtung Böblingen/Sindelfingen sehr interessant.