Obergeschoss
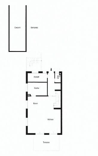
Erdgeschoss
Untergeschoss
Leingarten
Küche EG
Dachgeschoss

Doppelhaushälfte – Ideal für Ihre Familie!

Get the full address via contact
74211 Leingarten – Schluchtern
Baden-Württemberg
694.500 €
Selling Price
190 m²
Living Area
6,5
Rooms
TraumImmo-ID: DH3PNXV
Partner-ID: 396682
Partner-Property by: ohne-makler.net
Contact:
Privat vom Eigentümer

Contact now

Information

  • Type: Semi-Detached House
  • Living Area ca.: 190 m²
  • Free From: Nach Vereinbarung
  • Rooms: 6,5
CellarGuest-ToiletKitchenGarden

  • Property Area: 256.0
  • Construction Year: 2000
  • Condition: WellKept
  • Heating Type: CentralHeating
  • Firing Type: Gas
  • Storeys: 3
  • Bathrooms: 1.0

Selling Price & Extra Costs

Selling Price694.500 €
Courtageno courtage for buyers

About this dream house

Property Description

Ihr neues Zuhause
In einem beliebten Familien - Wohngebiet in Leingarten können wir Ihnen diese schöne Doppelhaushälfte mit überdurchschnittlich großem Platz- und Zimmerangebot anbieten.
Die Doppelhaushälfte und Einliegerwohnung wurde 2017 renoviert. Im Jahr 2022 wurde die Fassade neu gestrichen.
Der Ort zum Wohlfühlen
Das Haus wurde im Jahre 1999/2000 mit gesamt ca. 190,52 m² Wohnfläche gebaut und liegt in einer ruhigen Anliegerstraße.
Bis unter das Dach können Sie über drei Etagen bis zu 5 Schlafzimmer und einem Bad sowie Küche, einen großzügigen Abstellraum, das Gäste-WC sowie den großen hellen Wohn-/Essbereich nutzen.
Dazu kann bei Bedarf im UG eine kleine 1,5 Zimmer Einliegerwohnung separat vermietet werden.
Ein Garten zur Südseite mit der großen Sonnenterasse wird Ihnen gefallen und lädt zum Verweilen im Grünen ein.


Furnishing

Ausstattung
- Einbauküche
- Entkalkungsanlage (2018)
- 1 Carport mit Anbau
- 2 Autoabstellplätze
- Solarthermie vorbereitet

Einliegerwohnung ca. 31m²
- separater Zugang
- Küchenzeile
- Abstellraum mit Platz für Regal, WM und Trockner
- Wohn-/Schlafbereich
- Bad


Other

Die Einliegerwohnung ist derzeit vermietet.

Für eine Besichtigung wünschen wir vorab eine Finanzierungsbestätigung und bitten hier um Verständnis.

Falls es noch offene Fragen gibt, einfach melden.


Location

Location description

Leingarten ist eine beliebte und attraktive Stadt mit derzeit rund 12.500 Einwohner. Die Nähe zu Heilbronn mit der Stadtbahnverbindung sowie die sehr gute Infrastruktur bieten eine hohe Wohnqualität.
Eingebettet in eine landschaftlich reizvolle Lage um den Heuchelberg mit Weinbau und vielen Sport- und Naherholungseinrichtungen sowie einem aktivem Vereinsleben garantiert Leingarten einen hohen Freizeitwert.
Zahlreiche Ärzte, Apotheken, Gesundheits- und Pflegeeinrichtungenhaben sind in Leingarten niedergelassen. Dazu bieten mehrere Bäckereien, Metzgereien, Supermärkte und Discounter eine sehr gute Versorgung.
Familien profitieren von 10 Kindergärten und zwei Grundschulen sowie einer Gesamtschule.

ohne-makler.net
Contact:
Privat vom Eigentümer

Contact now