Hausansicht frontal
Hausansicht vorne von der Str
ruhiges Wohngebiet in Waldnähe
Einkaufszentrum fussläufig
Blick auf die Dachterrasse
Loggia (altes Foto)
Dachterrasse (altes Foto)
Grundriss 1. OG - 3D Pläne
Grundriss 1. OG - 3D Pläne
Grundriss DG - 3D Pläne
Grundrissveränderung Var. 2
Grundrissveränderung Var. 3
Hausansicht hinten von der Str
Grünstreifen direkt vorm Haus
Fenster Wohnzimmer u Loggia
Wohnzi. u Essber. (altes Foto)
Blick ins Wohnzi (altes Foto)
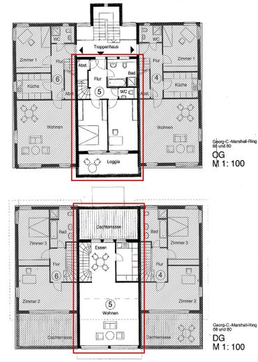
Grundriss Lage im Haus
Grundriss 1. OG
Grundriss DG
Grundriss DG - 3D Pläne
Grundrissveränderung Var. 1

von Privat! DG-Maisonette mit Dachterrasse + Loggia in bester Lage

Get the full address via contact
61440 Oberursel – Oberursel (Taunus)
Hessen
550.000 €
Selling Price
111 m²
Living Area
3,5
Rooms
TraumImmo-ID: DHUGUG7
Partner-ID: 404462
Partner-Property by: ohne-makler.net
Contact:
Privat von Sandra S.

Mobile:
0177 5016324

Contact now

Information

  • Type: Roof Story
  • Storey: 2
  • Living Area ca.: 111 m²
  • Free From: Nach Vereinbarung
  • Rooms: 3,5
CellarGuest-ToiletBalcony

  • Construction Year: 2005
  • Condition: WellKept
  • Heating Type: CentralHeating
  • Firing Type: Gas
  • Storeys: 2
  • Usable Floor Space: 140.0
  • Bathrooms: 2.0
  • Energy Consumption includes warm Water: True

Selling Price & Extra Costs

Selling Price550.000 €
Courtageno courtage for buyers

About this dream apartment

Property Description

**english speakers are welcome - information material in english is available**
Moderne, lichtdurchflutete und großzügig geschnittene 3-4 Zi. Wohnung auf zwei Ebenen. Sie befindet sich im 1. OG und Dachgeschoss eines kleinen Mehrfamilienhauses mit nur 6 Wohnungen. In diesem Architektenhaus sind die Innenwände größtenteils nicht tragend. Dies ermöglicht es Ihnen den Grundriss nach Ihren Wünschen zu gestalten und falls gewünscht sogar ein 4. Zimmer zu integrieren * (Am Ende der Bildergalerie finden Sie ein paar Grundrissvorschläge)
Die Wohnfläche ist mit 111,40 m² ausgesprochen großzügig. Die Wohnung verfügt über einen eigenen Carport und ein PKW-Stellplatz. Zur hellen Wohnung gehört im 1.OG eine große Loggia, der Eingangsbereich, 2 separate Zimmer als Schlaf-, Arbeits- oder Kinderzimmer, das Bad und ein separates Gäste-WC, sowie eine geschlossene Abstellkammer. Im Dachgeschoß ohne Dachschrägen befinden sich das großzügige Wohnzimmer und ein separater Essplatz, die Küche und die große Dachterrasse mit Blick auf den nahe gelegenen Wald. Die Echtholz-Terrassendielen auf der Dachterrasse und der Loggia wurden in 2021 komplett erneuert (inkl. Unterkonstruktion). Der vor dem Haus liegende Grünstreifen bietet Ruhe und eine angenehme Distanz zur nächsten Häuserreihe, was insbesondere auf der Dachterrasse eine einmalige Privatsphäre ermöglicht.
Öffentliche Parkplätze für Besucher sind ausreichend verfügbar. Zur Wohnung gehören außerdem ein eigener Kellerraum (14,8 m²) sowie ein gemeinschaftlicher Wasch- Trockenraum und separat zugänglicher Fahrradraum. Der günstige Wohnungsschnitt eignet sich für Paare aber auch für Familien bis zu 4 Personen.

* Rechtlicher Hinweis: Ein Umbau nach Ihren Wünschen durch die Verkäuferin erfolgt nicht. Die Kosten der gewünschten Umbaumaßnahmen sind vom Käufer zu tragen und sind explizit nicht Teil des Angebots Es kann keine Gewähr für die Durchführbarkeit der vorgeschlagenen Umbauoptionen übernommen werden.


Furnishing

In allen Wohn- und Schlafräumen finden Sie helles Echtholz-Parkett. Der Eingangsbereich/Flur sowie die Treppe zum Obergeschoß bietet mit hochwertigen hellen Fliesen einen angenehmen Übergang. Das große Bad, das Gäste WC sowie die Küche sind weiß-marmoriert gefliest. Das Bad besitzt Badewanne sowie getrennte Duschkabine und zwei Waschbecken. In allen Wohn- und Schlafräumen sind elektrische Außen-Jalousien angebracht, die einen individuell regulierbaren Lichteinfall ermöglichen. Das Haus hat einen niedrigen Energieverbrauch. Nähere Angaben finden Sie im beigefügten Energieausweis.


Location

Location description

Oberursel im Hochtaunuskreis, mit der Kreisstadt Bad Homburg, gehört zu den begehrtesten Wohnlagen im Rhein-Main-Gebiet. Durch seine sehr gute Anbindung an Frankfurt am Main und den Flughafen einerseits und den nahe gelegenen Taunus andererseits, ist eine optimale Balance von Arbeit und Freizeit gewährleistet.
Ihr neues Zuhause liegt im gesuchten Wohngebiet "Camp King", eines der letzten in sich geschlossenen Wohnbaugebiete der Stadt Oberursel. Die Lage bietet
+ hohen Freizeitwert
+ sehr gute Verkehrsanbindung (U-Bahn Haltestelle und Autobahnanschluß in unmittelbarer Nähe, Flughafennähe ohne Fluglärm)
+ Einkaufszentrum (großer Supermarkt, Post, Bank, Apotheke, Optiker, Frisör, verschiedene Ärzte und weitere Geschäfte)
+ mehrere Spielplätze
+ Kindergarten und Grundschule
+ freie Waldorfschule und Waldorfkindergarten
+ die Internationale Schule in unmittelbarer Nähe
+ großer zentraler Park
Ein ruhiges Wohngebiet mit angenehmen Nachbarn ohne Durchgangsstraße und mit hohem Freizeitwert. Der Taunus und das Waldschwimmbad sind bequem erreichbar. Der angrenzende Wald lädt zum Joggen und Spazierengehen ein.

ohne-makler.net
Contact:
Privat von Sandra S.

Mobile:
0177 5016324

Contact now