| Rent | 1500 € |
|---|
Bezug ab 02/2025 oder später.
Das Haus wurde 2006 in Niedrigenergiebauweise errichtet (siehe Energieausweis).
Die Gartenanlage ist inzwischen harmonisch eingewachsen und bietet vielfältige Möglichkeiten zur individuellen Gestaltung.
Das Haus verfügt über eine großzügige Hauptwohnung, die sich über drei Etagen erstreckt und eine Wohnfläche von etwa 150 m² bietet.
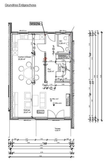
Im Erdgeschoss befindet sich ein großer, offener Wohnbereich mit separatem Treppenhaus, Flur und Gäste-WC. Von hier auf gelangt man auf den nach Südwesten ausgerichteten, hochgelegenen Terrassenbalkon, der viel Sonne und eine schönen Ausblick bietet.
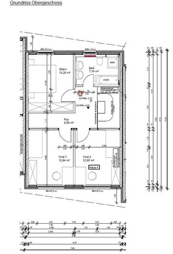
Im Obergeschoss liegen drei Zimmer - zwei Kinderzimmer und eine Elternschlafzimmer - sowie ein helles Badezimmer mit Badewanne, Dusche, WC und zwei Waschbecken. Das Bad ist nach Osten ausgerichtet, sodass morgens die Sonne hineinscheint.
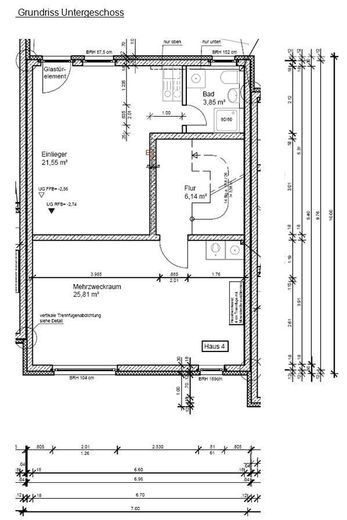
Im Untergeschoss befinden sich praktische Abstellflächen sowie ein großer, beheizter Mehrzweckraum mit Panoramafenstern zum Garten.
Die Aufteilung ist insgesamt großzügig und familienfreundliche gestaltet.
Bei der Planung der Häuser wurde besonderer Wert auf Schallschutz gelegt: Die Trennwände zwischen den Einheiten bestehen auf zwei massiven, getrennt stehenden Wänden mit zusätzlicher Schalldämmung und bieten eine solide Grundlage für Ruhe und Privatsphäre im eigenen Zuhause.
Wir legen Wert auf langfristige Mietverhältnisse (mindestens vier Jahre), um unseren Mietern wie auch uns Planungssicherheit und die Möglichkeit zu einer guten Nachbarschaft zu bieten. Langfristig können wir uns auch vorstellen, die einzelnen Häuser später eventuell an unsere Mieter zum Verkauf zu überlassen.
Zum Haus gehört ein Stellplatz, die Miete hierfür beträgt 50 €. Weitere Stellplätze sind möglich.
Zusätzlich kann eine Einliegerwohnung mit separatem Eingang und einer Fläche von rund 25 m² angemietet werden – ideal als Homeoffice und Gästewohnung. Die Kaltmiete für die Einliegerwohnung beträgt 300 €.
Das Haus liegt ruhig an einer privaten Zufahrt in der Ortsmitte.
500 m zum Bahnhof (Seehaas)
100 m zum Bäcker/Dorfladen.
200 m zur Waldorfschule