| Selling Price | 680.000 € |
|---|---|
| Courtage | no courtage for buyers |
Das Reihenmittelhaus mit einer Wohnfläche von 124 m² bietet viel Platz und Komfort für eine Familie. Das Gebäude wurde im Jahr 2021 mit einem KFW 55 - Standard errichtet.
Parkmöglichkeiten sind dank eines eigenen Stellplatzes vorhanden. Hier kann auch eine Wallbox installiert werden.
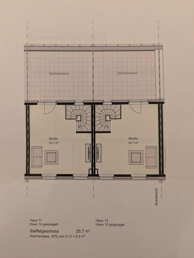
Die Räumlichkeiten des Hauses sind sehr gut gestaltet und bieten viel Freiraum. Im Erdgeschoss befindet sich der Wohnbereich mit Parkettboden, der zum gemütlichen Beisammensein einlädt. Die offene Küche ist modern und mit Fliesen ausgestattet. Ebenfalls befindet sich ein Gästebad im Erdgeschoss. Im Obergeschoss befinden sich die Schlafzimmer und ein Badezimmer mit Dusche und Badewanne, während das Staffelgeschoss zusätzlichen Raum für ein weiteres Schlafzimmer oder ein Büro bietet. Die Dachterrasse lädt im Sommer zum Entspannen ein.
Der Keller hat zusätzlich nochmal eine Nutzfläche von ca. 51 m².
Die Anbindung an den öffentlichen Nahverkehr ist optimal. Die nächstgelegene AKN-Station "Quickborner Straße" liegt nur wenige Gehminuten entfernt. Von dort aus bestehen regelmäßige Verbindungen zum U-Bahnhof "Norderstedt Mitte" (U1), mit der Sie in rund 30 Minuten bequem die Hamburger Innenstadt erreichen. Auch der Flughafen Hamburg ist sowohl mit dem Auto (ca. 20 Minuten) als auch mit öffentlichen Verkehrsmitteln gut angebunden. Die Autobahn A7 ist in etwa 5-10 Minuten mit dem Auto erreichbar.
Für Familien besonders attraktiv. Zahlreiche Kitas, Grundschulen und weiterführende Schulen befinden sich in direkter Umgebung und sind fußläufig oder mit dem Rad schnell erreichbar.
Naherholungsgebiet wie der Frederikspark, der Rantzauer Forst oder der Norderstedter Stadtpark bieten zusätzlich Freizeitmöglichkeiten in unmittelbarer Nähe.
Diese Lage vereint ruhiges Wohnen im Grünen mit der Nähe zur Großstadt - perfekt für alle die beides schätzen.