Beispiel: Wohnzimmer
Abstellkammer an der Küche
Zimmer 1
Flur
Badezimmer
Zimmer 2
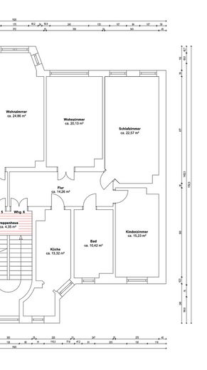
Grundriss
Zimmer 2
Wohnzimmer
Küche mit Kammer
Beispiel: Schlafzimmer
Zimmer 1

Stilvolle 3-Zimmer-Altbauwohnung - Erstbezug nach hochwertiger Sanierung

Merseburger Straße 95
04177 Leipzig – Altlindenau
Sachsen
1240 €
Rent without service charge
97 m²
Living Area
3
Rooms
TraumImmo-ID: EBDQ9R5
Partner-ID: 404137
Partner-Property by: ohne-makler.net
Contact:
Angebot von Anna Hudalla

Contact now

Information

  • Type: Flat
  • Storey: 3
  • Living Area ca.: 97 m²
  • Free From: sofort
  • Rooms: 3

  • Construction Year: 1904
  • Condition: FirstTimeUseAfterRefurbishment
  • Heating Type: CentralHeating
  • Firing Type: Oil
  • Storeys: 4
  • Bathrooms: 1.0
  • Heating Costs included in Service Charge: True

Rent & Utilities

Rent1240 €
Additional Costs200 € incl. heating costs
Heating Costs100 €
Deposit1500€

About this dream apartment

Property Description

Diese 3-Zimmer-Wohnung im 3. Obergeschoss eines denkmalgeschützten Altbaus wurde saniert und steht nun im Erstbezug zur Verfügung. Auf rund 98 m² Wohnfläche erwarten Sie helle Räume mit hohen Decken und Stuckelementen, ein großzügiges Wohnzimmer sowie ein Badezimmer mit Badewanne und separater Dusche.

Besonders hervorzuheben sind das großzügige Wohnzimmer sowie die praktische Raumaufteilung, die sowohl Familien als auch Paaren mit Platzbedarf entgegenkommt.


Furnishing

- Erstbezug nach Sanierung
- ca. 98 m², 3 Zimmer, 3. OG
- Großes Bad mit Badewanne und separater Dusche
- Hochwertige, wasserfeste Bodenbeläge in Holzoptik
- Neue Türgriffe und Fenstergriffe, aufgearbeitete Türen
- Denkmalgeschütztes Altbaugebäude mit repräsentativem Treppenhaus


Location

Location description

Die Wohnung liegt in zentraler Lage in Leipzig, mit direkter Straßenbahn- und Busanbindung vor der Tür. Einkaufsmöglichkeiten, Cafés, Restaurants und kulturelle Angebote befinden sich in unmittelbarer Nähe. Parks und Grünflächen sind ebenfalls schnell erreichbar.

ohne-makler.net
Contact:
Angebot von Anna Hudalla

Contact now