| Courtage | no courtage for buyers |
|---|
KALT-MIETPREIS ab 8,5 €/qm (zzgl. NK)
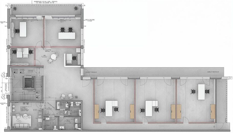
GESAMTFLÄCHE ca: 360 qm, in kleinere Büros teilbar.
Zur Anmietung wird eine Büroetage im 2. OG angeboten. Unseren zukünftigen Mietern stehen folgende Möglichkeiten bei der Anmietung zur Verfügung:
OPTION 1: Anmietung einzelner Büroflächen ca. 40 qm, 80 qm, 120 qm, 160 qm etc.
Dank flexibler Grundrissgestaltung können wir die Räumlichkeiten nach den persönlichen Bedürfnissen der Mieter in kleine Büroflächen teilen, sodass auch kleinere Unternehmen von den hervorragenden Arbeitsbedingungen profitieren können. Die Nutzung der Sozialräume erfolgt in diesem Fall durch mehrere Mieter.
OPTION 2: Anmietung der kompletten Büroetage Gesamtfläche ca. 360 qm:
Größere Unternehmen können die komplette Büroetage anmieten. In dieser befinden sich bereits 3 Einzelbüros, ein Empfangsbereich, ein großer Konferenzraum sowie alle notwendigen Sanitärräume. Bei Bedarf kann die Bürofläche weiter in Einzelbüros aufgeteilt werden.
Ob Sie die gesamte Büroetage anmieten oder nur einen Teil, in jedem Fall profitieren Sie von der modernen Ausstattung, dem stilvollem Ambiente sowie der großzügigen Arbeitslandschaft.
Vereinbaren Sie gerne einen Besichtigungstermin.
Ausstattung
•2020 gebaut, modernes Bürogebäude
•Flexible Grundrissgestaltung
•Helle Büroräume dank große Fensterfront
•Teppichboden in Büros
•Steinfließen im Treppenhaus und in den Sozialräumen
•Großer Balkon
•Personenaufzug
•Moderne Klima- und Gebäudetechnik
•Brandschutzmeldeanlage
•Einbruchmeldeanlage
•Zutrittskontrolle
•Stellplätze (können optional angemietet werden)
• Einbauküche
Diese erstklassige Immobilie befindet sich in Kenzingen, optimal gelegen zwischen Offenburg und Freiburg. Zahlreiche größere und kleinere Unternehmen aus verschiedenen Branchen sind in der Nähe angesiedelt.
Das Objekt liegt direkt an der Bundesstraße B3 und nur 5 Minuten von der Abfahrt der Autobahn A 5 Karlsruhe-Basel entfernt.
Der nächste Bahnhof liegt nur 10 Minuten Fußweg entfernt mit der Möglichkeit die Städte Karlsruhe, Offenburg, Lahr, Freiburg und Basel zu erreichen. Einkaufsmöglichkeiten sind in der unmittelbaren Umgebung in wenigen Autominuten Fahrt vorhanden.
Die Umgebung bietet ebenso viel Grün.
