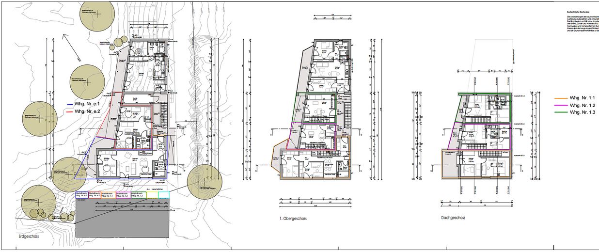
Wohnungs Grundrisse
Preisliste der Wohnungen

Attraktive KFW 40 Wohnungen v. 46 - 84 m² für Kapitalanleger oder Selbstbezieher Provisionsfrei !!

Get the full address via contact
83109 Großkarolinenfeld
Bayern
298.116 €
Selling Price
46 m²
Living Area
2
Rooms
TraumImmo-ID: F4MUV6E
Partner-ID: 384876
Partner-Property by: ohne-makler.net
Contact:
Privat von Adolf Kaiser

Contact now

Information

  • Type: Maisonette
  • Storey: 2
  • Living Area ca.: 46 m²
  • Free From: Nach Vereinbarung
  • Rooms: 2
KitchenBalconyGarden

  • Construction Year: 2026
  • Condition: FirstTimeUse
  • Heating Type: FloorHeating
  • Storeys: 3
  • Usable Floor Space: 10.0
  • Bathrooms: 1.0

Selling Price & Extra Costs

Selling Price298.116 €
Courtageno courtage for buyers

About this dream apartment

Property Description

Beispielhaft handelt es sich hier um eine der modernen und reizvollen 2 Zimmer Maisonette Wohnungen als KFW 40 Niedrigenergie Haus. Die Wohnungen bieten einen sehr ansprechenden Lebensraum für Studenten oder Pärchen. Im 1. OG befindet sich hier das Wohnzimmer mit Eingangsbereich, Küchenzeile und ein großzügiger Balkon. Über eine offen gestalltete Innentreppe gelangen Sie ins Dachgeschoss als feine Empore, das mit gemütlichen Dachschrägen, dazu einlädt es sich mit einem Buch gemütlich zu machen. Hier befindet sich ein geräumiges Studio. Auch das Bad mit einer bodengleichen Regendusche befindet sich hier im DG. Die Dachflächenfenster und die in weiß gehaltenen Dachschrägen, sorgen für helle Räumlichkeiten. Ein Abstellraum ist zur Aufbewahrung versch. Gegenstände hier ebenso vorgesehen. Insgesamt wirken die Räume durch bodentiefe Fensterelemente mit Türen zum Balkon hell und freundlich.

Entlang der gesamten Westeite des Hauses erschließt sich eine grüne Lunge mit Bachlauf die in den Abendstunden zum genießen auf den Balkonen über 2 Etagen einlädt.
Zum Haus gehört ein KFZ Stellplatz
Auf Wunsch kann die Wohnung gerne von uns Möbliert werden.


Furnishing

- Neubau Niedrig Energiehaus KFW 40
- Erstbezug
- Hervorragende Verkehrsanbindung
- Auf Wunsch kann die Wohnung von uns komplett möbliert werden.
- Kapitalanleger erzielen hier 5 %
- Der Verkauf erfolgt direkt vom Bauherren ohne jeglicher Provision

Es sind insgesamt 7 Wohnungen von 46 bis 84 m² verfügbar. ✅


Location

Location description

Großkarolinenfeld liegt zwischen Rosenheim und Bad Aibling.
die TH Rosenheim ist mit dem Fahrrad in ca. 15 Minuten erreichbar.
Öffentliche Verkehrsmittel, Einkaufsmöglichkeiten und Cafés/ Restaurants sind schnell erreichbar. Auch lädt die Naturbelassene Umgebung zu herrlichen Wanderungen ein. Durch die neue B15 ist die Autobahn A8 Müchen/Salzburg in ca. 10 Minuten erreichbar.
Mit der Bahn erreicht man München in ca. 30 Minuten. Der Bahnhof ist in ca. 6 Minuten mit dem Fahrrad erreichbar

ohne-makler.net
Contact:
Privat von Adolf Kaiser

Contact now