Wohn- und Esszimmer
EG - 2,5 Zimmer
EBK mit Waschmaschine
Wohn- und Esszimmer
Gestaltbare Fensterfront
Gestaltbare Fensterfront
Schlafzimmer
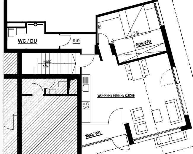
innenliegende Treppe
Hobbyräume im eigenen UG
Neuer Müllplatz + Hausansicht
Wohn- und Esszimmer
Bad, ebenerdige Regendusche
Gestaltbare Fensterfront
Schlafzimmer
Direkter Gartenzugang
Hobbyräume im eigenen UG
neue Briefkastenanlage
Hobbyräume im eigenen UG

Überraschend großzügig + provisionsfrei – Ihre letzte Gelegenheit vor Weihnachten einzuziehen!

Hohenheimer Str. 11
70771 Leinfelden – Unteraichen
Baden-Württemberg
269.000 €
Selling Price
134 m²
Living Area
4,5
Rooms
TraumImmo-ID: F5ZBZS2
Partner-ID: 381831
Partner-Property by: ohne-makler.net
Contact:
Angebot von DIHvvGmbH

Contact now

Information

  • Type: Ground Floor
  • Storey: 0
  • Living Area ca.: 134 m²
  • Free From: Nach Vereinbarung
  • Rooms: 4,5
CellarHandicapped AccessibleGarden

  • Construction Year: 1972
  • Condition: FirstTimeUseAfterRefurbishment
  • Heating Type: CentralHeating
  • Storeys: 1
  • Bathrooms: 1.0
  • Energy Consumption includes warm Water: True

Selling Price & Extra Costs

Selling Price269.000 €
Courtageno courtage for buyers

About this dream apartment

Property Description

Überzeugen Sie sich selbst von dem großzügigen Platzangebot dieser attraktiven 2,5-Zimmer-Wohnung! Neben ca. 62 m² einladenden Wohnflächen stehen Ihnen zusätzlich ca. 72 m² vielseitig nutzbare Nebenräume im innen liegenden Untergeschoss zur Verfügung.

Diese attraktive Erdgeschosswohnung wurde frisch saniert und renoviert und steht nun zum Erstbezug bereit. Ein besonderes Highlight sind die großzügigen Fensterfronten, die für ein freundliches, lichtdurchflutetes Wohnambiente sorgen. Die Auswahl und Gestaltung der Fenster können Sie noch individuell nach Ihren Vorstellungen vornehmen – so schützen Sie Ihre Privatsphäre ganz nach Wunsch und genießen zugleich die offene, helle Atmosphäre.

Das Untergeschoss eröffnet vielfältige Nutzungsmöglichkeiten: Ob großzügiger Kreativbereich, stilvolles Homeoffice, inspirierendes Künstleratelier oder idealer Rückzugsort für Hobby, Fitness und Freizeit – hier bleiben keine Wünsche offen. Der Zugang erfolgt bequem über eine ins Wohnambiente integrierte Treppe. Zusätzlich steht ein separater Eingang zur Verfügung, was den unteren Bereich auch als Lager- oder Geschäftsraum für Freiberufler besonders attraktiv macht. Ihrer Fantasie sind keine Grenzen gesetzt!

Komfort und modernes Wohnen zeichnen den Innenbereich aus: Ein ebenerdiger Zugang sowie großzügig breite Zimmertüren schaffen ein offenes Raumgefühl. Das Badezimmer beeindruckt mit einer begehbaren Dusche und Fußbodenheizung. Für effiziente und nachhaltige Wärme sorgt die neue Zentralheizung des Hauses mit innovativer Wärmepumpentechnologie – ideal für ein zukunftsorientiertes Wohnen.

Nur etwa 3 Autominuten von der Autobahn entfernt, ca. 8 Minuten zum Flughafen und mit hervorragender Anbindung an Stadt- und S-Bahn bietet diese Wohnung eine ideale Verkehrsanbindung. Verschiedene Hochschulen (Uni Hohenheim, Campus Stuttgart Vaihingen) sind schnell und bequem erreichbar – ideal für Pendler, Berufstätige und Studierende. Namhafte Arbeitgeber wie Bosch, JW Fröhlich und Daimler befinden sich nur wenige Gehminuten entfernt. Das durchdachte Raumkonzept und die gute Lage eröffnen vielfältige Nutzungsmöglichkeiten und hohen Wohnkomfort.


Furnishing

+ Erstbezug nach Sanierung, auf Wunsch liebevoll eingerichtet
+ modernes Bad mit Fußbodenheizung und bodengleicher Dusche (gefliest)
+ Waschtisch und spülrandloses WC
+ Wände, Decken, Böden neu renoviert
+ sichere, teilweise neue energieeffizient verglaste Fenster (2025)
+ hoher energetischer Standard, Fassadendämmung, Hybridheizung (2025), Energieausweis in Ausstellung
+ Hausmeisterservice ist selbstverständlich
+ Fahrradabstellraum ist vorhanden
+ Gemeinschaftlich nutzbarer Trockenraum sowie Gartenmitbenutzung


Other

Individuelle Anpassungen sind gerne auf Verhandlungsbasis möglich.


Location

Location description

Am südlichen Rand von Stuttgart liegt Leinfelden-Echterdingen. Die Gemeinde zeichnet sich als hervorragender Wirtschaftsstandort mit sehr guter Infrastruktur und als Tor ins Grüne aus.

Eingebettet zwischen Feldern und Streuobstwiesen, der Nähe zum Schönbuch-Naturpark und zum herrlichen Natur- und Landschaftsschutzgebiet Siebenmühlental liegt Ihr neues Zuhause.

Sie sind schnell im Grünen oder im Biergarten – wo Sie Ihren Feierabend genießen können.
Über den folgenden Link finden Sie noch mehr Informationen zum Standort:
www.leinfelden-echterdingen.de

fußläufig erreichbar: Lebensmittel-Discount, Allgemeinmediziner, Zahnarzt, Kindergarten,
Schulen, Öffentliche Verkehrsmittel

ohne-makler.net
Contact:
Angebot von DIHvvGmbH

Contact now