Dachstudio
Bad Dachstudio
Westbalkon
WZ Blickrichtung Süden
Bad
Grundriss
Außenansicht Süden
Dachterrasse Süden
WZ Blickrichtung Westen
Zimmer Süden
Zimmer Nordwesten
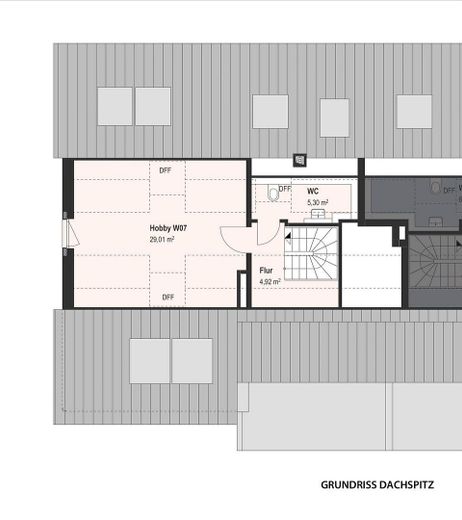
Grundriss Studio
Außenansicht Südwesten

Exklusive Dachgeschosswohnung München-Laim, Erstbezug

Get the full address via contact
80689 München – Laim
Bayern
2950 €
Rent without service charge
100 m²
Living Area
4
Rooms
TraumImmo-ID: FFDF8RW
Partner-ID: 398891
Partner-Property by: ohne-makler.net
Contact:
Privat von Hr. David

Contact now

Information

  • Type: Roof Story
  • Storey: 2
  • Living Area ca.: 100 m²
  • Free From: 15.12.2025
  • Rooms: 4
CellarGuest-ToiletKitchenBalcony

  • Construction Year: 2025
  • Condition: FirstTimeUse
  • Heating Type: FloorHeating
  • Storeys: 2
  • Usable Floor Space: 141.0
  • Bathrooms: 2.0
  • Heating Costs included in Service Charge: True

Rent & Utilities

Rent2950 €
Additional Costs350 € incl. heating costs
Heating Costs200 €
Deposit8850€

About this dream apartment

Property Description

Die moderne Wohnanlage besteht aus acht Wohneinheiten, die nach Süden bzw. Westen ausgerichtet sind. Es erwartet Sie eine gut durchdachte Grundrissgestaltung, sowie ein moderner gehobener Ausstattungsstandard. Das Wohnhaus verbindet Eleganz mit Funktionalität. Großformatige Fensterelemente bieten viel Tageslicht in den Räumen und Bädern. Das Dachstudio mit bodentiefer Fenstertür unterstreicht das Konzept der großzügig belichteten Wohnanlage, mit viel Licht im Souterrain. Das Anwesen verfügt über Einzelstellplätze in der Tiefgarage und einen modernen Aufzug. Das Haus wurde als Effizienzhaus 55 gemäß GEG errichtet. Die Außenwände wurden aus hochwärmedämmenden Ziegelmauerwerk mit integrierter Wärmedämmung aus natürlichem Vulkangestein (Perlit) hergestellt. Als modernes Heizsystem kommt eine Wärmepumpe zum Einsatz. Zur Abfederung von Spitzenlasten wird zusätzlich eine Gas-Brennwerttherme installiert. Schall und Wärmeschutzverglasung sowie eine sinnvolle Konzeption der Haustechnik sorgen für einen niedrigen Energieverbrauch.


Furnishing

Wohnen auf zwei Ebenen: 3 Zimmer zzgl. Dachstudio mit Bad/WC
100 qm Wohnfläche, 141 qm Nutzfläche (mit Studio)
Zusätzlicher Abstellraum (4qm) in der Wohnung und Kellerabteil
KFW55-Bauweise (Umweltfreundliches Heizsystem mit Wärmepumpe)
Hochwertige Echtholzparkettböden in allen Wohn-, Schlaf- und Hobbyräumen
Komfortable Fußbodenheizung (mit Raumthermostat)
Sehr hell (Süd-West-Seite) und großzügige Belichtung durch großformatige Fenster und Fenstertüren
Aufzugsanlage
Schöne und helle Tageslichtbäder und Gäste-WC
Elektrische Rollläden
Dezentrale schallgedämmte Wohnraumbe- und Entlüftungsanlage
Dachterrasse (Südseite) und Balkon (Westseite)
Einzelstellplatz in der Tiefgarage mit Stromanschluss 230 V sowie 400V
Einbauküche (ab Januar 2026)


Other

Der Mietvertrag beinhaltet eine Staffelmiete.
Bitte schreiben Sie mich nur an, wenn Sie über eine postitve Schufaauskunft und Solidität verfügen. Vielen Dank.


Location

Location description

Das Mehrfamilienhaus mit acht Wohnungen befindet sich in einer ruhigen Anliegerstraße in Süd-West-Lage. Im nahen Umkreis befinden sich alle Geschäfte des täglichen Bedarfs wie Supermarkt und Bioladen, Metzgerei, Konditorei, Bäckerei und Gemüsestände sowie Apotheken, Ärzte, Restaurants, Biergärten usw. Die U-Bahn Haltestelle "Laimer Platz" (U5) ist wenige Gehminuten entfernt. Eine zusätzliche Haltestelle der U5 in der Nähe (Willibaldplatz) ist in Planung. Außerdem verkehren im fußläufigen Umfeld mehrere Metro- sowie Stadtbuslinien. Mit den öffentlichen Verkehrsmitteln oder dem Auto kommt man nach kurzer Fahrt zu den südlichen Voralpenseen wie Starnberger- und Ammersee. Das nahe gelegene Westbad lädt im Sommer zur Abkühlung ein.

ohne-makler.net
Contact:
Privat von Hr. David

Contact now