Hauseingang
Hauseingang Nordseite
Wohn-/Esszimmer (Großer Raum)
Zimmer 2 (mittleres) OG
Zimmer 2 OG
Eckzimmer OG
Bad OG Waschbecken
Zimmer DG
Zimmer DG
Bad DG
Grundriss EG
Grundriss OG
Grundriss Keller
Terrasse
Überdachter Teil der Terasse
Garten mit Geräteschuppen
Wohn-/Esszimmer (kleiner Raum)
Wohn-/Esszimmer Kücheneingang
Wohn-/Esszimmer (Größer Raum)
Küche
Zimmer 1 (größtes) OG
Eckzimmer OG
Eckzimmer OG
Bad OG Toilette mit Dusche
Bad OG Dusche
Treppenaufgang DG
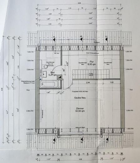
Grundriss DG
Südseite, Blick aus dem Garten

Lichtdurchflutetes Reihenmittelhaus in sehr gutem Zustand

Get the full address via contact
76297 Stutensee – Blankenloch
Baden-Württemberg
650.000 €
Selling Price
160 m²
Living Area
6
Rooms
TraumImmo-ID: FPQBFK4
Partner-ID: 382097
Partner-Property by: ohne-makler.net
Contact:
Privat vom Eigentümer

Contact now

Information

  • Type: Mid-Terrace Town House
  • Living Area ca.: 160 m²
  • Free From: Nach Vereinbarung
  • Rooms: 6
CellarGuest-ToiletKitchenBalconyGarden

  • Property Area: 227.0
  • Construction Year: 1969
  • Condition: Modernized
  • Heating Type: CentralHeating
  • Firing Type: Gas
  • Storeys: 3
  • Bathrooms: 2.0

Selling Price & Extra Costs

Selling Price650.000 €
Courtageno courtage for buyers

About this dream house

Property Description

Dieses helle Reihenhaus bietet die besondere Gelegenheit ein Haus zu erwerben in das man direkt einziehen und sich wohlfühlen kann. Ideal auch für größere Familien.

Im EG befindet sich ein großer Wohn- /Essbereich mit großer Glasfront mit Glasschiebetüre zu Terasse und Garten, eine Küche, ein Arbeitszimmer und ein Gäste WC.

Im 1. OG befinden sich drei Schlafzimmer. Zwei mit Zugang zum Südbalkon, auf dem an kalten Sonnentagen wärmende Sonnenstrahlen zum Verweilen einladen. Zudem ein modernes Bad mit Dusche, WC und 2 Waschbecken mit vom Schreiner maßgefertigtem Unter- und Spiegelschrank.

Im ausgebauten DG befindet sich ein weitläufiger Raum mit großzügiger Dachgaube und ein Bad mit Badewanne. Die Dachschräge im Flur lässt sich durch eingebaute Schiebeschränke praktisch als Stauraum nutzen.

Im Keller bietet ein großer Raum Platz für z.B. eine Werkstatt. Es gibt einen Waschraum, einen Heizungsraum und drei weitere kleinere Räume.

Die teilüberdachte Terasse lädt zum Verweilen ein und lässt Urlaubsgefühle aufkommen. Sie bildet den Übergang in den Garten. Garten und Terasse sind nach Süden ausgerichtet. Im Garten befindet sich ein kleiner Schuppen mit Stromanschluss für Gartenwerkezeug.

Eine Garage mit Stellplatz davor gehört ebenfalls zu dem Haus.

Das solide mit Hohlziegeln gebaute Haus wurde laufend modernisiert und überzeugt mit hochwertigen Bauelementen
2003 2-fach verglaste Schallschutzfenster aus Holz
2010 14 cm Fassadendämmung (inkl. Balkondämmung), neue Terasse
2015 Ausbau DG, Dach neu gedeckt und isoliert (Cellulose zwischen Sparren eingeblasen, Sparren aufgedoppelt und außen 3cm Holzfaserplatte), Bäder neu gemacht, Elektrik im 1. OG und DG neu und komplett neue, gedämmte Wasserleitungen im ganzen Haus
2018 neue effiziente Gasheizung (Der Energieausweis wurde vor Einbau der neuen Heizung erstellt. Diese ist in dem Energieausweis zur weiteren Verbesserung der Energieeffizienz vorgeschlagen. Der Primärenergiebedarf sollte nun im Bereich C liegen.)
2019 Fensteranstrich von außen


Location

Location description

Das Haus liegt in einer verkehrsberuhigten Umgebung mit kleinem Spielplatz um die Ecke und ist so ideal für Familien mit Kindern.

Blankenloch ist eine Gemeinde, die alles zum täglichen Bedarf bietet. Einkaufen (Edeka, Rewe, Aldi, Lidl, dm, kleiner Bioladen), Kindergärten, Schulzentrum, Schwimmbad, zwei Sportvereine, medizinische Versorgung, Bibliothek. Das Leben ist geprägt durch eine gute Nachbarschaft und das große soziale Engagement in der Gemeinde (Familienzentrum, Jugendzentrum, Tafel).

Sehr gute Verkehrsanbindung selbst ohne Auto. Nach Süden Richtung Karlsruhe (7 Min. mit dem Zug zum Hauptbahnhof mit der S9, 3 Gehminuten entfernt), oder nach Norden Richtung Mannheim. Mit der Straßenbahn S2 über Hagsfeld nach Karlsruhe, mit dem Fahrrad durch den Hardtwald direkt in die Karlsruher Innenstadt.

Die Kehrseite der guten Verkehrsanbindung ist die direkte Nähe zur Bahnlinie. Durch die Schallschutzfenster, werden die Zuggeräusche im Haus gut abgeschirmt.

ohne-makler.net
Contact:
Privat vom Eigentümer

Contact now