Außenansicht
Wohnzimmer
Badezimmer
Außenansicht
Außenansicht
Außenansicht
Außenansicht
Grundriss Kellergeschoss
Grundriss 2. Obergeschoss
Schnitt
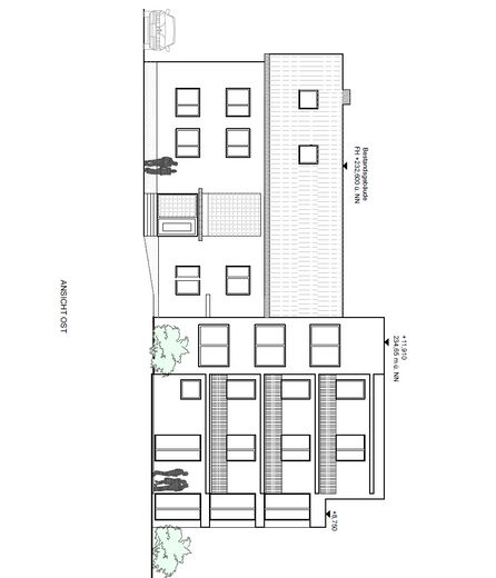
Ansicht Ost
Ansicht Süd
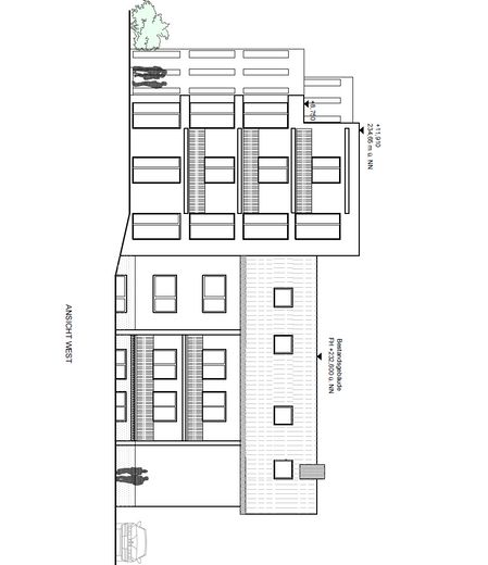
Ansicht West
Ansicht Nord

Erstbezug: Hochwertige Neubau-Wohnung inklusive Balkon mit Abendsonne im 2. OG (WG6)

Get the full address via contact
79415 Bad Bellingen – Bad Bellingen
Baden-Württemberg
265.000 €
Selling Price
48 m²
Living Area
2
Rooms
TraumImmo-ID: FT4CWR9
Partner-ID: 381584
Partner-Property by: ohne-makler.net
Contact:
Angebot von K&G Wohnbau GmbH

Mobile:
0175 6984022

Contact now

Information

  • Type: Flat
  • Storey: 2
  • Living Area ca.: 48 m²
  • Free From: 01.12.2026
  • Rooms: 2
CellarBalcony

  • Construction Year: 2026
  • Condition: FirstTimeUse
  • Heating Type: FloorHeating
  • Storeys: 4
  • Bathrooms: 1.0

Selling Price & Extra Costs

Selling Price265.000 €
Courtageno courtage for buyers

About this dream apartment

Property Description

Unweit des Kurparkgeländes der Gemeinde Bad Bellingen entsteht angrenzend an ein älteres Bestandsgebäude ein eigenständiges Neubauprojekt bestehend aus sieben Wohneinheiten. Die beiden Wohnungen jeweils im Erdgeschoss, 1. Obergeschoss und 2. Obergeschoss verfügen über Wohnflächen zwischen 48 qm und 49 qm und zwei Zimmern. Die Penthouse-Wohnung im 3. Obergeschoss zeichnet sich durch ein weiteres Schlafzimmer und eine Wohnfläche von über 80 qm aus. Alle Wohnungen profitieren dank der Vielzahl an bodentiefen Fenstern von einem hellen und angenehmen Wohnklima. Der durchdachte Grundriss mit offenem Wohn-/Küchen und Essbereich unterstreicht die Modernität des Projekts. Die Bäder aller Wohnungen verfügen über eine ebenerdige Dusche, die drei mit Ostausrichtung sowie die große im Dachgeschoss zusätzlich über ein Fenster. Die Wohnungen im Erdgeschoss sind barrierefrei erreichbar und eignen sich daher ideal für Seniorenpaare. Auf der großen Terrasse lässt es sich entweder die Morgen- oder Abendsonne genießen. Die Wohnungen in den Obergeschossen sind über das Treppenhaus erschlossen, die Stufenanzahl ist aufgrund der wenigen Etagen entsprechend überschaubar. Diese Einheiten verfügen statt der Terrasse über einen Balkon, die Penthouse-Wohnung sogar über zwei.


Furnishing

-Nachhaltige Bauweise im energieeffizienten KfW 40-Standard
-Fußbodenheizung in allen Räumen (Luft-Wasser-Wärmepumpe)
-Modern gestaltetes Wohnkonzept mit offener Küche
-Bodentiefe Kunststofffenster (3x verglast) mit elektrischen Aluminiumrolladen
-Bodenbelag: Parkettboden im Wohn- und Schlafbereich und 60x60 cm Fliesen im Bad
-Wandbelag: Malervlies im Wohn- und Schlafbereich und 60x30 cm Fliesen im Bad
-Zeitlose Badgestaltung mit ebenerdiger Dusche, Fenster und Sanitärgegenstände beziehungsweise Armaturen der namhaften Firmen Duravit und Hansgrohe


Location

Location description

Bad Bellingen ist eine über 5.000 Einwohner starke Gemeinde im Nordwesten des Landkreises Lörrach und damit genau im Dreiländereck Deutschland-Frankreich-Schweiz gelegen. Die Auffahrt zur Bundesautobahn Nr. 5 ist nur 10 Fahrtminuten entfernt, wodurch die Städte Lörrach in 30 Minuten, Mülhausen in 40 Minuten und Basel ebenfalls in 30 Minuten erreicht werden können. Letztere verfügt bekanntermaßen über einen internationalen Flughafen. Das Verkehrsnetz wird durch die Regionalbahnen und Expresszüge der Rheintalschiene abgerundet, wobei Bad Bellingen selbst über einen eigenen Bahnhof verfügt.

Die Gemeinde hat sich seit der Entdeckung von Thermalquellen in den 1950er Jahren als Kur- und Tourismusort überregional einen Namen gemacht. Hiervon profitiert die Wirtschaft und damit auch die Infrastruktur der Ortschaft enorm. Um das Kurparkgelände, welches fußläufig von dem Neubauprojekt zu erreichen ist und zahlreiche Freizeitaktivitäten wie das beliebte Balinea Thermalbad, einen Barfußpfad, Spielplatz oder Fitness-Parcours bietet, gibt es allerlei Geschäfte des täglichen Bedarfs, einen großen Supermarkt und kulinarische Gastronomieangebote. Der angrenzende Rhein sowie der nahegelegene Hertinger Wald erweitern die Naturvielfalt.

ohne-makler.net
Contact:
Angebot von K&G Wohnbau GmbH

Mobile:
0175 6984022

Contact now