Dusche
Arbeitszimmer
Einbauschrank Arbeitszimmer
Hochwertige Küche
Stauraum Küche
Boraabluftsystem im Ceranfeld
Eckbadewanne
Bad mit Dusche
Wohnzimmer
Diele
Offene Küche im Wohnzimmer
Balkon Südseite
Schlafzimmer
Schlafzimmer
Bad mit Einbaumöbel
Dusche
Zugang Balkon Nordseite
Arbeitszimmer
Separates WC
1 eigener Stellplatz im Haus
Offene Wohnküche
Spüle
Edle Wandverkleidung
Blick in Schlafzimmer + WC
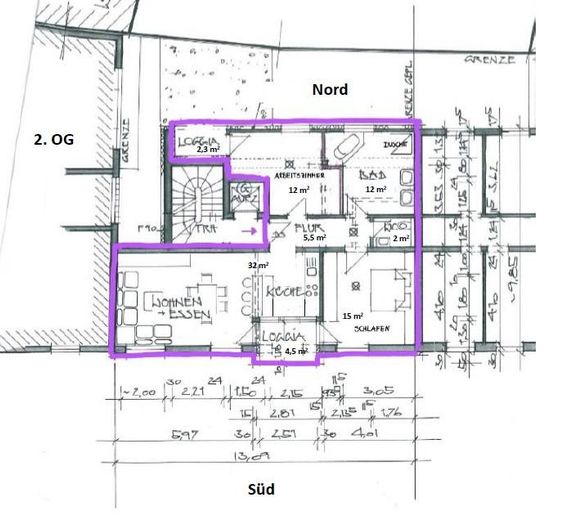
Grundriss Wohnung 2. OG, 82 qm

Ruhige 3-Zimmer-Wohnung Stadtmitte in Kurparknähe

Get the full address via contact
97980 Bad Mergentheim – Bad Mergentheim
Baden-Württemberg
950 €
Rent without service charge
82 m²
Living Area
3
Rooms
TraumImmo-ID: G5B6QXF
Partner-ID: 378333
Partner-Property by: ohne-makler.net
Contact:
Privat vom Eigentümer

Contact now

Information

  • Type: Flat
  • Storey: 2
  • Living Area ca.: 82 m²
  • Free From: 01.11.2025
  • Rooms: 3
CellarGuest-ToiletKitchenBalcony

  • Construction Year: 1970
  • Condition: Refurbished
  • Heating Type: FloorHeating
  • Firing Type: FiringTypeDistrictHeating
  • Storeys: 3
  • Usable Floor Space: 82.0
  • Bathrooms: 1.0
  • Heating Costs included in Service Charge: True

Rent & Utilities

Rent950 €
Additional Costs250 € incl. heating costs
Heating Costs80 €
Deposit2900€

About this dream apartment

Property Description

Willkommen in Ihrem zukünftigen Zuhause !
Unsere attraktive 3-Zimmer-Wohnung befindet sich im 2. OG eines gepflegten Mehrfamilienhauses mit insgesamt 3 Einheiten. Wir freuen uns auf ein ruhiges Paar mittleren Alters oder auch Alleinstehende sind willkommen, die Wert auf ein ruhiges und persönliches Wohnambiente in einer kleinen Hausgemeinschaft legen.

Das Objekt wurde im Jahre 1970 erbaut und 2014 vollständig kernsaniert, hierbei wurde unter anderem ein Personenaufzug eingebaut, der es ermöglicht, Ihre Einkäufe komfortabel und bequem in Ihre Wohnung zu bringen.


Furnishing

Die attraktive Wohnung umfasst ein Schlafzimmer, ein Wohn- und Esszimmer mit moderner offener Einbauküche und Zugang zu einem kleinen Südbalkon mit 4,5 qm.
Über den Hauswirtschaftsraum mit einem raumhohen Einbauschrank gelangt man auf den zweiten kleinen Nordbalkon mit 2,3 qm.
Das großzügige Tageslichtbad mit Dusche, Eckbadewanne, Handtuch-Heizkörper, zwei modernen Waschbecken und vom Schreiner angefertigte hochwertige Badeinbaumöbel verwandeln das Bad zu einer Ruheoase.
HINWEIS: Im Badezimmer befindet sich eine Stufe zur Eckbadewanne bzw. Dusche.
Eine separates WC ist ebenfalls chic ausgestattet und fügt sich harmonisch in die Wohnung mit ein.

Im Keller des Hauses befindet sich zudem ein zur Wohnung gehörender abschließbarer großer Kellerraum mit ca. 20 qm.

Im Erdgeschoss befindet sich der zur Wohnung gehörende Garagenstellplatz, dieser ermöglicht einen bequemen und barrierefreien Zugang zum Aufzug, insbesondere bei eingeschränkter Mobilität oder für den Transport von Einkäufen und Gepäck.
Die gemeinschaftlich genutzte Waschküche mit Platz für Ihre Waschmaschine/Trockner und Fahrräder ist ebenfalls im Erdgeschoss.

Gültiger Energieausweis für das Wohngebäude liegt vor.


Other

Vor Mietvertragabschluss ist von dem Mieter/in eine Mieterselbstauskunft und eine
Schufa-Auskunft vorzuweisen.

Bevorzugt wird ein haustierfreier Nichtraucherhaushalt.

In der Kaltmiete ist die Miete für die Einbauküche inkludiert.


Location

Location description

Die Wohnung liegt in zentraler und doch ruhiger Lage in Bad Mergentheim in der unmittelbaren Nähe des wunderschönen Kurparks, der Solymar-Therme, des Residenzschlosses und der Fußgängerzone. Die als Kurort bekannte Kreisstadt bietet alle Geschäfte des täglichen Bedarfs, wie Apotheken, Banken, Bäcker, Metzgerei, Friseur, Einkaufszentrum, Bahnhof usw., die fußläufig zu erreichen sind.
Erleben Sie eine harmonische Verbindung aus Stadtmitte und Natur in bester Lage.

ohne-makler.net
Contact:
Privat vom Eigentümer

Contact now