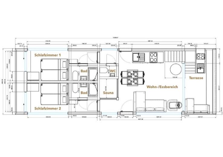
Grundriss
Achterwasser - Sonnenuntergang
Panorama-Sauna
Design-Kamin
Wohnzimmer
Steg - Usedom - Achterwasser
Aussicht aus dem Wohnzimmer
Gäste WC
Schlafzimmer
Vorderseite
Rückseite

Exklusives Hausboot (Wohnyacht) mit Liegeplatz auf Usedom - Premium Ferienimmobilie

Get the full address via contact
17454 Zinnowitz – Zinnowitz
Mecklenburg-Vorpommern
513.500 €
Selling Price
3
Rooms
TraumImmo-ID: GCGX5YH
Partner-ID: 421685
Partner-Property by: ohne-makler.net
Contact:
Angebot von Matthias Wittig

Contact now

Information

  • Type: Leisure Facility
  • Free From: Nach Vereinbarung
  • Rooms: 3
Guest-ToiletKitchen

  • Construction Year: 2026
  • Firing Type: FiringTypeSolarHeating

Selling Price & Extra Costs

Selling Price513.500 €
Courtageno courtage for buyers

About this dream special purpose property

Property Description

Exklusives Hausboot (Wohnyacht) mit Liegeplatz auf Usedom - Premium Ferienimmobilie

- nachhaltig, komfortabel, autark, charterfertig -

Erfüllen Sie sich den Traum vom Leben auf dem Wasser: Wir bieten Ihnen eine hochwertige Stahl-Wohnyacht (Made in Germany) der Kategorie C (küstennah) – voll charterfertig ausgestattet und ideal für private Nutzung oder professionelle Vercharterung.

Nutzen Sie den IAB und erzielen Sie eine hohe Rendite.


Furnishing

Highlights auf einen Blick:
- Sauna, Kamin, En-Suite-Bäder
- Nachhaltiger Stahlrumpf und robuste Stahlstruktur des Aufbaus für eine lebenslange wartungsarme Haltbarkeit
- Exklusive, strapazierfähige Innenausstattung für langjährige Nutzung
- BIO-Kläranlage & Trinkwasseraufbereitung – autark und umweltfreundlich
- Heizung & Klimaanlage mit moderner Wärmepumpentechnik
- Leiser kraftvoller Elektroantrieb mit 2x 16,4 KW Leistung (auf 48V Basis)
- Großzügiger Batteriespeicher mit hoher Kapazität: Ideal für komfortables Wohnen, Ganzjahresnutzung und Charterbetrieb


Other

Interesse geweckt? 
Gerne beantworten wir Ihre Fragen und beraten Sie persönlich zu Ausstattung, Nutzungsmöglichkeiten und Charterkonzepten.
Kontaktieren Sie uns – wir freuen uns auf Sie!


Location

Location description

Wir halten Ihnen einen attraktiven Liegeplatz auf der Sonneninsel Usedom (nahe Zinnowitz) bereit. Er ist für eine 12-monatige Ganzjahrescharter geeignet und befindet sich an der längsten Binnen-Seebrücke Deutschlands.
- Langfristig anmietbar (z. B. 10 Jahre)
- Voll ausgestattete Marina mit allen charterrelevanten Dienstleistungen vor Ort

Auf Wunsch übernehmen wir den Rundum-Service für Sie:
Vermarktung & Buchungsmanagement
Reinigung & Gästebetreuung
Technische Instandhaltung & Service

ohne-makler.net
Contact:
Angebot von Matthias Wittig

Contact now