Gewerbegrundstück am Flughafen Leipzig/Halle – provisionsfrei vom Eigentümer

Get the full address via contact
04435 Schkeudtiz
Sachsen
TraumImmo-ID: GMSZBKF
Partner-ID: 403061
Partner-Property by: ohne-makler.net
Contact:
Angebot von Andreas Hildebrand

Mobile:
0163 5152057

Contact now

Information

    • Free From: Nach Vereinbarung

    • Property Area: 20000.0
    • Utilization Trade Site Type: Trade

    Selling Price & Extra Costs

    Courtageno courtage for buyers

    About this dream trade site

    Property Description

    Zum Verkauf steht ein Gewerbegrundstück in unmittelbarer Nähe zum Flughafen Leipzig/Halle mit einer Gesamtfläche von ca. 20.000 m².
    Das Grundstück eignet sich ideal für vielfältige gewerbliche Nutzungen und befindet sich in einem stark frequentierten Umfeld mit hervorragender Verkehrsanbindung.

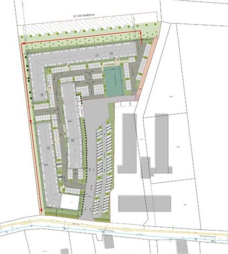
    Ein rechtskräftiger Bebauungsplan (B-Plan) liegt vor und ermöglicht eine zeitnahe Realisierung Ihres Bauvorhabens. Gemäß den Festsetzungen des B-Plans ist eine Bebauung mit einer Bruttogrundfläche (BGF) von ca. 20.000 m² zulässig. Die zulässige Grundflächenzahl (GRZ) beträgt 0,8. Die maximale Firsthöhe der Gebäude liegt – abhängig von der konkreten Planung – zwischen 13 und 15 Metern.

    Hinweis: Die beigefügten Visualisierungen dienen ausschließlich der Veranschaulichung einer möglichen Bebauungsvariante, beispielsweise für ein Hotel oder Boardinghouse mit Stellflächen für Lkw und Pkw. Es handelt sich dabei nicht um eine verbindliche Planung.

    Gemäß § 8 Abs. 1 BauNVO sind unter anderem folgende Nutzungen zulässig:
    – Gewerbebetriebe aller Art
    – Lagerhäuser und Lagerplätze
    – Geschäfts-, Büro- und Verwaltungsgebäude
    – öffentliche Betriebe
    – Tankstellen sowie Sporteinrichtungen

    Der Verkauf erfolgt wahlweise im Rahmen eines Share Deals oder eines Asset Deals.

    - Kaufpreis im Share Deal: 75 € / m²
    - Kaufpreis im Asset Deal: 95 € / m²

    Für weiterführende Informationen oder zur Vereinbarung eines Besichtigungstermins stehen wir Ihnen gerne zur Verfügung.


    Other

    Für alle Fragen oder weitere Informationen stehe ich Ihnen gerne zur Verfügung. Sie können mich von Montag bis Freitag zwischen 9:00 Uhr und 18:00 Uhr telefonisch erreichen. Wenn es Ihnen lieber ist, können Sie mir auch gerne per WhatsApp eine Nachricht senden. Meine Nummer lautet 0163-5152057.
    Alternativ können Sie mir auch eine E-Mail an hildebrand@gpm.immobi­­­­­­­li­­­­­­­­­en schreiben.

    Falls Sie direkt mit dem Eigentümer sprechen möchten zum Beispiel Kaufpreisverhandlungen, können Sie direkt mit dem Eigentümer Herrn Peter Jugl unter folgender Telefonnummer 01709848571 erreichen oder eine Whatsapp senden.

    Impressum

    G­­­­­P­­­­­­­­­­­­M GmbH
    Hafenstraße 12
    04416 Markkleeberg

    Telefon:
    03 41 / 35 42 20 20

    E-Mail:
    info@gpm.immobi­­­­­­­­­­­­­­lien

    Vertreten­ durch:
    Peter Jugl

    Registereintrag:
    Eing­­­­­­­­­­­­­­­­­etragen im Handelsregister.
    Registergeri­­­­­­­­­­­­­­­­­cht: Amtsgericht Leipzig
    Registernummer: HRB 21518

    Verantwortlich für den Inhalt (gem. § 55 Abs. 2 RStV):
    Peter Jugl


    Location

    Location description

    Das Gewerbegrundstück hat eine sehr gute geographische Lage es ist unweit zum Autobahndreieck A9 Berlin – München / A14 Dresden-Magdeburg / A38 Leipzig-Göttingen, sowie dem neuen Messegelände und dem gesamten Industriegebiet mit BMW Porsche DHL u.v.m, wird durch eine hohe Anzahl Bundesstraßen ergänzt und hinzu kommen die Anbindungen an die Bahnverbindung mit ICE und den Flughafen Leipzig-Halle. Ein ausgedehntes Nahverkehrsnetz verbindet Leipzig mit den Gemeinden und Städten des Umlandes.

    ohne-makler.net
    Contact:
    Angebot von Andreas Hildebrand

    Mobile:
    0163 5152057

    Contact now