Hausansicht
Wohnzimmer
offener Küchenbereich
Zwischenflur zum Bad
Badezimmer
Zugang zur Dachterasse
Geräumiger Flur
Badezimmer
Schlafzimmer
Flur
Büro
Badezimmer
Abstellraum

Urban wohnen mit großer Dachterrasse – moderne 3-Zimmer-Wohnung in OL-Osternburg

Get the full address via contact
26135 Oldenburg – Oldenburg (Oldb)
Niedersachsen
399.000 €
Selling Price
97 m²
Living Area
3
Rooms
TraumImmo-ID: GNPR8RY
Partner-ID: 414458
Partner-Property by: ohne-makler.net
Contact:
Privat vom Eigentümer

Contact now

Information

  • Type: Roof Story
  • Storey: 2
  • Living Area ca.: 97 m²
  • Free From: 15.04.2026
  • Rooms: 3
Kitchen

  • Construction Year: 2016
  • Condition: MintCondition
  • Heating Type: CentralHeating
  • Firing Type: Gas
  • Storeys: 1
  • Usable Floor Space: 30.0
  • Bathrooms: 1.0

Selling Price & Extra Costs

Selling Price399.000 €
Courtageno courtage for buyers

About this dream apartment

Property Description

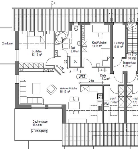
Diese moderne Wohnung aus 2016 liegt in Oldenburg-Osternburg innerhalb des inneren Autobahnrings und überzeugt durch ihre ruhige Lage innerhalb des Mehrfamilienhauses und eine klare und moderne Raumaufteilung.

Sobald Sie die Tür vom Treppenhaus hinter sich geschlossen haben, haben Sie Ihr eigenes Reich auf ca. 97m² Wohnfläche. Von den weiteren Parteien im Haus ist nichts zu merken und über den großen Eingangsflur erreichen Sie den großzügigen Abstellraum, das Schlafzimmer/Büro und schließlich stehen Sie im Wohn- und Essbereich. Der offene und helle Wohn- und Essbereich lässt keine Wünsche offen. Die große und hochwertige Küche lädt zum Kochen ein, vom Wohnzimmer aus geht es auf die Dachterasse mit Blick über die Nachbarschaft. Über den Zwischenflur ist sowohl das weitere Zimmer erreichbar als auch das moderne Tageslicht-Bad inkl. Badewanne mit Fenster mit Blick gen Sternenhimmel.

Die Wohnung überzeugt durch einen sehr gepflegten Zustand, eine klare Raumaufteilung, einen eigenen Stellplatz für den PKW hinter dem Haus, einen eigenen großzügigen Dachboden über die gesamte Wohnungsfläche und eine tolle Dachterasse für die warmen Tage im Jahr. Über das installierte Smart-Home können Steckdosen, Licht und die Heizung bei Bedarf auch per App gesteuert werden und liefert somit einen weiteren Hauch an Luxus.

Die Innenstadt ist fußläufig oder mit dem Fahrrad erreichbar, eine Bushaltestelle befindet sich direkt vor der Tür.

Ideal für alle, die stadtnah und flexibel wohnen möchten

Melden Sie sich jetzt für eine Besichtigung Ihrer zukünftigen, gepflegten und modernen Wohnung mit großer Dachterrasse, viel Stauraum und sehr guter Anbindung – ideal für Paare, kleine Familien oder Homeoffice-Nutzer, die urban wohnen möchten.


Furnishing

- Moderne Ausstattung und tolle Bodenbeläge
- Durchdachter Grundriss
- Hochwertige Marken-Einbauküche mit Markengeräten
- Smart-Home Installation
- Glasfaser & VDSL-Anschluss
- 3 gut geschnittene Zimmer
- Große Dachterrasse mit viel Platz zum Entspannen
- Exklusiver Dachboden über der gesamten Wohnung
- Moderne Einbauküche
- Tageslichtbad mit Badewanne
- Separater Hauswirtschaftsraum mit großem Dachfenster
- Stellplatz im Kaufpreis enthalten
- Überdachter, abschließbarer Fahrradstellplatz (gemeinschaftlich)


Location

Location description

Die Immobilie befindet sich in Oldenburg-Osternburg, einem traditionsreichen und lebendigen Stadtteil im Südosten der Universitätsstadt Oldenburg (Oldb) in Niedersachsen. Osternburg gehört zu den älteren, etablierten Wohngebieten der Stadt und zeichnet sich durch eine vielfältige Wohn- und Nutzungsmischung aus, die sowohl klassische Wohnbebauung als auch Gewerbe- und Dienstleistungsnutzungen umfasst.

Die Bremer Heerstraße zählt zu den bedeutenden Verkehrsachsen des Stadtteils und bietet eine direkte Verbindung zu wichtigen Zielen in Oldenburg und der Umgebung. Entlang der Straße finden sich diverse Einzelhandels- und Dienstleistungsangebote, Handwerksbetriebe sowie Gastronomie- und Versorgungsbetriebe – ideal für die alltägliche Nahversorgung und urbanes Leben.

Dank der zentrale Lage im Stadtteil sind zahlreiche Einrichtungen fußläufig oder mit dem Fahrrad schnell erreichbar:
Lebensmittelgeschäfte, Bäcker und Einzelhandel im direkten Wohnumfeld,

Öffentliche Verkehrsanbindung durch mehrere Buslinien mit Verbindungen zur Innenstadt und zu anderen Stadtteilen, Kindergärten, Schulen und Freizeitangebote in kurzer Entfernung.

Die Innenstadt von Oldenburg ist nur wenige Minuten entfernt und bietet ein umfangreiches kulturelles, gastronomisches und wirtschaftliches Angebot. Die Nähe zu den Hauptverkehrsstraßen sorgt für eine hervorragende Erreichbarkeit mit dem Auto.

ohne-makler.net
Contact:
Privat vom Eigentümer

Contact now