Rückansicht
Küche
Küche
Wohnzimmer/Esszimmer
Wohnzimmer
Flur 1. Stock
Kinderzimmer
Kinderzimmer
Badezimmer 1. Stock
Arbeitszimmer/Kinderzimmer
Arbeitszimmer/Kinderzimmer
Treppe 2.Stock
Schlafzimmer
Schlafzimmer
Schlafzimmer
Schlafzimmer
Schlafzimmer
Schlafzimmer
Frontansicht
Flur EG
Flur EG
Flur EG
Wohnzimmer/Esszimmer
Wohnzimmer
Wohnzimmer/Esszimmer
Gäste WC EG
Gäste WC EG
Treppe zum 1. Stock
Flur 1. Stock
Kinderzimmer
Kinderzimmer
Badezimmer 1. Stock
Garten
Rückansicht
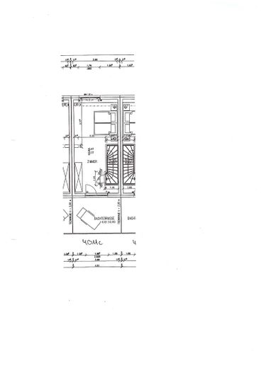
1. Stock
2. Stock
Vorderansicht
Erdgeschoss
Frontansicht
Garten
Wohnzimmer/Esszimmer

Reihenmittelhaus in Zirndorf - Pinderpark Provisionsfrei

Get the full address via contact
90513 Zirndorf – Zirndorf
Bayern
469.000 €
Selling Price
103 m²
Living Area
4
Rooms
TraumImmo-ID: GXVF8CE
Partner-ID: 394765
Partner-Property by: ohne-makler.net
Contact:
Privat vom Eigentümer

Contact now

Information

  • Type: Mid-Terrace Town House
  • Living Area ca.: 103 m²
  • Free From: Nach Vereinbarung
  • Rooms: 4
Guest-ToiletKitchenGarden

  • Property Area: 100.0
  • Construction Year: 2010
  • Condition: WellKept
  • Heating Type: CentralHeating
  • Firing Type: Gas
  • Storeys: 3
  • Bathrooms: 1.0

Selling Price & Extra Costs

Selling Price469.000 €
Courtageno courtage for buyers

About this dream house

Property Description

Modernes Reihenmittelhaus in Zirndorf-Pinderpark – Familienfreundlich, energieeffizient und hochwertig ausgestattet

Dieses gepflegte Reihenmittelhaus aus dem Jahr 2010 überzeugt mit einem durchdachten Grundriss, moderner Technik und einer erstklassigen Lage im beliebten Wohngebiet Pinderpark in Zirndorf. Auf ca. 103 m² Wohnfläche erwarten Sie 4 Zimmer, die perfekt auf die Bedürfnisse von Familien zugeschnitten sind.

Besondere Highlights:

Energieausweis A+ – energieeffizientes Wohnen mit niedrigen Nebenkosten

Neue Heizungsanlage mit Solarthermie – nachhaltige Technik für umweltfreundliches und sparsames Heizen

Einbauküche - hochwertige Einbauküche von Nolte

Hochwertig gestalteter Garten mit langlebigen WPC-Dielen, einem Gerätehaus von biohort, stilvoller Terrassenüberdachung und zwei Markisen (Terrasse und Dachterrasse inkl. Sonnen- Windwächter)

Dachterrasse – ideal zum Entspannen oder geselligem Beisammensein

Garage (Einzelgarage), sowie ein zusätzlicher Außenstellplatz für komfortables Parken

Ausstattung & Technik:

Homematic-System zur smarten Steuerung von Rauchmeldern, Heizung und Kameras

Schlüsselloser Zugang über Nuki – modernes, sicheres und komfortables Wohnen

Zeitgemäße Raumaufteilung mit viel Licht und Platz für die ganze Familie

Die Lage im ruhigen und familienfreundlichen Pinderpark bietet kurze Wege zu Kindergärten, Schulen, Einkaufsmöglichkeiten und Freizeitangeboten. Zirndorf überzeugt zudem mit einer hervorragenden Infrastruktur und direkter Anbindung an Nürnberg und Fürth.

Fazit:
Ein ideales Zuhause für Familien, die Wert auf Energieeffizienz, moderne Ausstattung und hohe Lebensqualität legen.


Location

Location description

Ihr neues Zuhause in Zirndorf – Familienfreundlich, zentral und lebenswert



Warum Zirndorf der perfekte Ort für Familien ist:

Hervorragende Kinderbetreuung und Schulen: Zahlreiche Kindergärten, Grund- und weiterführende Schulen sind schnell erreichbar – kurze Wege erleichtern den Alltag.

Freizeit & Abenteuer für Kinder: Der weit bekannte Playmobil FunPark, moderne Spielplätze, Sportvereine und das Freibad sorgen für jede Menge Abwechslung.

Grüne Erholung direkt vor der Tür: Stadtpark, Rad- und Spazierwege sowie die Nähe zur Natur laden zu Ausflügen, Picknicks und sportlichen Aktivitäten mit der ganzen Familie ein.

Sicheres, familiäres Umfeld: Zirndorf bietet eine lebendige Gemeinschaft mit Vereinen, Festen und Veranstaltungen, bei denen sich Familien schnell zuhause fühlen.

Alles für den täglichen Bedarf: Supermärkte, Ärzte, Apotheken und Wochenmärkte sind bequem erreichbar und machen den Alltag einfach und angenehm.

Beste Verkehrsanbindung: Mit Bahn, Bus und Auto gelangen Sie schnell nach Nürnberg, Fürth oder Erlangen – perfekt für Berufspendler, die ruhig wohnen und gleichzeitig urban angebunden sein möchten.

Dieses Zuhause in Zirndorf ist die ideale Kombination aus moderner Wohnqualität, einem kinderfreundlichen Umfeld und einer Lage, die Ihnen und Ihrer Familie höchste Lebensqualität garantiert.

ohne-makler.net
Contact:
Privat vom Eigentümer

Contact now