Straßenseite 2
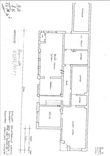
Grundriss Erdgeschoss
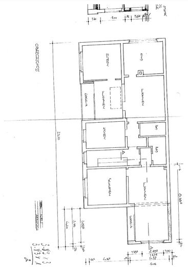
Grundriss Obergeschoss
Rückseite
Laden 2
Straßenseite 1
Laden 1

Attraktives Anlageobjekt: Vollvermietetes Wohn- und Geschäftshaus in zentraler Lage

Lechenicher Straße 2
50126 Bergheim – Bergheim
Nordrhein-Westfalen
679.999 €
Selling Price
159 m²
Living Area
8
Rooms
TraumImmo-ID: HQWFZQT
Partner-ID: 397057
Partner-Property by: ohne-makler.net
Contact:
Privat von Janine Gemein

Contact now

Information

  • Type: Multi-Family House
  • Living Area ca.: 159 m²
  • Free From: Nach Vereinbarung
  • Rooms: 8

  • Property Area: 404.0
  • Construction Year: 1950
  • Heating Type: CentralHeating
  • Firing Type: Gas
  • Storeys: 2
  • Usable Floor Space: 119.0

Selling Price & Extra Costs

Selling Price679.999 €
Courtageno courtage for buyers

About this dream house

Property Description

Bei dem angebotenen Objekt handelt es sich um ein Wohn- und Geschäftshaus in zentraler Lage von Bergheim, Lechenicher Straße 2. Das im Jahr 1950 errichtete Gebäude überzeugt durch seine solide Bausubstanz und die gute Vermietbarkeit. Es bietet eine Gesamtfläche von ca. 278 m² auf einem Grundstück von ca. 404 m².
Das Erdgeschoss umfasst zwei gut sichtbare Ladenlokale mit einer Gesamtfläche von ca. 119 m². Die Schaufensterfronten bieten ideale Präsentationsmöglichkeiten und gewährleisten eine hohe Kundenfrequenz. In den oberen Etagen befinden sich drei Wohneinheiten mit insgesamt ca. 159 m² Wohnfläche – eine Zwei-Zimmer-, eine Drei-Zimmer- sowie eine Ein-Zimmer-Wohnung mit Küche und Bad.
Alle Einheiten sind derzeit vermietet und sorgen für eine jährliche Kaltmieteinnahme von ca. 37.000€. Damit eignet sich das Objekt hervorragend als renditestarke Kapitalanlage mit stabilem Ertrag. Die Beheizung erfolgt über eine Gas-Zentralheizung.
Das Gebäude ist teilunterkellert und bietet somit zusätzliche Nutzfläche. Hinter dem Haus stehen eine Garage sowie mehrere Pkw-Stellplätze zur Verfügung.
Hinweis:
Für das Objekt liegen zwei separate Energieausweise vor – ein Energiebedarfsausweis für den Wohnteil und ein weiterer Energieausweis für die gewerblich genutzte Fläche. Beide Ausweise können bei Interesse eingesehen werden. Im Inserat ist der Energieausweis für den Wohnteil hinterlegt.


Location

Location description

Die Lage in der Lechenicher Straße zeichnet sich durch eine gute Erreichbarkeit, gewachsene Infrastruktur und eine solide Nachfrage nach Wohn- und Gewerbeflächen aus. Einkaufsmöglichkeiten, Gastronomie, öffentliche Verkehrsmittel und das Stadtzentrum sind fußläufig erreichbar.

ohne-makler.net
Contact:
Privat von Janine Gemein

Contact now