Erdgeschoss
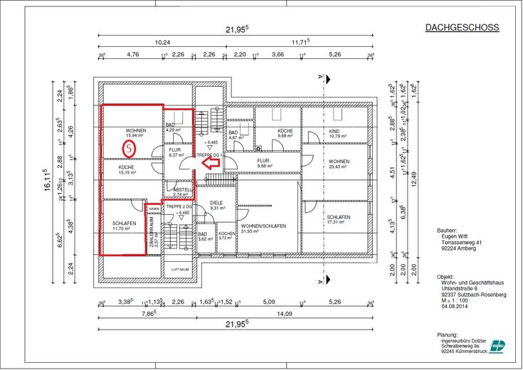
Dachgeschoss
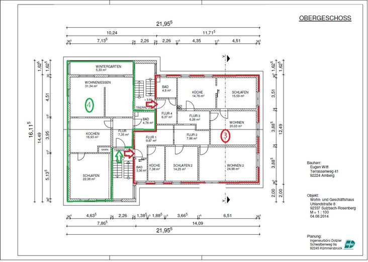
1.Obergeschoss

Top-gepflegtes Wohn- und Geschäftshaus - 5 Einheiten mit sicherem Mietertrag

Uhlandstraße 8
92237 Sulzbach-Rosenberg – Sulzbach-Rosenberg
Bayern
685.000 €
Selling Price
281 m²
Living Area
TraumImmo-ID: J7VY2WQ
Partner-ID: 389925
Partner-Property by: ohne-makler.net
Contact:
Privat von Eugen Witt

Phone:
09621 692503
Mobile:
0176 20676376

Contact now

Information

  • Type: Living / Business House
  • Living Area ca.: 281 m²
  • Free From: Nach Vereinbarung
CellarGuest-ToiletKitchen

  • Property Area: 780.0
  • Construction Year: 1961
  • Condition: WellKept
  • Heating Type: SelfContainedCentralHeating
  • Firing Type: Gas
  • Storeys: 2
  • Rental Income: 40884

Selling Price & Extra Costs

Selling Price685.000 €
Courtageno courtage for buyers

About this dream investment property

Property Description

Zum Verkauf steht ein gepflegtes Wohn- und Geschäftshaus mit insgesamt acht Einheiten. Drei davon wurden bereits veräußert, die verbleibenden fünf Einheiten – bestehend aus zwei Gewerbeeinheiten sowie drei Wohnungen – stehen nun zum Verkauf.

Die Immobilie überzeugt durch ihre solide Bausubstanz, eine gute Mieterstruktur sowie nachhaltige Ertragssicherheit. Mit einer aktuellen Jahresnettokaltmiete von ca. 40.884 € und einem Anpassungspotenzial auf ca. 50.000 € jährlich stellt dieses Objekt eine attraktive Kapitalanlage dar.

Die Einheiten im Überblick
•Gewerbeeinheit 1: 147m² (82m² Verkaufsfläche + 65m² Lagerfläche),aktuell als Pizzeria vermietet
•Gewerbeeinheit 2: 54m², aktuell als Fahrschule vermietet
•Wohnungen (3 Einheiten mit 136m², 88m², 57m²): gut geschnittene Wohnungen, solide vermietet.
Gesamtfläche (Wohn- und Nutzfläche): ca. 482 m²

Wirtschaftliche Kennzahlen
•Aktuelle Jahresnettokaltmiete: ca. 40.884 €
•Anpassungspotenzial: auf ca. 50.000 € jährlich
•Einheiten im Verkauf: 5 (2 Gewerbe + 3 Wohnungen)
•Gesamtanzahl im Objekt: 8 Einheiten (davon 3 bereits verkauft)

Highlights
•Attraktive Kapitalanlage mit solidem Entwicklungspotenzial
•Stabile Mieterstruktur (Wohnen & Gewerbe)
•Gute Lage mit hoher Sichtbarkeit und Frequenz
•Umfassend saniert (90er-Jahre) und laufend modernisiert
•Solide Bauweise, gepflegter Zustand

Sonstiges
Das Objekt eignet sich ideal als Kapitalanlage für Privatpersonen und Investoren, die auf ein langfristig stabiles Mietertragsmodell setzen. Durch die Kombination von Wohn- und Gewerbeeinheiten ergibt sich eine ausgewogene Nutzung, die zusätzliche Sicherheit bietet.


Furnishing

Die Immobilie wurde in den vergangenen Jahrzehnten regelmäßig modernisiert und präsentiert sich in einem gepflegten Gesamtzustand.
•Umfassende Sanierung in den 1990er-Jahren: Erneuerung der Elektrik, Sanierung der Bäder, Heizungsanlagen (Gasetagenheizungen), und weiterer Gebäudeteile
•2000–2005: Einbau von isolierverglasten Kunststofffenstern mit Rollläden am gesamten Objekt
•Beheizung über Gasetagenheizungen
•Solide Bauweise mit gemischter Nutzung (Wohnen und Gewerbe)


Other

Besichtigungstermine nach telefonischer Vereinbarung!


Location

Location description

Das Wohn- und Geschäftshaus befindet sich in einer gut frequentierten Lage mit hoher Sichtbarkeit und guter Erreichbarkeit. Die zentrale Position bietet den Gewerbemietern eine hervorragende Geschäftsbasis und sichert eine konstante Nachfrage.

Dieses Anwesen befindet sich im Zentrum von Loderhof (Stadtteil von Sulzbach-Rosenberg), wodurch sich eine stabile und nachhaltige Vermietungssituation ergibt. Einkaufsmöglichkeiten, Gastronomie, Schulen und öffentliche Verkehrsanbindungen sind in unmittelbarer Nähe vorhanden.

ohne-makler.net
Contact:
Privat von Eugen Witt

Phone:
09621 692503
Mobile:
0176 20676376

Contact now