Schlafzimmer
Blick vom Süd-West Balkon
großzügige Dusche
Einbauküche inclusive
Wohnzimmer
Hauptbad
Gäste WC
el. ausfahrbahrer Badschrank
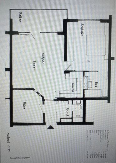
Grundriss

Licht, Weitblick, Wohlgefühl – 2,5-Raum-Wohnung mit Balkon & Aufzug, provisionsfrei

Nelkenstrasse 3
35418 Buseck – Großen-Buseck
Hessen
158.000 €
Selling Price
68 m²
Living Area
2,5
Rooms
TraumImmo-ID: JGMRV2C
Partner-ID: 380572
Partner-Property by: ohne-makler.net
Contact:
Privat von Thomas Haberland

Mobile:
0170 1872111

Contact now

Information

  • Type: Flat
  • Living Area ca.: 68 m²
  • Free From: Nach Vereinbarung
  • Rooms: 2,5
CellarGuest-ToiletKitchenBalcony

  • Construction Year: 1974
  • Condition: WellKept
  • Heating Type: CentralHeating
  • Firing Type: FiringTypeDistrictHeating
  • Storeys: 13
  • Bathrooms: 2.0

Selling Price & Extra Costs

Selling Price158.000 €
Courtageno courtage for buyers

About this dream apartment

Property Description

Willkommen in Ihrem neuen Zuhause zum Verlieben!
Diese charmante Eigentumswohnung besticht durch lichtdurchflutete Räume, eine durchdachte Raumaufteilung und einen weiten Blick ins Grüne – perfekt für Eigennutzer oder als wertbeständige Kapitalanlage.

Schon der einladende Vorflur führt Sie in ein ruhiges, separates Zimmer – ideal als Homeoffice oder Gästezimmer.
Das Herzstück ist das großzügige Wohn- und Esszimmer mit offener Küche, in dem Alltag und Genuss harmonisch ineinander übergehen.

Ein besonderes Highlight: der große, überdachte Balkon mit malerischem Fernblick – perfekt für den ersten Kaffee am Morgen oder den Sonnenuntergang am Abend.

Das Schlafzimmer ist ein Rückzugsort voller Ruhe und Geborgenheit, mit direktem Zugang zum modernisierten Duschbad mit Waschmaschinenanschluss und cleveren Stauraumlösungen.

Ausstattung:
Baujahr 1973, massive Bauweise – solide und werthaltig

Großzügiges Wohn- & Esszimmer mit offener Küche

Überdachter Balkon mit Weitblick

Modernisiertes Duschbad mit elektrisch ausfahrbarem Regal

Hochwertige Einbauküche inklusive

Isolierverglaste Fenster

Beschlossene Modernisierungen: neues Balkongeländer & Balkonfenster

Pflegeleichte Fliesen in Bad & Küche

Designboden im Wohnbereich

Umweltfreundliche Fernwärme

Aufzug im Haus

Freie Stellflächen auf großzügigen Parkdecks


Other

Provisionsfrei – direkt vom Eigentümer.
Ideal für Selbstnutzer oder als sichere Kapitalanlage.


Location

Location description

Lage
Diese schicke und helle Wohnung befindet sich am Ortsrand von Großen-Buseck in einer
fantastischen Aussichtslage. Die Anschlüsse an die A 5 und A 480 sind in kürzester Zeit zu
erreichen, ebenso die Kreis- und Universitätsstadt Gießen. Der Ort bietet weiterhin eine gute
Infrastruktur mit diversen Einkaufsmöglichkeiten, Bahnanschluss, Schwimmbad,
Kindergärten und Schulen.
Die Wohnung selbst liegt im 11. Stock eines Hauses mit 13 Stockwerken.

ohne-makler.net
Contact:
Privat von Thomas Haberland

Mobile:
0170 1872111

Contact now