Wohnzimmer
Garten
Wohnzimmer
Wohnzimmer
Badezimmer
Garten
Wohnzimmer
Wohnzimmer
Einbauküche
Modernisierter Stromzähl.+FI
Gemeinschaftsraum im Keller
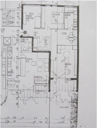
Grundriss nach dem Umbau
Wohnzimmer
Flur
Badezimmer
Kinderzimmer 1
Kinderzimmer 1
Schlafzimmer
Kinderzimmer 2
Stromkasten
Badezimmer
Kinderzimmer 1
Schlafzimmer
Schlafzimmer
Garten
Stromkasten
Tiefgaragenplatz + Ladestation

Top renovierte 4-Zimmer Wohnung mit eigenem Garten und Terrasse

Get the full address via contact
82110 Germering – Germering
Bayern
660.000 €
Selling Price
91 m²
Living Area
4
Rooms
TraumImmo-ID: JPVWSAG
Partner-ID: 401366
Partner-Property by: ohne-makler.net
Contact:
Privat von Fahim Hamidzada

Contact now

Information

  • Type: Ground Floor
  • Storey: 0
  • Living Area ca.: 91 m²
  • Free From: 01.12.2025
  • Rooms: 4
CellarKitchenGarden

  • Construction Year: 1977
  • Condition: FullyRenovated
  • Heating Type: CentralHeating
  • Firing Type: Gas
  • Storeys: 3
  • Usable Floor Space: 100.0
  • Bathrooms: 1.0

Selling Price & Extra Costs

Selling Price660.000 €
Courtageno courtage for buyers

About this dream apartment

Property Description

Diese exklusive 4-Zimmer-Wohnung mit ca. 91 m² Wohnfläche befindet sich im Erdgeschoss eines gepflegten Mehrfamilienhauses in der Josef-Kistler-Str. in Germering. Die Wohnung besticht durch ihre gehobene Innenausstattung und bietet ein großzügiges Raumgefühl. Eine Terrasse mit großer ein- und ausfahrbarer Markise lädt zum Verweilen ein. Die Wohnung verfügt über ein Badezimmer und eine Einbauküche. Ein Keller bietet zusätzlichen Stauraum. Ein Aufzug erleichtert den Zugang. Die Wohnung ist ab dem 1.12.2025 oder nach Vereinbarung verfügbar.

Vom gefliesten Eingang gelangen Sie in die 3 Schlafzimmer und zu dem gefliesten Bad mit Badewanne. Am Ende befindet sich der Essbereich mit direktem Zugang zur geräumigen Küche mit gehobener Ausstattung. Vom offenen Wohnzimmer kommen Sie auf die Terrasse und den sonnigen und schön angelegten, ca. 75qm großen Garten. Die Böden sind im Wohnzimmer, Esszimmer und Diele mit Carrara-Marmor belegt. Zur Wohnung gehört selbstverständlich eine eigenes Kellerabteil und einige Gemeinschaftsräume. Von der Tiefgarage, die für Euro 20.000 € erworben werden kann, erreichen Sie mit dem Aufzug Ihre neue Wohnung. Eine eigene Ladestation zum Laden von Elektrofahrzeugen ist eingerichtet. Garagentor mit Fernbedienung.

Ausstattung und Renovierung
Die Immobilie wurde 2022 umfassend renoviert. Dabei wurden u, a, folgende Arbeiten durchgeführt:
• Neues Badezimmer mit Badewanne und moderner Ausstattung
• Erneuerung der Türen aller Räume.
• LED-Deckenbeleuchtung und Spots in Flur, Bad und Wohnräumen, flexibel einschaltbar und dimmbar.
• Erneuerte Elektroinstallationen mit FI-Schalter und Steckdosen, sowie Verlegung hochwertiger LAN-Kabel an mehreren Stellen im Wohnzimmer.
• Offene Küche im Wohnzimmer mit hochwertiger Einbauküche von Segmüller (Anschaffung 11/2022, ca. 20.000 €). Grifflose Küche mit u. a. Apothekerschrank, Le Mans Auszug, Bora-Herd, Samsung Kühl-Gefrierkombi, großer Waschtrockner usw.
• Wohnzimmer mit edlem Marmorboden
• Zwei Zimmer mit neuverlegtem Parkettboden
• Kinderzimmer mit neuverlegtem Vinylboden

Da vom Fußboden wegen der daruntergelegenen Heizungsröhre genügend Wärme in die Wohnung kommt, haben wir noch nie von der Heizung im Winter Gebrauch machen müssen, was die Heizkosten bei uns quasi auf Null gesetzt hat. Daher auch das sehr niedrige Hausgeld für diese Wohnung.
Verkauf ohne Makler, also provisionsfrei.


Furnishing

• Separater Kellerraum mit eigenem Stromanschluss.
• Tiefgarage mit eigener Ladevorrichtung für Elektrofahrzeuge und Garagentor mit Fernbedienung.
• Ruhige Lage, Bushaltestelle vor dem Haus, Fahrradkeller, Spielplätze in der Nähe.


Other

Fazit
Die Wohnung ist ideal für Familien oder Paare, die Wert auf moderne Ausstattung und einen eigenen Garten legen. Dank der umfangreichen Renovierung im Jahr 2022 befindet sie sich in einem hervorragenden Zustand und ist sofort bezugsfertig.

Weitere Angaben wie Grundriss, aktueller Energieausweis usw. auf Nachfrage gerne verfügbar.


Location

Location description

Germering, im Herzen des Münchner Umlands gelegen, bietet eine hervorragende Infrastruktur und Lebensqualität. Die Stadt verfügt über eine gute Anbindung an das öffentliche Nahverkehrsnetz, mit S-Bahn-Anschlüssen, die eine schnelle Erreichbarkeit von München gewährleisten. Zahlreiche Einkaufsmöglichkeiten, Ärzte, Schulen und Freizeiteinrichtungen sind vorhanden und tragen zu einem angenehmen Wohnumfeld bei. Grüne Flächen und Parks laden zur Erholung ein.
Die wunderschöne 4-Zimmergartenwohnung liegt in ruhiger Lage im Westen von Germering. Die Anlage hat nur 13 Wohneinheiten. Die sonnige Wohnung mit eigenem Garten, Terrasse und Blockhaus liegt nur wenige Gehminuten vom Ortszentrum und der S-Bahn entfernt. Ein Bushaltestelle befindet sich auch in der Nähe. Der schön angelegte Garten mit Terrasse ist nach Südwesten ausgelegt.

ohne-makler.net
Contact:
Privat von Fahim Hamidzada

Contact now