Rückseitige Ansicht
Treppenaufgang
OG-Gästezimmer
Technikraum
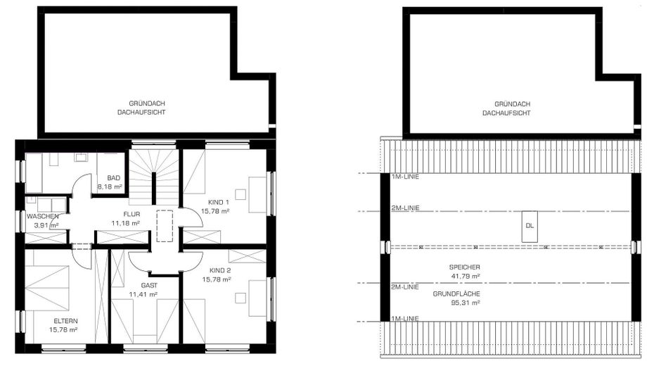
Grundriss-OG und Dach
OG-Schlafzimmer
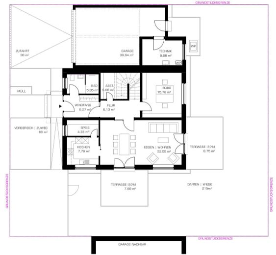
Grundriss-EG
Straßenansicht
EG-Speise
EG-Büro
OG-Badezimmer
Garage
EG- Wohn-/Esszimmer
EG-Küche
EG-WC mit Dusche
EG-Abstellraum
OG-Flur
OG-Kinderzimmer 1
OG-Kinderzimmer 2
EG-Eingang-Flur

Neubau / Erstbezug Einfamilienhaus mit Garage in Abensberg-Gaden

Biberweg 18
93326 Abensberg – Abensberg
Bayern
2200 €
Rent without service charge
186 m²
Living Area
6
Rooms
TraumImmo-ID: KJEUDUW
Partner-ID: 411544
Partner-Property by: ohne-makler.net
Contact:
Privat von Hubert Käs

Contact now

Information

  • Type: Single Family House
  • Living Area ca.: 186 m²
  • Free From: sofort
  • Rooms: 6
Guest-ToiletKitchenGarden

  • Property Area: 537.0
  • Construction Year: 2025
  • Condition: FirstTimeUse
  • Heating Type: FloorHeating
  • Firing Type: Electricity
  • Storeys: 2
  • Usable Floor Space: 49.0
  • Bathrooms: 2.0

Rent & Utilities

Rent2200 €
Deposit6600€

About this dream house

Property Description

Dieses exklusive Einfamilienhaus mit ca. 186 m² Wohnfläche und 537 m² Grundstücksfläche befindet sich in einer ruhigen Lage von Abensberg im Neubaugebiet Gaden-Süd. Das Haus wurde mit hochwertiger Ausstattung versehen und bietet auf zwei Etagen großzügigen Wohnraum. Es verfügt über 6 Zimmer, Badezimmer und ein Gäste-WC/Dusche. Im Erdgeschoss befindet sich ein Raum der als Büro genutzt werden kann, im Obergeschoss befinden sich 4 Schlafräume. Barrierefreiheit der Innenräume im Erdgeschoss ist gegeben, was den Komfort erhöht. Haustiere sind nach Absprache erlaubt.
Im Garten wurden 2 Terrassen mit Granit-Belag errichtet, die nach Osten bzw. Süden ausgerichtet sind. Im Dachbodenspeicher steht großer zusätzlicher Stauraum zur Verfügung.
Die Beheizung des Gebäudes erfolgt mit Fußbodenheizung mittels einer Luft-Wasser-Wärmepumpe.
Die Garage bietet Platz für 2 Fahrzeuge und zusätzlichen Stauraum, ein Wallbox-Anschluss ist vorbereitet. 2 weitere Kfz-Außenstellplätze sind auf der rechten Seite des Grundstücks vorhanden. Der Mietpreis für die Garagen beträgt zusätzlich 100,- €.
Das Haus wurde gerade fertiggestellt und ist seit 01.12.2025 bezugsfertig. Die Vermietung erfolgt von privat und ist provisionsfrei.


Furnishing

Die Außenwände bestehen aus 42,5 cm starken Wärmeschutz-Ziegeln. Die Wohnräume sind mit Echtholzparkett ausgestattet. Flure und Bäder sind mit hochwertigen Fliesen belegt. Die Küche ist mit einer Schiebetür vom Wohn-/Esszimmer abgetrennt und ausgestattet mit hochwertigen Siemens-Geräten, Induktionsherd, Spülmaschine und einer Kühl-/Gefrierkombination. Zusätzlich steht eine Speise und ein Lagerraum zur Verfügung.
Im OG befindet sich ein Waschraum mit Anschlüssen für Waschmaschine und Trockner. Das Wasser im Haus wird mit einer Enthärtungsanlage aufbereitet. Im Bad und im WC befinden sich je eine bodengleiche Dusche.
Das Haus hat einen Glasfaseranschluss, auf dem Dach befindet sich eine SAT-Antenne. Alle Wohnräume sind mit Netzwerkdose und SAT-TV-Anschluss ausgestattet. Die Belüftung der Räume erfolgt mit einer dezentralen Lüftungsanlage. Beleuchtung (im Wohn-/Esszimmer dimmbar), Raumtemperatur und elektrische Rollos bzw. Raffstores im EG sind mit moderner KNX-Haussteuerung über Displays mit Touch-Tastern steuerbar. Die Türsprechanlage ist vom Erdgeschoss und Obergeschoss aus bedienbar.


Location

Location description

Abensberg, gelegen im Herzen von Niederbayern, bietet eine charmante Stadtkulisse mit guter Infrastruktur und ist durch das Gillamoos-Volksfest und den Hundertwasser-Turm überregional bekannt. Einkaufsmöglichkeiten für den täglichen Bedarf sowie Ärzte, Schulen und Kindergarten sind gut erreichbar. Die Straßenanbindung ist hervorragend, die B16 ist in unmittelbarer Nähe, der Autobahnanschluss zur A93 München-Regensburg ist in 5 Minuten erreichbar. Regensburg, Landshut und Ingolstadt sind ca. 40 km entfernt, nach München sind es ca. 90 km.

ohne-makler.net
Contact:
Privat von Hubert Käs

Contact now