Haus Link
Haus
Flür EG
Badezimmer
Wohnzimmer
Büro
Haus Recht
Gäste WC
Badezimmer
Flür EG
Wohnzimmer
Büro
Schlafzimmer
Treppe
Ausblick
Einbauküche
Kinderzimmer
Garten

Einfamilienhaus in Privatstraße - Provisionfrei - Energiekl.A+

Get the full address via contact
42657 Solingen – Solingen
Nordrhein-Westfalen
670.000 €
Selling Price
130 m²
Living Area
5
Rooms
TraumImmo-ID: KUCNFKA
Partner-ID: 418598
Partner-Property by: ohne-makler.net
Contact:
Privat von Juan Luis Espinoza López

Contact now

Information

  • Type: Single Family House
  • Living Area ca.: 130 m²
  • Free From: Nach Vereinbarung
  • Rooms: 5
Guest-ToiletKitchenGarden

  • Property Area: 439.0
  • Construction Year: 2024
  • Condition: MintCondition
  • Heating Type: FloorHeating
  • Storeys: 2
  • Bathrooms: 1.0

Selling Price & Extra Costs

Selling Price670.000 €
Courtageno courtage for buyers

About this dream house

Property Description

Zum Verkauf steht ein neuwertiges, 2024 erbautes Einfamilien-Fertighaus, das modernen Wohnkomfort, Energieeffizienz und hochwertige Ausstattung vereint.
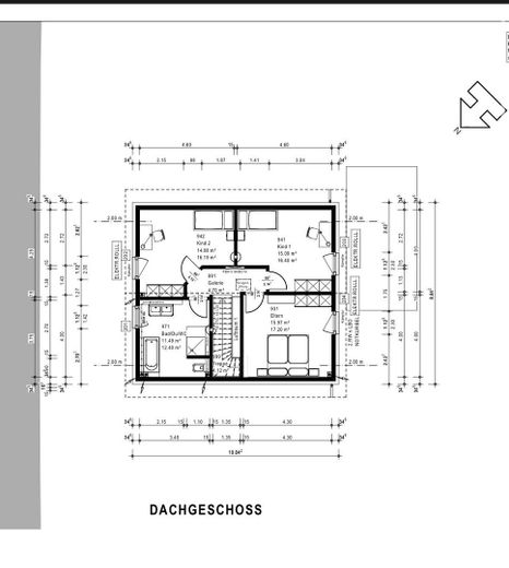
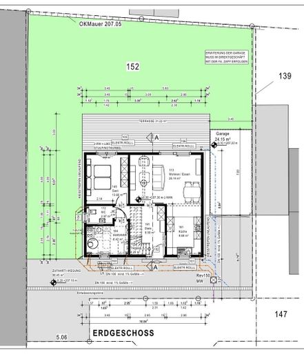
Das Haus erstreckt sich über 2 Vollgeschosse sowie einen ausgebauten Dachboden (Spitzboden/Desván) und bietet auf einer Wohnfläche von ca. 130 m² ein durchdachtes und großzügiges Raumkonzept.

Das Grundstück umfasst 439 m², was für Solingen und insbesondere für Häuser in privater Wohnlage deutlich über dem Durchschnitt liegt und einen großen, sonnigen Garten mit freiem Blick auf angrenzende Grünflächen ermöglicht.


Furnishing

Wohnkomfort & Highlights

- Baujahr 2024, Wohnfläche ca. 130 m²

- Grundstücksgröße ca. 439 m²

- Hochwertige Einbauküche inkl. Geräten

- 4 Schlafzimmer, 1 Badezimmer + Gäste-WC + HWR

- Süd-Ausrichtung: ganztägige Sonneneinstrahlung und helle Räume

- Elektrische Jalousien im gesamten Haus

- Energieeffizienter Neubau: A+ (26kwh/m2.a)

- Luftdichtheitsmessung gemaß GEG von ean50 n_L50 = 0.69 h^-1

- Fußbodenheizung in allen Räumen, perfekt abgestimmt auf das Wärmepumpensystem

- Großer Garten mit freiem Blick ins Grüne

- Überdachte 35 m² Terrasse

- Garage mit E-Auto-Ladeanschluss, 2 zusätzliche private Außenstellplätze auf dem Grundstück

- Privates, ruhiges Wohnumfeld ohne Verkehrslärm

- Fenster mit 3 fach Verglassung

- Be und entlüftungsanlage Pluggit


Other

Verfügbare Unterlagen

Folgende Dokumente liegen bereits vor und können dem Käufer zur Verfügung gestellt werden:

- Grundrisse & Baupläne

- Wohnflächenberechnung

- Baugenehmigung

- Flurkarte / Lageplan

- Energieausweis

- KfW-55 Effizienz-Nachweise

- Datenblatt der Wärmepumpe

- Ergebnis des Blower-Door-Tests


Bei Fragen bitte rufen and +4915162444194


Location

Location description

Die Immobilie befindet sich in einer ruhigen, grünen und familienfreundlichen Wohngegend in Solingen (NRW).
Das Haus liegt in einer privaten Anliegerstraße, die ausschließlich den 5 angrenzenden Eigentumsparteien dient. Es besteht ein grundbuchlich gesicherter Miteigentumsanteil an dieser Privatstraße (Zufahrt), wodurch ein verkehrsberuhigtes und exklusives Wohnumfeld ohne Durchgangsverkehr garantiert ist.
Die Lage überzeugt durch Nähe zu Kindergärten, Schulen, Einkaufsmöglichkeiten und guter Anbindung an den öffentlichen Nahverkehr, während die direkte Umgebung von Gärten und Grünflächen geprägt ist.

ÖPNV
- Bushaltestellen: 2 min fußweg
- Bahnhof: 10 min fußweg

Einkaufsmöglichkeiten & Zentrum
- Penny: 10 min fußweg
- Rewe: 4 min mit Auto - 15 min fußweg
- Apotheke: 4 min mit Auto - 15 min fußweg
- Tankstelle: 1 min mit auto
- Groß einkaufscenter: 3 min mit Auto

- Kita
Meist innerhalb von 5–10 Min. Entfernung erreichbar (zu Fuß oder mit dem Rad/Auto).

- Grundschulen / weiterführende Schulen
ca. 5–10 Min. mit dem Auto oder ÖPNV.

- Autobahn A3 (Anschlussstelle Solingen / Landwehr)

Die A3 (große Nord-Süd-Verbindung zwischen Köln und Frankfurt) ist über Solingen-Landwehr erreichbar:
ca. 10–15 Min. mit dem Auto je nach Verkehr.

- Entfernung zu großen Städten (Auto)

Köln
ca. 35-40 km → etwa 30–45 Min. mit dem Auto je nach Verkehr.

Düsseldorf
ca. 30-35 km → ca. 35–45 Min. mit dem Auto je nach Route/Verkehr.

Wuppertal
ca. 10-15 km → ca. 15–25 Min. mit dem Auto.

ohne-makler.net
Contact:
Privat von Juan Luis Espinoza López

Contact now