Vogelperspektive
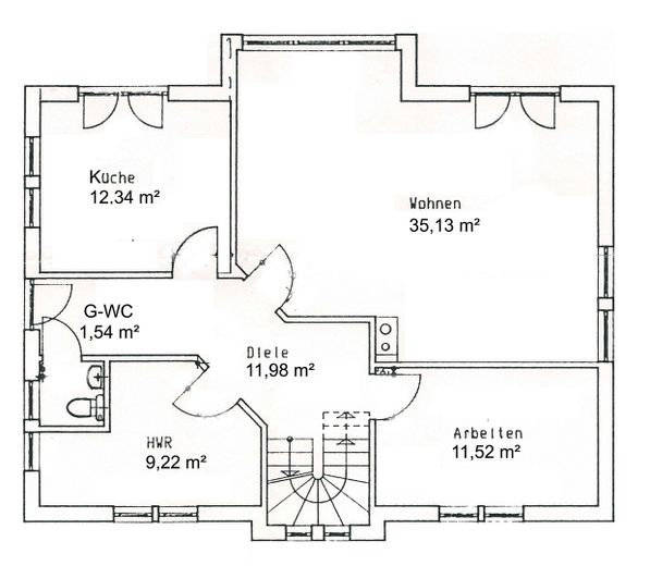
Grundriss EG
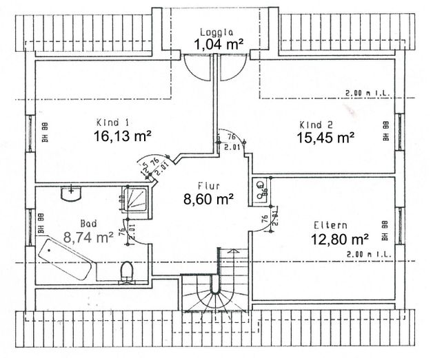
Grundriss DG
Grundriss KG

Ruhige Sackgassenlage in Platjenwerbe – perfekt für Familien

Get the full address via contact
27721 Ritterhude – Platjenwerbe
Niedersachsen
499.900 €
Selling Price
145 m²
Living Area
5
Rooms
TraumImmo-ID: KZ2MTA9
Partner-ID: 394539
Partner-Property by: ohne-makler.net
Contact:
Privat vom Eigentümer

Contact now

Information

  • Type: Single Family House
  • Living Area ca.: 145 m²
  • Free From: Nach Vereinbarung
  • Rooms: 5
CellarGuest-ToiletKitchenBalconyGarden

  • Property Area: 694.0
  • Construction Year: 1994
  • Condition: WellKept
  • Heating Type: CentralHeating
  • Firing Type: Gas
  • Storeys: 2
  • Usable Floor Space: 46.0
  • Bathrooms: 1.0

Selling Price & Extra Costs

Selling Price499.900 €
Courtageno courtage for buyers

About this dream house

Property Description

Ihr neues Zuhause in Platjenwerbe

Willkommen in diesem charmanten Einfamilienhaus, das seit 1994 besteht und Ihnen mit 5 Zimmern sowie einem großzügigen Keller viel Platz für die ganze Familie bietet.

Das Haus liegt in einer ruhigen, familienfreundlichen Spielstraße mit Sackgassenlage – ein Ort, an dem Kinder sicher draußen spielen können und Sie selbst entspannte Stunden genießen. Besonders hervorzuheben ist die gewachsene Nachbarschaft: Hier lebt man nicht anonym nebeneinander, sondern pflegt ein harmonisches Miteinander. Man achtet aufeinander, hilft sich gegenseitig und schafft so eine Wohnatmosphäre, in der Sie sich sofort willkommen fühlen werden.

Hinterlassen Sie bitte Ihre vollständigen Kontaktdaten – wir freuen uns, Ihnen weiterführende Informationen bereitzustellen und einen persönlichen Besichtigungstermin zu vereinbaren.


Furnishing

Erdgeschoss:
• Großzügiger Eingangsbereich mit vielfältigen Gestaltungsmöglichkeiten
• Gäste-WC mit Fenster
• Küche mit Fußbodenerwärmung und hochwertigen Markengeräten und direktem Zugang zur Terrasse
• Wohnzimmer mit Echtholzparkett, Kaminofen, Gartenblick und gemütlicher Sitzecke
• Abschließbare Fenstergriffe im gesamten Erdgeschoss
• Hauswirtschaftsraum mit Waschmaschinenanschluss
• Heizungsanlage aus 2014 befindet sich im Keller, dadurch mehr Platz im HWR
• Zusätzliches Zimmer – ideal als Büro oder Gäste-/Kinderzimmer

Dachgeschoss:
• Tageslichtbad mit Fußbodenerwärmung, Handtuchheizkörper, Dusche & Badewanne
• Heller Flur durch Gaubenfenster
• Großes Elternschlafzimmer
• Zwei großzügige identische Kinderzimmer mit SAT-Anschluss und Zugang zur Loggia

Spitzboden:
• Viel Stauraum
• Separater Raum – ideal als Spielhöhle für Kinder oder kleiner Rückzugsort

Kellergeschoss:
• Drei großzügige, vielseitig nutzbare Räume

Außenanlagen:
• Doppelcarport
• Eingangsüberdachung
• Größtenteils eingezäuntes Grundstück – ideal für Kinder und Haustiere
• Beleuchtete Dachunterschläge
• Außensteckdosen vorhanden
• Überdachte Terrasse mit elektrischer Markise
• Geräteschuppen mit integriertem Holzunterstand
• Gewächshaus für Hobbygärtner
• Kleiner Teich als schöner Blickfang im Garten


Location

ohne-makler.net
Contact:
Privat vom Eigentümer

Contact now