SOFORTKONTAKT
Gebäude Erdgeschoss

CA 4000 QM BAUGRUNDSTÜCK + HALLE LAGER AUTOHAUS LOGISTIK GEWERBE GEWERBEFLÄCHE FREIFLÄCHE

Get the full address via contact
58135 Hagen – Hagen
Nordrhein-Westfalen
1.950.000 €
Selling Price
TraumImmo-ID: M2CV2YG
Partner-ID: 425961
Partner-Property by: ohne-makler.net
Contact:
Privat von M Becker

Contact now

Information

    • Free From: Nach Vereinbarung

    • Property Area: 4000.0

    Selling Price & Extra Costs

    Selling Price1.950.000 €
    Courtageno courtage for buyers

    About this dream livingsite

    Property Description

    ANGEBOTEN WIRD EIN BAUGRUNDSÜCK - EHEM. SPEDITIONSGELÄNDE IN BESTER NACHBARSCHAFT MIT SUPER AUSBLICK ZUR NEUBEBAUUNG

    NUR 500€/QM!

    IM SONDERGEBIET


    CA 4.000 QM GRUNDSTÜCK DERZEIT NOCH BEBAUT MIT
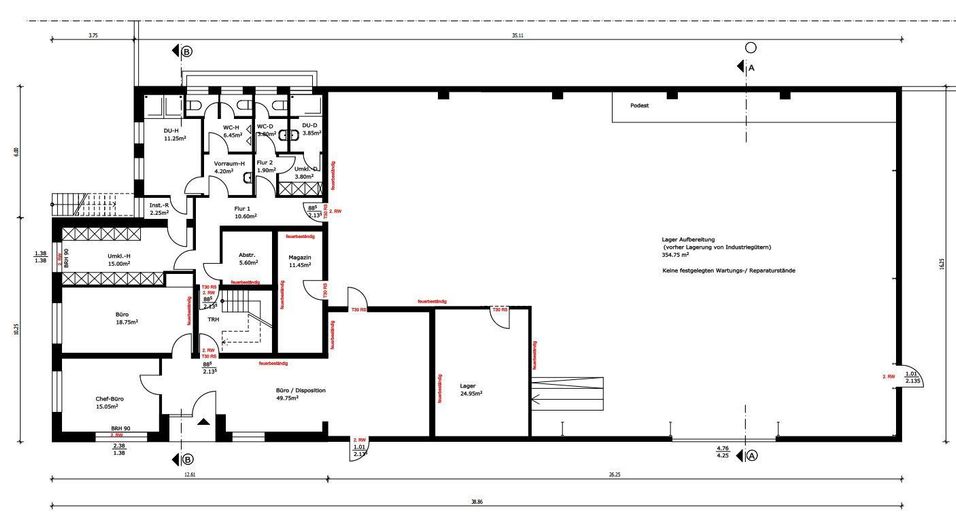
    CA 400 QM HALLENFLÄCHE
    CA 200 QM BÜRO & VERWALTUNGSFLÄCHE

    SEPARATE WOHNUNG MIT GARTEN CA 80 QM

    Ehemals konzipiert als Speditionsgelände mit LKW Werkstatt

    Derzeit genutzt als Autohaus mit 150 bis 200 Stellplätzen

    FREIFLÄCHE:
    ­
    + Hochwertiges Pflaster, das auch für die Belastung durch schwere Lkw ausgelegt ist
    + Genügend Platz für Lkw, Lagerung, Parkflächen oder als Baustellenfläche
    + 2 große Einfahrten

    HALLE:
    + Starkstrom
    + Luftdruckanschlüsse
    + Grube für PKW/LKW
    + über 6 Meter hoch
    + Säulenfrei

    BÜRO:
    + 8 Büros
    + Küche
    + Duschen
    + Toiletten
    + Umzugskabinen

    Das Objekt befindet sich an einer stark befahrenen Straße

    Die Halle ist hell und funktional

    - KAUFPREIS GEGEN GEBOT -

    *Firma, Name, Vorname, Rufnummer
    *gewünschte Nutzungsart

    Ihre Anfrage wird am selben Tag beantwortet


    Location

    Location description

    Sehr Zentral

    ohne-makler.net
    Contact:
    Privat von M Becker

    Contact now