Ansicht Straßenseite
Restaurant
1. Obergeschoß Aufenthalt
2. Obergeschoß Dusche
2. Obergeschoß Computerraum
Treppe
1. Obergeschoß Büro
1. Obergeschoß Küche
1. Obergeschoß Badezimmer 10m²
2. Obergeschoß
2. Obergeschoß
2. Obergeschoß Bad 7m²
1. Obergeschoß Aufenthalt
Blick auf Palatin Best Western
Blick auf Stadtmauer+Wachturm
Obergeschoss
Terrasse
Erdgeschoss
Dachgeschoss

Wohn/Geschäftshaus in Premiumlage - Privatverkauf - keine Maklerprovision

Get the full address via contact
69168 Wiesloch – Wiesloch
Baden-Württemberg
970.000 €
Selling Price
370 m²
Living Area
15
Rooms
TraumImmo-ID: M56HKGZ
Partner-ID: 393251
Partner-Property by: ohne-makler.net
Contact:
Privat vom Eigentümer

Contact now

Information

  • Type: Multi-Family House
  • Living Area ca.: 370 m²
  • Free From: Nach Vereinbarung
  • Rooms: 15
Guest-ToiletGarden

  • Property Area: 300.0
  • Construction Year: 1965
  • Condition: WellKept
  • Heating Type: CentralHeating
  • Firing Type: Gas
  • Storeys: 3
  • Usable Floor Space: 100.0
  • Bathrooms: 2.0

Selling Price & Extra Costs

Selling Price970.000 €
Courtageno courtage for buyers

About this dream house

Property Description

Zum Verkauf steht das Geschäftshaus, mit derzeit erfolgreich laufendem Gastronomiebetrieb. Ein einmaliges Filetstück, nicht nur für Investoren oder Bauträger mit Weitblick! Absoluter Premiumlage, direkt gegenüber dem kulturellen Herzen von Wiesloch, dem Hotel Palatin „Best Western“ mit über 400 Parkplätzen.
Das im Jahr 1965 errichtete Gebäude präsentiert sich durch die fortlaufenden Modernisierungen in einem gepflegten Zustand.
Die Immobilie befindet sich auf einem rund 300 m² großen Grundstück und verfügt über eine Gesamtfläche von ca. 479 m², welche sich über drei Etagen verteilt.
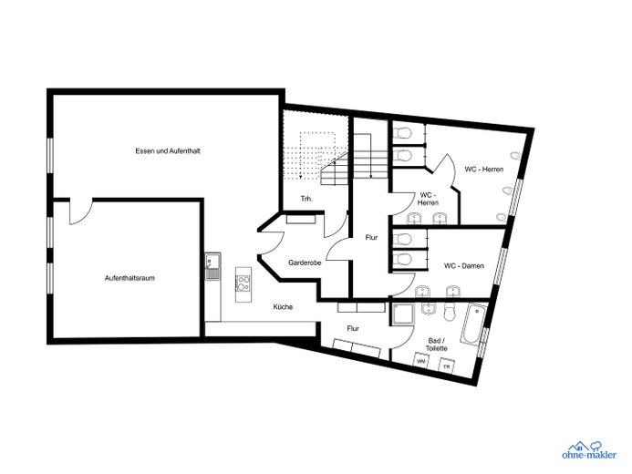
Im Erdgeschoss liegt der derzeit geführte Gastronomiebetrieb. Falls kein Gastronomiebetrieb erwünscht ist kann mit der entsprechenden Nutzungsänderung mit übersichtlichem Aufwand mehrere Wohneinheiten, Büros oder Ladeneinheiten vorgesehen werden.
Es ergeben sich für einen innovativen Bauträger/Architekten vielfältige Möglichkeiten. Die Wohn/Geschäftseinheiten könnten sich um ca. 20-40m² vergrößern. Mit sehr geringem Aufwand kann z.B. kurzfristig die Gastraumfläche (100m²) zu sehr guten Konditionen als Geschäftsfläche (Büro Ladeneinheit) verpachtet werden.
Das Dachgeschoss wurde 2012 komplett ausgebaut, neu eingedeckt, voll isoliert. Fenster, ein neues Bad, Heizung sowie Wasser und Elektrik wurde neu ebenfalls installiert. Dazu wurde das 2. Obergeschoß um eine großzügige Gaube erweitert. Mit entsprechenden Nutzungsänderung + entsprechender Investition kann das 2. Obergeschoß (ca. 130m²) zu einer einzigartigen außergewöhnlichen Penthouse Wohnung umgestaltet werden. Nach hinten mit dem im Sommer kühlenden Leimbach und dem unverbaubarem Blick auf die Stadtmauer mit dem Wachturm und den Gartenanlagen nach vorne mit dem Hotel Best Western Palatin und vielen Geschäftseinheiten ist das eine der besten Lagen in ganz Wiesloch – vielleicht sogar die Beste?
Beheizt wird das Gebäude über die Gaszentralheizung, welche 2012 eingebaut wurde. Die Warmwasseraufbereitung + Heizungsunterstützung erfolgt durch die Solaranlage. Das Fassungsvermögen des Warmwasserspeichers beträgt 750 Liter.


Furnishing

- Dach neu gedeckt und isoliert
- Gaube 2012
- Weitgehend ausgebautes Dachgeschoss(Bad, Fenster, Elektrik, Heizung)
- Tageslichtbad 2. OG 7m²
- Tageslichtbad 1. OG 10m²
- Terrasse / Garten
- Durchschnittliche Raumhöhe 2,80m im Erdgeschoß höher
- Solarthermie zur Warmwasseraufbereitung 2012
- Gasheizung 2012


Other

Bedingt durch die neue Dachisolierung, die Südlage, große Fensterflächen und die Solaranlage mit 750Liter Warmwasserspeicher mit Heizungsunterstützung ist der Gasverbrauch erstaunlich gering. (Euro 265 Monat für 479 m² Fläche inklusive Gastrobetrieb laut aktueller Abrechnung 2024-2025). Und dass trotz dem Energieausweis vom 20.8.2020 Energiebedarf: 134,7 kWhl(m²'a). Es kann durch geringe Investitionen ein besserer Wert erreicht werden.
Bitte bedenken Sie: Momentan werden neue Eigentumswohnungen in Wiesloch in suboptimalen Lagen für bis zu 7.000 Euro m² vermarktet.


Location

Location description

Stadtmitte, direkt gegenüber dem Palatin Kongresshotel (Best Western Plus). Hier finden alle größeren Veranstaltungen statt.
Busverbindungen, Ärzte, Einkaufsmöglichkeiten in unmittelbarer Nähe.
Abgerundet wird die außergewöhnliche Lage zur hinteren Seite des Gebäudes mit dem unverbaubaren Blick über die Gartenanlage auf das Wieslocher Wahrzeichen, den Wachturm sowie die Wieslocher Stadtmauer
S-Bahn zur Stadtmitte Heidelberg 8- 12 Minuten

ohne-makler.net
Contact:
Privat vom Eigentümer

Contact now