DG Freisitz
EG Wohnzimmer
Gartenansicht
DG Wohnbereich
Hausansicht
DG Bad
DG Wohnbereich
EG Wohnzimmer
EG Küche
EG Bad 2
Keller Gemeinschaft
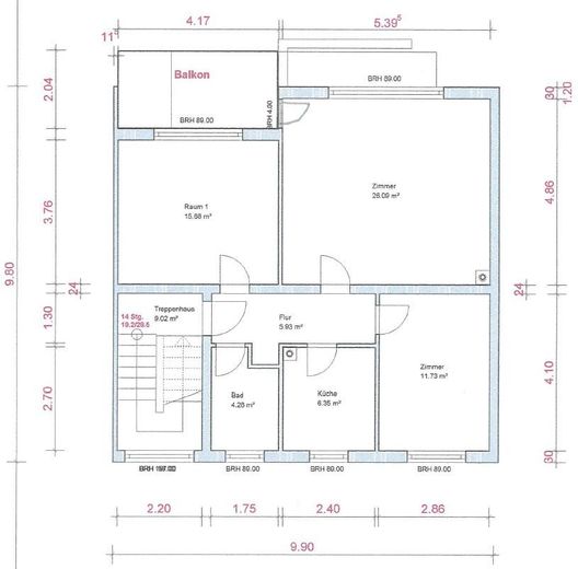
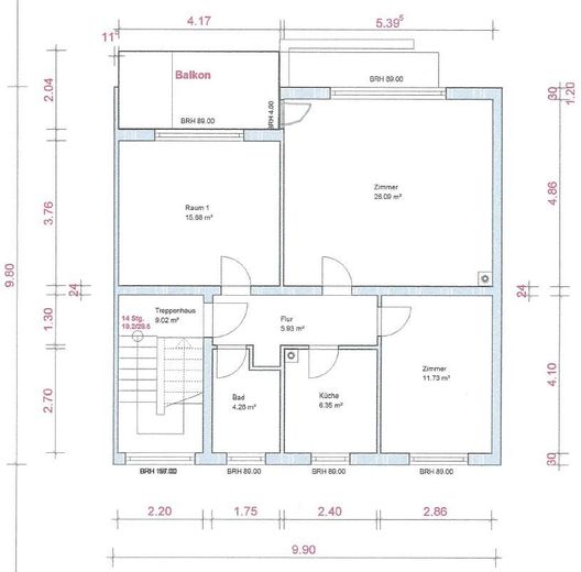
Grundriss OG
DG Bad
EG Bad
EG Balkon
Grundriss EG
Grundriss DG

Attraktives 3-Familienhaus in Karlsruhe Neureut-Heide

Klammweg 11b
76149 Karlsruhe – Neureut
Baden-Württemberg
739.000 €
Selling Price
216 m²
Living Area
9
Rooms
TraumImmo-ID: MATSPB3
Partner-ID: 409405
Partner-Property by: ohne-makler.net
Contact:
Privat von Benjamin Walter

Contact now

Information

  • Type: Multi-Family House
  • Living Area ca.: 216 m²
  • Free From: Nach Vereinbarung
  • Rooms: 9

  • Property Area: 219.0
  • Construction Year: 1962
  • Condition: WellKept
  • Firing Type: Gas
  • Storeys: 3

Selling Price & Extra Costs

Selling Price739.000 €
Courtageno courtage for buyers

About this dream house

Property Description

Das offerierte 3-Familienhaus wurde 1962 auf einem 219 m² großen Grundstück erbaut. Eine energetische Sanierung mitsamt Fassadendämmung und neuem Dach wurde in den letzten Jahren bereits durchgeführt. Durch die zugleich stadtnahe und naturnahe Wohnlage in Neureut-Heide eignet sich die Immobilie zur Vermietung an Familien, Paare, Singles und Studenten.

Die Wohnfläche beträgt 216,36 m².

Sie verteilt sich auf die drei Wohneinheiten wie folgt:

Erdgeschoss: 74,31 m² Wohnfläche, 3-Zimmer-Wohnung mit Küche, Badezimmer und Balkon mit Gartenzugang
Obergeschoss: 74,31 m² Wohnfläche, 3-Zimmer-Wohnung mit Küche, Badezimmer und Balkon
Dachgeschoss: 67,74 m² Wohnfläche, 3-Zimmer-Wohnung mit Küche, Badezimmer und Balkon

Alle drei Wohneinheiten sind vermietet.

Die aktuelle Jahresnettokaltmiete beträgt 24.816,00 €.
Dies entspricht einer durchschnittlichen Kaltmiete pro m² pro Monat in Höhe von 9,69 €.
Damit ist noch reichlich Mieterhöhungspotential für die nächsten Jahre gegeben.


Furnishing

Die Immobilie besticht durch ihre sehr gute Substanz und ihren sehr gepflegten Zustand in sehr guter Lage.

Das Haus ist voll unterkellert. Jede Mietwohnung verfügt über einen separaten Kellerraum. Zudem steht ein gemeinsam genutzter Waschraum zur Verfügung.

Der wunderschöne, ruhige Garten wird derzeit von der Mieterin der EG-Wohnung genutzt.

Vor dem Gebäude befinden sich auf dem Grundstück genügend Fahrradstellplätze für alle Bewohner.

Der Eigentümer hat die Immobilie durchgehend sehr gut in Stand gehalten und alle notwendigen Investitionen bereits durchgeführt.

Die Renovierungen und Sanierungen im Einzelnen:

Wohnung im Erdgeschoss (2015):
✅ Modernisierung des Badezimmers (neue Wasser-/Stromleitungen, Wand-/Bodenfliesen, Sanitärobjekte, Handtuchheizkörper)
✅ Schlafzimmer, Flur und Wohnzimmer mit hochwertigen 3-Schicht-Parkett­dielenböden.
✅ Schlafzimmer und Wohnzimmer mit neuen Heizkörpern
✅ Alle Räume mit neuen Fenstern, teilweise bodentief

Wohnung im Obergeschoss (2011):
✅ Modernisierung des Badezimmers (neue Wasser-/Stromleitungen, Wand-/Bodenfliesen, Sanitärobjekte, Handtuchheizkörper)
✅ Alle Räume mit neuen Fenstern

Wohnung im Dachgeschoss (2013 Neubau):
✅ Neuer Dachstuhl mit Dämmung und Neueindeckung
✅ Neubau eines Balkons
✅ Echtholz-Massivholzdielen in allen Räumen
✅ Erneuerung von Innenwänden, Badezimmer, Heizkörpern sowie Elektro- und Wasserinstallation
✅ Einbau neuer Fenster

Weitere Modernisierungen:
✅ 2020: Einbau einer neuen Gas-Brennwerttherme
✅ 2024: Dämmung der Fassade und der Kellerdecke; Austausch der Rollläden durch Außenrollläden
✅ 2024: Balkonsanierung EG/OG


Other

Energieausweis: Bedarfsausweis gültig bis 22.08.2035
Endenergiebedarf: 106,7 kWh/(m²a)
Wesentliche Energieträger: Gas
Energieeffizienzklasse: D


Location

Location description

Das 3-Familienhaus liegt verkehrsgünstig sehr gut angebunden im Karlsruher Stadtteil Neureut-Heide. Die Tram-Haltestelle Neureut-Heide ist nur 300 m entfernt.

Auf dem Grundstück befinden sich keine KfZ-Stellplätze. Es steht jedoch ausreichend öffentlicher Parkraum in unmittelbarer Umgebung zur Verfügung.

Sämtliche Einkaufsmöglichkeiten und städtische Infrastruktur (Ärzte, Schulen, KITAs, ...) sind in wenigen Minuten erreichbar.

Für die Naherholung steht der Heidesee zur Verfügung, an welchem man nach einem arbeitsreichen Tag bei einem schönen Spaziergang entspannen kann.

ohne-makler.net
Contact:
Privat von Benjamin Walter

Contact now