Hochwertige moderne Bürofläche in Georgsmarienhütte

Werner-von-Siemens-Straße 35
49124 Georgsmarienhütte – Georgsmarienhütte
Niedersachsen
1499 €
Rent without service charge
TraumImmo-ID: NJHVJ3M
Partner-ID: 397824
Partner-Property by: ohne-makler.net
Contact:
Angebot von Enterprise Investing GmbH

Contact now

Information

  • Type: Office Floor
  • Storey: 1
  • Free From: Nach Vereinbarung

  • Construction Year: 1999
  • Condition: MintCondition
  • Firing Type: FiringTypeDistrictHeating

Rent & Utilities

Rent1499 €
Courtageno courtage for buyers

About this dream office

Property Description

Dieses hochwertige und moderne Gewerbegebäude wurde 1999 in Georgsmarienhütte erbaut.


Furnishing

Die zu vermietende Bürofläche, welche sich im 1.OG befindet kann über einen schönen und einladenden Eingangsbereich und über einen Aufzug erreicht werden.

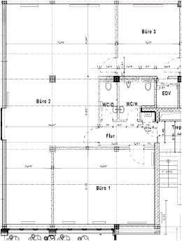
Das Areal bietet 160m² Fläche. Diese teilt sich auf drei sehr großzügige und lichtdurchflutete Räume auf.
Selbstverständlich verfügt sie zudem über separate Damen- und Herrentoiletten und eine separate Küche, wo bereits eine Einbauküche eingebaut wurde.
Die Räumlichkeiten sind über eine zentrale Klimaanlage klimatisiert, welche sie zu idealen Büros mit einer angenehmen Arbeitsatmosphäre werden lässt.


Other

Vereinbaren Sie einen Besichtigungstermin mit uns. Es lohnt sich! Rufen sie mich einfach kurz an. unter 015735440988.


Location

Location description

Georgsmarienhütte ist eine Mittelstadt mit rund 32.000 Einwohnern im Kreis Osnabrück.

Sie erreichen in ca. 5 Minuten die Autobahnauffahrt A30 und die A33.
Osnabrück erreichen sie in 12 Minuten.
Zudem gibt es eine sehr gute Anbindung an das öffentliche Verkehrsnetz.

ohne-makler.net
Contact:
Angebot von Enterprise Investing GmbH

Contact now